407-990-2746
Menu

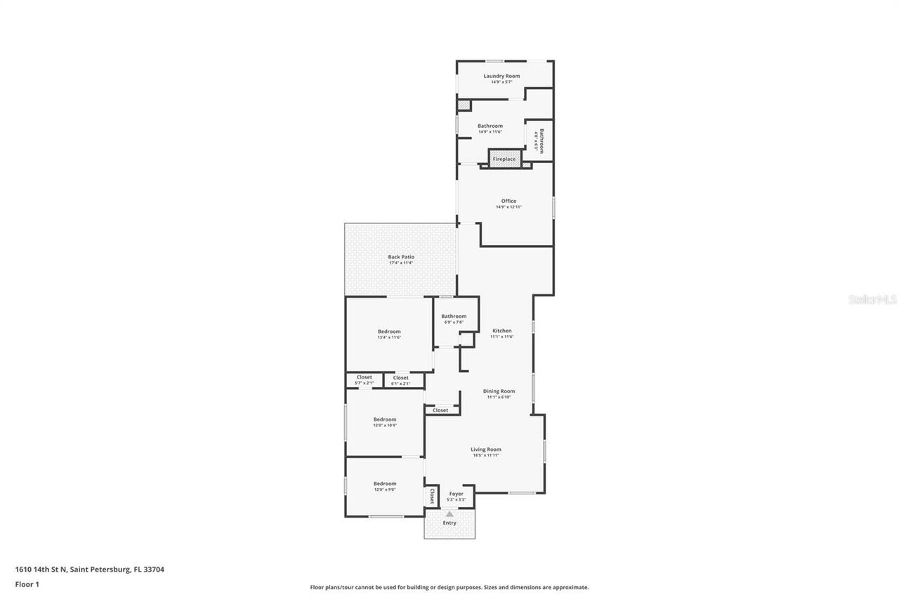
1610 14th N Street, St Petersburg, FL

NEXT
PREV
$849,990

($522/sqft)

List Status: Pending
1610 14th N Street
St Petersburg, FL 33704


4 beds
2 baths
1627 living sqft
Top Features
  • Subdivision: Ross Oaks
  • Built in  1941
  • Single Family Residence
Description
Under contract-accepting backup offers. Home sweet home! Located in a non-flood and non-evacuation zone, this sought-after and enchanting English Tudor cottage is even more lovely in person. It is situated in the desirable and friendly Euclid St. Paul neighborhood, known for its proximity to Downtown St. Petersburg and various shopping, dining, and arts districts. This home offers a perfect blend of historic charm and modern upgrades. The storybook Cedar front door invites you into an interior featuring original oak hardwood floors, numerous built-ins, distinctive period cove molding, and a cozy wood-burning fireplace. The functional layout provides privacy, with three bedrooms at the front and a primary retreat in the rear. Primary with access to the pool and patio as well as an updated en-suite bathroom, and a custom closet system. Both the dining room and primary bedroom feature vaulted shiplap ceilings, adding to the home's spaciousness. Major mechanical updates include a roof installed seven years ago, a newer A/C unit, a tankless natural gas hot water heater, and an updated electrical system with a newer breaker box. The kitchen is a chef’s delight, featuring stunning white marbled quartz and leathered granite countertops. The backyard is a private oasis with an oversized 11-foot deep pool, which was recently resurfaced with a durable PebbleTec finish and glass tiles, supported by a newer pool pump. The outdoor space also includes a covered patio where you can enjoy outdoor dining or entertaining, and dog runs along both sides of the home. For convenience, there is a secure gated carport with alley access and a Tuff Shed for extra storage. Located on a tree-lined one-way street, this home offers tranquility just 20 minutes from the beach and 25 minutes from Tampa International Airport.
Property Details
Property Features
Property Sub Type
Single Family Residence
Parking
On Street, Parking Pad
Pool
Gunite, Lighting, Outside Bath Access, In Ground, Salt Water
County
Pinellas
Subdivision
ROSS OAKS
Additional Information
Additional Lease Restrictions
CHECK WITH CITY OF ST.PETERSBURG FOR ANY AND ALL LEASE RESTRICTIONS
Additional Parcels YN
false
Additional Rooms
Attic
Alternate Key Folio Num
133116770940020200
Appliances
Dishwasher, Dryer, Exhaust Fan, Gas Water Heater, Microwave, Refrigerator, Tankless Water Heater, Washer
Architectural Style
Cottage, Tudor
Association YN
false
Available For Lease YN
1
Bathrooms Total Integer
2
Building Area Source
Public Records
Building Area Total
2087
Building Area Total Srch SqM
193.89
Building Area Units
Square Feet
Calculated List Price By Calculated SqFt
522.43
Carport YN
false
Construction Materials
Stucco, Frame
Contract Status
Financing, Inspections
Cooling
Central Air
Country
US
Cumulative Days On Market
113
Current Price
849990.00
Direction Faces
East
Expected Closing Date
2026-06-23T00:00:00.000
Exterior Features
Dog Run, Lighting, Rain Gutters, Sliding Doors, Storage
Fencing
Wood
Fireplace Features
Primary Bedroom, Wood Burning
Fireplace YN
true
Flood Zone Code
X
Flood Zone Date
2021-08-24
Flood Zone Panel
12103C0217H
Flooring
Tile, Wood
Foundation Details
Crawlspace
Furnished
Unfurnished
Garage YN
false
Heating
Central
Homestead YN
1
Interior Features
Ceiling Fans(s), Split Bedroom, Thermostat, Vaulted Ceiling(s), Walk-In Closet(s), Window Treatments
Internet Address Display YN
true
Internet Automated Valuation Display YN
true
Internet Consumer Comment YN
true
Internet Entire Listing Display YN
true
Laundry Features
Inside, Laundry Room
Levels
One
List AOR
Suncoast Tampa
Living Area Meters
151.15
Living Area Source
Appraiser
Living Area Units
Square Feet
Lot Features
City Limits, Street One Way, Paved
Lot Size Acres
0.14
Lot Size Dimensions
50x124
Lot Size Square Feet
6138
Lot Size Square Meters
570
Minimum Lease
No Minimum
Modification Timestamp
2026-05-24T02:08:09.956Z
New Construction YN
false
Occupant Type
Vacant
Other Equipment
Irrigation Equipment
Other Structures
Shed(s)
Ownership
Fee Simple
Parcel Number
13-31-16-77094-002-0200
Pool Private YN
true
Postal Code Plus 4
4008
Previous List Price
875000
Price Change Timestamp
2026-04-29T11:33:01.000Z
Public Survey Range
16
Public Survey Section
13
Purchase Contract Date
2026-05-23
RATIO Current Price By Calculated SqFt
522.43
Realtor Info
As-Is, Sign
Road Surface Type
Asphalt, Paved
Roof
Shingle
Room Count
3
Senior Community YN
false
Sewer
Public Sewer
Showing Requirements
ShowingTime
Spa YN
false
Status Change Timestamp
2026-05-24T02:07:58.000Z
Stories Total
1
Tax Annual Amount
9202.91
Tax Block
B
Tax Book Number
12-91
Tax Legal Description
ROSS OAKS BLK B, LOT 20
Tax Lot
20
Tax Year
2024
Total Acreage
0 to less than 1/4
Total Annual Fees
0.00
Total Monthly Fees
0.00
Township
31
Universal Property Id
US-12103-N-133116770940020200-R-N
Unparsed Address
1610 14TH ST N
Utilities
Public
Water Source
Public
Waterfront YN
false
Window Features
Blinds, Drapes, Window Treatments
Neighborhood Map
Popup

Property Photos
Listing Photo
Listing Photo
Listing Photo
Listing Photo
Listing Photo
Listing Photo
Listing Photo
Listing Photo
Listing Photo
Listing Photo
Listing Photo
Listing Photo
Listing Photo
Listing Photo
Listing Photo
Listing Photo
Listing Photo
Listing Photo
Listing Photo
Listing Photo
Listing Photo
Listing Photo
Listing Photo
Listing Photo
Listing Photo
Listing Photo
Listing Photo
Listing Photo
Listing Photo
Listing Photo
Listing Photo
Listing Photo
Listing Photo
Listing Photo
Listing Photo
Listing Photo
Listing Photo
Listing Photo
Listing Photo
Listing Photo
Listing Photo
Listing Photo
Listing Photo
Listing Photo
Listing Photo
Listing Photo
Listing Photo
Listing Photo
Listing Photo
Listing Photo
Listing Photo
Listing Photo
Listing Photo
Listing Photo
Listing Photo
Listing Photo
Listing Photo
Listing Photo
Listing Photo
Listing Photo
Listing Photo
Listing Photo
Listing Photo
Listing Photo
Listing Photo
Listing Photo
Listing Photo
Listing Photo
Listing Photo
Listing Photo
Listing Photo
Listing Photo
Listing Photo
Listing Photo
Listing Photo
Listing Photo

MLS #MFRTB8470701 Listing courtesy of Northstar Realty provided by Stellar MLS.

Similar Listings

$765,000
216 16th Se Avenue
St Petersburg
4BR/2BA
| Active
$775,000
191 Banyan Bay Drive
St Petersburg
4BR/2BA
| Active
$775,000
2400 9th N Avenue
St Petersburg
4BR/2BA
| Active
$779,900
4365 Iris N Street
St Petersburg
4BR/2BA
| Active



All listing information is deemed reliable but not guaranteed and should be independently verified through personal inspection by appropriate professionals. Listings displayed on this website may be subject to prior sale or removal from sale; availability of any listing should always be independent verified. Listing information is provided for consumer personal, non-commercial use, solely to identify potential properties for potential purchase; all other use is strictly prohibited and may violate relevant federal and state law. The source of the listing data is as follows: Stellar MLS (updated 5/24/26 12:05 AM) |

Listing Search



Translate Tool

Featured Listings
St Petersburg Real Estate
$1,390,000
2 BED
2 BATH
Step inside and settle in immediately — this thoughtfully appointed residence comes completely turn-key and fully furnis... Read More
Dunedin Real Estate
$1,149,900
2 BED
2 BATH
Exceptional near 1/2 acre lot with prime 100 sq ft water frontage on the highly desirable and delightful City of Dunedin... Read More
Longboat Key Real Estate
$1,400,000
2 BED
2 BATH
Welcome to your beachfront retreat in the sky. Perched on the 9th floor of the highly desirable Privateer North communit... Read More
Bradenton Real Estate
$850,000
5 BED
3 BATH
PRIVATE OASIS WITH LUXURY UPGRADES Escape to your own private sanctuary on this meticulously maintained 5-bedroom, 3-bat... Read More
St Petersburg Real Estate
$849,990
4 BED
2 BATH
Under contract-accepting backup offers. Home sweet home! Located in a non-flood and non-evacuation zone, this sought-aft... Read More
Madeira Beach Real Estate
$1,324,997
3 BED
2 BATH
Welcome to elevated Gulf-front living at Madeira Towers. Perched on the 8th floor and positioned on the highly sought-af... Read More
Sarasota Real Estate
$849,900
4 BED
3 BATH
MAJOR PRICE ADJUSTMENT! Seller motivated! Don't miss this moment to enjoy your own slice of Florida Paradise! A rare fin... Read More
Winter Garden Real Estate
$1,399,900
5 BED
4 BATH
Experience refined elegance in this beautifully maintained residence located in one of Winter Garden’s most desirable co... Read More
Palm Coast Real Estate
$1,499,000
3 BED
3 BATH
Welcome to Unit 642 in the exclusive Ocean Towers at Hammock Beach Resort, a beautifully renovated luxury coastal reside... Read More
Belleair Real Estate
$1,049,000
3 BED
2 BATH
Stunning by design and exceptional by every measure, this completely reimagined Belleair residence sets a new standard f... Read More
Contact Sandra Pardo

407-990-2746

Wendy Morris LLC

Licensed in the State of Florida
BK 3146762
16797 Broadwater Avenue
Winter Garden, Florida 34787

Your privacy is our utmost concern. We will never sell your personal information. Privacy Policy
©2026 sandrapardohomes.com - all rights reserved. | Site Map