407-990-2746
Menu

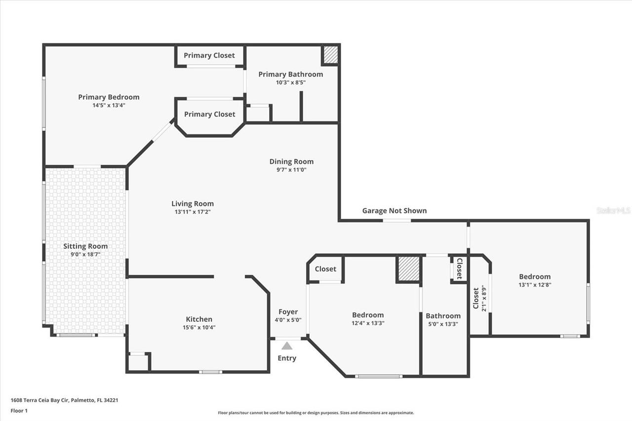
1608 Terra Ceia Bay Circle Unit: Unit: na, Palmetto, FL

NEXT
PREV
$360,000

($242/sqft)

List Status: Active
1608 Terra Ceia Bay Circle
Palmetto, FL 34221


3 beds
2 baths
1488 living sqft
Top Features
  • View: Golf Course
  • Subdivision: Bay Estates North
  • Built in  1997
  • Condominium
Description
Property Details
Additional Information
Additional Lease Restrictions
Please see community docs for information on leasing restrictions/guidelines
Additional Parcels YN
false
Additional Rooms
Florida Room
Alternate Key Folio Num
2412714202
Appliances
Dishwasher, Disposal, Dryer, Electric Water Heater, Microwave, Range, Refrigerator, Washer
Approval Process
Please see community docs for information on leasing restrictions/guidelines Contact Cams by Stacia for application, fee and approval process
Architectural Style
Florida
Association Amenities
Gated
Association Approval Required YN
1
Association Email
stacia@cam-ss.com
Association Fee Includes
Cable TV, Common Area Taxes, Escrow Reserves Fund, Insurance, Internet, Maintenance Structure, Maintenance Grounds, Management, Pest Control
Association YN
false
Attached Garage YN
true
Available For Lease YN
1
Bathrooms Total Integer
2
Building Area Source
Public Records
Building Area Total
2075
Building Area Total Srch SqM
192.77
Building Area Units
Square Feet
CDDYN
1
Calculated List Price By Calculated SqFt
241.94
Carport YN
false
Community Features
Buyer Approval Required, Clubhouse, Gated Community - No Guard, Golf Carts OK, Golf, No Truck/RV/Motorcycle Parking, Restaurant
Condo Fees
1340
Condo Fees Term
Quarterly
Construction Materials
Block, Stucco
Cooling
Central Air
Country
US
Cumulative Days On Market
4
Current Price
360000.00
Direction Faces
South
Exterior Features
Private Mailbox, Rain Gutters
Fireplace YN
false
Flood Zone Code
AE*
Flood Zone Date
2021-08-10
Flood Zone Panel
12081C0162F
Floor Number
1
Flooring
Carpet, Laminate, Tile
Foundation Details
Slab
Furnished
Unfurnished
Garage Spaces
2
Garage YN
true
Heating
Central, Electric
Homestead YN
1
Interior Features
Cathedral Ceiling(s), Ceiling Fans(s), Eat-in Kitchen, Living Room/Dining Room Combo, Solid Surface Counters, Split Bedroom, Stone Counters, Window Treatments
Internet Address Display YN
true
Internet Automated Valuation Display YN
false
Internet Consumer Comment YN
false
Internet Entire Listing Display YN
true
Laundry Features
In Garage
Lease Restrictions YN
1
Levels
One
List AOR
Sarasota - Manatee
Living Area Meters
138.24
Living Area Source
Public Records
Living Area Units
Square Feet
Lot Features
Landscaped, On Golf Course, Private
Max Pet Weight
35
Minimum Lease
2 Months
Modification Timestamp
2026-01-13T18:09:11.465Z
Monthly Condo Fee Amount
447
New Construction YN
false
Num Times per Year
2
Number Of Pets
1
Occupant Type
Vacant
Other Equipment
Irrigation Equipment
Other Exemptions YN
1
Ownership
Condominium
Parcel Number
2412714202
Patio And Porch Features
Patio
Pet Restrictions
Please see community docs for information on pet restrictions/guidelines
Pet Size
Small (16-35 Lbs.)
Pets Allowed
Yes
Pool Private YN
false
Postal Code Plus 4
5947
Property Attached YN
true
Property Description
End Unit
Public Remarks
One or more photo(s) has been virtually staged. Come enjoy the Florida lifestyle! This open and bright 3/2 villa features vaulted ceilings, neutral finishes, and an abundance of natural light throughout. Situated on a golf course fairway, this home offers nature views from an enclosed air-conditioned Florida room and outdoor patio. The eat-in kitchen has been recently upgraded with refreshed cabinetry and newer appliances (replaced in 2024) making it both stylish and functional. The spacious and private primary suite includes a large bedroom and an ensuite bath with a recently remodeled walk-in shower. The second bedroom is perfectly suited for a den or home office. Clean and well-maintained, this home features a two-car garage for added convenience. Other recent updates include impact windows (2022), HVAC system (2024) along with a washer /dryer (2024.) Located in the desirable Terra Ceia Bay Country Club, residents enjoy a public 18-hole executive golf course, an on-site restaurant and pub, and an active, welcoming clubhouse. Additional amenities—including a swimming pool, fitness center, tennis, and pickleball—are available through reasonably priced memberships. This lovely villa is situated halfway between St. Pete and Sarasota, close by to world-class beaches, airports, restaurants, museums, shopping, arts, and entertainment.
Public Survey Range
17E
Public Survey Section
10
RATIO Current Price By Calculated SqFt
241.94
Realtor Info
As-Is, Assoc approval required, CDD Addendum required, Docs Available, Lease Restrictions
Road Surface Type
Paved
Roof
Shingle
Room Count
6
SW Subdiv Community Name
Bay Estates North Condominium
Security Features
Gated Community, Smoke Detector(s)
Senior Community YN
false
Sewer
Public Sewer
Showing Requirements
Supra Lock Box, ShowingTime
Status Change Timestamp
2026-01-09T18:41:35.000Z
Stories Total
1
Tax Annual Amount
3976
Tax Book Number
1518-2421
Tax Legal Description
UNIT 4 BAY ESTATES NORTH CONDO PI#24127.1420/2
Tax Lot
4
Tax Other Annual Assessment Amount
725
Tax Year
2025
Total Annual Fees
5360.00
Total Monthly Fees
446.67
Township
34S
Unit Number YN
1
Universal Property Id
US-12081-N-2412714202-S-na
Unparsed Address
1608 TERRA CEIA BAY CIR
Utilities
Cable Connected, Electricity Connected, Public, Sewer Connected, Underground Utilities, Water Connected
Water Extras
Fishing Pier
Water Extras YN
1
Water Source
Public
Water View
Pond
Water View YN
1
Waterfront YN
false
Window Features
Skylight(s), Double Pane Windows
Zoning
PDH
Neighborhood Map
Popup

Property Photos
Listing Photo
Listing Photo
Listing Photo
Listing Photo
Listing Photo
Listing Photo
Listing Photo
Listing Photo
Listing Photo
Listing Photo
Listing Photo
Listing Photo
Listing Photo
Listing Photo
Listing Photo
Listing Photo
Listing Photo
Listing Photo
Listing Photo
Listing Photo
Listing Photo
Listing Photo
Listing Photo
Listing Photo
Listing Photo
Listing Photo
Listing Photo
Listing Photo
Listing Photo
Listing Photo
Listing Photo
Listing Photo
Listing Photo
Listing Photo
Listing Photo
Listing Photo
Listing Photo
Listing Photo
Listing Photo
Listing Photo
Listing Photo
Listing Photo
Listing Photo
Listing Photo
Listing Photo
Listing Photo
Listing Photo
Listing Photo
Listing Photo
Listing Photo
Listing Photo
Listing Photo
Listing Photo
Listing Photo
Listing Photo
Listing Photo
Listing Photo
Listing Photo
Listing Photo
Listing Photo
Listing Photo
Listing Photo
Listing Photo
Listing Photo
Listing Photo
Listing Photo
Listing Photo
Listing Photo
Listing Photo
Listing Photo
Listing Photo
Listing Photo
Listing Photo
Listing Photo
Listing Photo
Listing Photo
Listing Photo
Listing Photo
Listing Photo
Listing Photo
Listing Photo
Listing Photo
Listing Photo
Listing Photo
Listing Photo
Listing Photo
Listing Photo
Listing Photo
Listing Photo
Listing Photo
Listing Photo
Listing Photo
Listing Photo
Listing Photo

MLS #MFRA4677127 Listing courtesy of Michael Saunders & Company provided by Stellar MLS.

Similar Listings

$324,900
10557 Oakside Drive
Palmetto
3BR/2BA
| Active
$324,900
5735 Mezzana Run
Palmetto
3BR/2BA
| Pending
$324,999
2411 29th E Lane
Palmetto
3BR/2BA
| Active
$324,999
2423 29th E Lane
Palmetto
3BR/2BA
| Pending



All listing information is deemed reliable but not guaranteed and should be independently verified through personal inspection by appropriate professionals. Listings displayed on this website may be subject to prior sale or removal from sale; availability of any listing should always be independent verified. Listing information is provided for consumer personal, non-commercial use, solely to identify potential properties for potential purchase; all other use is strictly prohibited and may violate relevant federal and state law. The source of the listing data is as follows: Stellar MLS (updated 2/1/26 5:14 PM) |

Listing Search



Translate Tool

Featured Listings
Clearwater Beach Real Estate
$998,000
3 BED
2 BATH
St Petersburg Real Estate
$850,000
2 BED
2 BATH
Nokomis Real Estate
$880,000
4 BED
3 BATH
St Petersburg Real Estate
$1,199,000
2 BED
2 BATH
Parrish Real Estate
$949,900
4 BED
4 BATH
Clearwater Beach Real Estate
$800,000
2 BED
2 BATH
Belleair Beach Real Estate
$909,900
3 BED
4 BATH
Orlando Real Estate
$989,000
6 BED
4 BATH
Sarasota Real Estate
$1,299,000
2 BED
2 BATH
Port Charlotte Real Estate
$809,900
3 BED
3 BATH
Contact Sandra Pardo

407-990-2746

Wendy Morris LLC

Licensed in the State of Florida
BK 3146762
16797 Broadwater Avenue
Winter Garden, Florida 34787

Your privacy is our utmost concern. We will never sell your personal information. Privacy Policy
©2026 sandrapardohomes.com - all rights reserved. | Site Map