407-990-2746
Menu

1550 S Biscayne Drive, North Port, FL

NEXT
PREV
$319,000

($169/sqft)

List Status: Active
1550 S Biscayne Drive
North Port, FL 34287


3 beds
2 baths
1883 living sqft
Top Features
  • View: Trees/Woods
  • Subdivision: Port Charlotte Sub 36
  • Built in  1993
  • Single Family Residence
Description
Property Details
Additional Information
Additional Parcels YN
false
Appliances
Dishwasher, Dryer, Electric Water Heater, Microwave, Range, Refrigerator, Washer
Architectural Style
Florida, Traditional
Association YN
false
Attached Garage YN
true
Available For Lease YN
1
Bathrooms Total Integer
2
Building Area Source
Public Records
Building Area Total
2518
Building Area Total Srch SqM
233.93
Building Area Units
Square Feet
Calculated List Price By Calculated SqFt
169.41
Carport YN
false
Construction Materials
Block, Stucco
Cooling
Central Air
Country
US
Cumulative Days On Market
108
Current Price
319000.00
Direction Faces
West
Elementary School
Glenallen Elementary
Exterior Features
French Doors, Lighting, Rain Gutters, Sliding Doors
Fireplace YN
false
Flood Zone Code
B
Flood Zone Date
1981-09-02
Flood Zone Panel
1202790010B
Flooring
Tile
Foundation Details
Slab
Furnished
Unfurnished
Garage Spaces
2
Garage YN
true
Heating
Central
High School
North Port High
Home Warranty YN
false
Homestead YN
1
Interior Features
Ceiling Fans(s), Split Bedroom, Vaulted Ceiling(s), Walk-In Closet(s), Window Treatments
Internet Address Display YN
true
Internet Automated Valuation Display YN
false
Internet Consumer Comment YN
true
Internet Entire Listing Display YN
true
Laundry Features
Inside
Levels
One
List AOR
Venice
Living Area Meters
174.94
Living Area Source
Public Records
Living Area Units
Square Feet
Lot Features
City Limits, Near Public Transit, Sidewalk
Lot Size Acres
0.23
Lot Size Square Feet
10000
Lot Size Square Meters
929
Middle Or Junior School
Heron Creek Middle
Minimum Lease
No Minimum
Modification Timestamp
2025-11-17T18:54:09.426Z
New Construction YN
false
Occupant Type
Owner
Other Equipment
Irrigation Equipment
Other Structures
Shed(s)
Ownership
Fee Simple
Parcel Number
0973173103
Patio And Porch Features
Deck, Enclosed, Patio, Porch, Screened
Pets Allowed
Yes
Pool Private YN
false
Postal Code Plus 4
4114
Previous List Price
329000
Price Change Timestamp
2025-11-17T18:53:07.000Z
Public Remarks
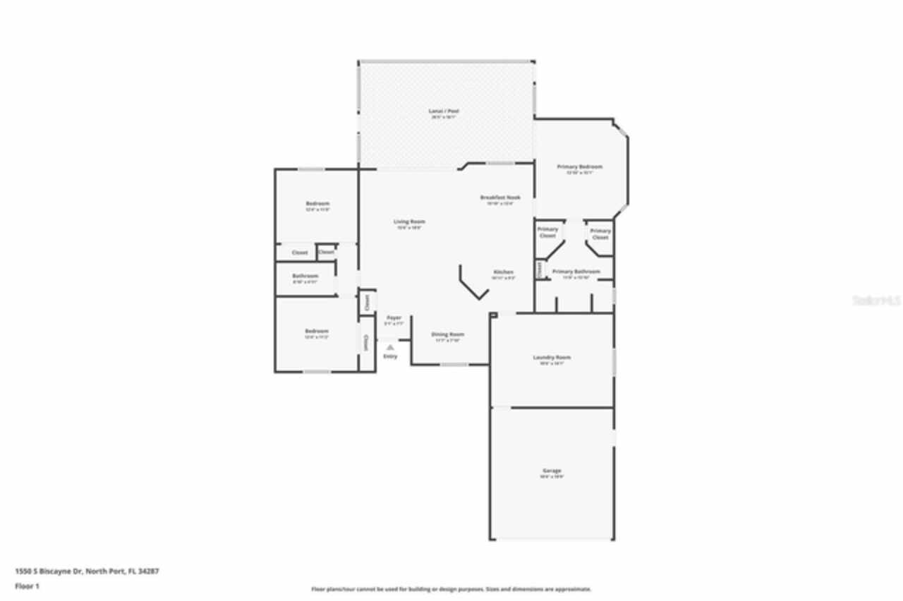
Gorgeous 3BR/2BA Home with Spa, Bonus Room & Upgrades Galore! PUBLIC WATER! NO HOA OR CDD! NOT FLOOD ZONE! Welcome to your dream home! This immaculate 3 bedroom, 2 bathroom residence with a 2-car garage features a built-in in-ground spa, beautiful ceramic tile throughout, and a spacious open floor plan with cathedral ceilings. The kitchen is a chef’s delight with granite countertops, updated backsplash and large single sink and touchless faucet (2022), a Gas stove, and newer stainless steel appliances. Enjoy casual dining at the breakfast bar. dishwasher, counter depth premium refrigerator, and modern finishes. Relax in luxury on the screened-in lanai, featuring travertine flooring (2022) and access to your private spa with a brand-new motor (2025). The large bonus room is ideal for a man cave, playroom, craft room, or office — the possibilities are endless! The master suite includes French doors to the lanai, his and hers walk-in closets, and a bump-out for extra space. The ensuite bathroom, recently updated, boasts a skylight, walk-in shower, and a separate soaking tub. The guest bedrooms completely are generously sized with large closets, with brand new light/fan and the second bathroom completely remodeled (2024) also features a skylight and a shower. Additional features: New sprinkler system and backflow valve (2024) Roof replaced in 2016 Septic tank cleaned (June 2024) Gas lines installed in 2016 for stove and dryer (Calkins Gas tank rented, prepaid through May 2026, $64/yr) Hurricane shutters for peace of mind. Concrete slab for grilling and a shed with electric – perfect for a workshop or extra storage! Excellent location near the Warm Mineral Springs and the NEW Sarasota County Public Hospital Board approved a $450 million plan today to build North Port’s first hospital on North Sumter Boulevard in North Port . Discover the nearby pristine Gulf beaches, where you can bask in the sun, partake in water activities, or simply relish the tranquility of the ocean. Embark on nautical adventures from the conveniently located marinas, allowing you to explore the region's captivating waterways and nearby islands. Fishing enthusiasts will delight in the world-class fishing opportunities, while golf aficionados can indulge in a variety of renowned golf courses. North Port is known for its thriving shopping and dining scene, featuring a diverse range of retail centers, boutiques, and restaurants. Immerse yourself in the vibrant downtown area, boasting charming shops, art galleries, and entertainment venues. The city hosts numerous cultural events, festivals, and community gatherings throughout the year, ensuring there's always something exciting happening. Beyond the city's amenities, this vacant lot offers proximity to breathtaking nature parks and preserves. Nature enthusiasts will find endless opportunities to connect with the outdoors just moments away from this property. North Port also boasts excellent educational institutions, reliable medical facilities, and convenient transportation options. The city's welcoming community and strong sense of belonging make it an ideal place to establish roots and create lasting memories. Do not miss out on this exceptional opportunity to craft your dream home or invest in a prime location.Experience the best of Florida with nearby beaches, golf courses, and outdoor recreational activities just a short drive away. Don't miss out on the chance to own this extraordinary home.
Public Survey Range
21
Public Survey Section
19
RATIO Current Price By Calculated SqFt
169.41
Realtor Info
As-Is
Road Surface Type
Asphalt, Paved
Roof
Shingle
Room Count
11
SW Subdiv Community Name
Port Charlotte Sub
Security Features
Smoke Detector(s)
Senior Community YN
false
Sewer
Septic Tank
Showing Requirements
Call Listing Agent
Spa Features
Heated
Spa YN
true
Status Change Timestamp
2025-08-22T01:02:09.000Z
Tax Annual Amount
2666
Tax Block
1731
Tax Book Number
16-3
Tax Legal Description
LOT 3 BLK 1731 36TH ADD TO PORT CHARLOTTE
Tax Lot
3
Tax Year
2024
Total Acreage
0 to less than 1/4
Total Annual Fees
0.00
Total Monthly Fees
0.00
Township
39
Universal Property Id
US-12115-N-0973173103-R-N
Unparsed Address
1550 S BISCAYNE DR
Utilities
Cable Available, Electricity Connected, Public
Vegetation
Oak Trees, Trees/Landscaped
Water Source
Public
Waterfront YN
false
Window Features
Skylight(s), Blinds
Zoning
RSF2
Neighborhood Map
Popup

Property Photos
Listing Photo
Listing Photo
Listing Photo
Listing Photo
Listing Photo
Listing Photo
Listing Photo
Listing Photo
Listing Photo
Listing Photo
Listing Photo
Listing Photo
Listing Photo
Listing Photo
Listing Photo
Listing Photo
Listing Photo
Listing Photo
Listing Photo
Listing Photo
Listing Photo
Listing Photo
Listing Photo
Listing Photo
Listing Photo
Listing Photo
Listing Photo
Listing Photo
Listing Photo
Listing Photo
Listing Photo
Listing Photo
Listing Photo
Listing Photo
Listing Photo
Listing Photo
Listing Photo
Listing Photo
Listing Photo
Listing Photo
Listing Photo
Listing Photo
Listing Photo
Listing Photo
Listing Photo
Listing Photo
Listing Photo
Listing Photo
Listing Photo
Listing Photo
Listing Photo
Listing Photo
Listing Photo
Listing Photo
Listing Photo
Listing Photo
Listing Photo
Listing Photo
Listing Photo
Listing Photo
Listing Photo
Listing Photo
Listing Photo
Listing Photo
Listing Photo
Listing Photo
Listing Photo
Listing Photo
Listing Photo
Listing Photo
Listing Photo
Listing Photo
Listing Photo
Listing Photo
Listing Photo
Listing Photo
Listing Photo
Listing Photo
Listing Photo
Listing Photo
Listing Photo
Listing Photo
Listing Photo
Listing Photo
Listing Photo
Listing Photo
Listing Photo
Listing Photo
Listing Photo
Listing Photo
Listing Photo
Listing Photo
Listing Photo
Listing Photo
Listing Photo
Listing Photo
Listing Photo
Listing Photo
Listing Photo
Listing Photo

MLS #MFRN6139810 Listing courtesy of Re/max Palm Realty Of Venice provided by Stellar MLS.

Similar Listings

$287,649
2624 Averland Loop
North Port
3BR/2BA
| Active
$287,777
6796 Electra Avenue
North Port
3BR/2BA
| Active
$288,900
1877 Zuyder Terrace
North Port
3BR/2BA
| Pending
$289,000
4215 Amari Road
North Port
3BR/2BA
| Active



All listing information is deemed reliable but not guaranteed and should be independently verified through personal inspection by appropriate professionals. Listings displayed on this website may be subject to prior sale or removal from sale; availability of any listing should always be independent verified. Listing information is provided for consumer personal, non-commercial use, solely to identify potential properties for potential purchase; all other use is strictly prohibited and may violate relevant federal and state law. The source of the listing data is as follows: Stellar MLS (updated 12/19/25 5:36 PM) |

Listing Search



Translate Tool

Featured Listings
Parrish Real Estate
$1,049,150
3 BED
3 BATH
Apollo Beach Real Estate
$824,900
3 BED
2 BATH
San Antonio Real Estate
$1,049,990
5 BED
4 BATH
St Petersburg Real Estate
$890,000
3 BED
3 BATH
Winter Springs Real Estate
$926,160
4 BED
3 BATH
Umatilla Real Estate
$895,000
4 BED
3 BATH
Parrish Real Estate
$1,100,000
5 BED
4 BATH
Orlando Real Estate
$915,000
6 BED
4 BATH
Hernando Beach Real Estate
$985,000
3 BED
2 BATH
Sarasota Real Estate
$849,900
3 BED
2 BATH
Contact Sandra Pardo

407-990-2746

Wendy Morris LLC

Licensed in the State of Florida
BK 3146762
16797 Broadwater Avenue
Winter Garden, Florida 34787

Your privacy is our utmost concern. We will never sell your personal information. Privacy Policy
©2025 sandrapardohomes.com - all rights reserved. | Site Map