407-990-2746
Menu

1501 Gulf Boulevard Unit: Unit: 205, Clearwater Beach, FL

NEXT
PREV
$868,000

($459/sqft)

List Status: Active
1501 Gulf Boulevard
Clearwater Beach, FL 33767


3 beds
2 baths
1890 living sqft
Top Features
  • Frontage: Intracoastal Waterway
  • View: Water
  • Subdivision: Sand Key Condo-south Bay
  • Built in  1983
  • Condominium
Description
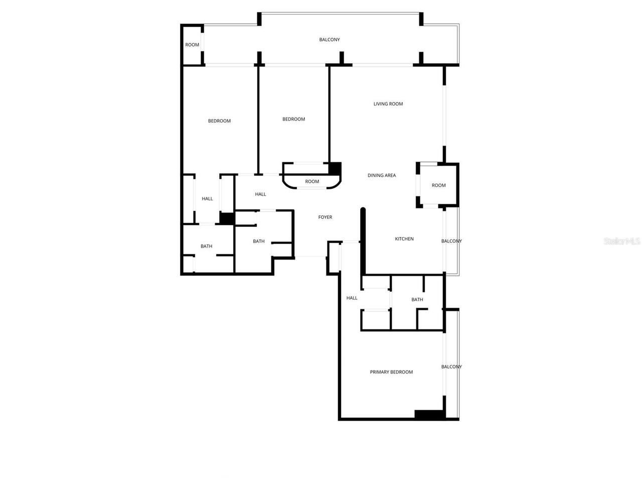
Sweeping water views and exceptional value define this beautifully updated three bedroom, two and a half bathroom corner residence on Sand Key. Located in the highly sought-after 05 stack, this rarely available end unit enjoys unobstructed views from every room and a remarkable 40-foot private balcony overlooking the Intracoastal Waterway. Begin your mornings with coffee as the sun rises over the water and end your evenings watching the sky glow as the sun settles toward the Gulf. Inside, the open floor plan connects a spacious kitchen with stainless steel appliances and a large center island for casual dining to bright living and dining areas framed by panoramic water views. A thoughtful split-bedroom layout provides privacy while ensuring every bedroom enjoys water views, and the guest bedrooms offer direct access to the balcony. South Bay offers a relaxed resort-style lifestyle with a waterfront geo-thermal heated saline pool open year-round, secure gated entry, a whole-building water softener, kayak and paddleboard storage with direct Intracoastal access, bike storage, and a clubhouse featuring a full kitchen, billiards room, fitness center, and outdoor grilling area. The calm waters behind the building are perfect for fishing, paddleboarding, or simply watching dolphins and seabirds pass by. Just steps from the soft sands of Sand Key Beach and a short walk to restaurants, shops, and nearby tennis and pickleball courts, this residence offers the ideal balance of beachside tranquility and everyday convenience. With expansive views, a coveted corner position, and newly adjusted pricing, this is a rare opportunity to enjoy the best of Sand Key living. Owner financing available.
Property Details
Additional Information
Additional Lease Restrictions
Confirm Rental Restrictions with HOA
Additional Parcels YN
false
Alternate Key Folio Num
192915786430000205
Appliances
Bar Fridge, Cooktop, Dishwasher, Dryer, Microwave, Refrigerator, Washer
Approval Process
Confirm Approval Process with HOA
Association Amenities
Cable TV, Clubhouse, Elevator(s), Fitness Center, Gated, Lobby Key Required, Maintenance, Pool, Recreation Facilities, Storage
Association Approval Required YN
1
Association Email
kglaser@condominiumassociates.com
Association Fee
1134
Association Fee Frequency
Monthly
Association Fee Includes
Cable TV, Common Area Taxes, Pool, Escrow Reserves Fund, Maintenance Structure, Maintenance Grounds, Maintenance, Management, Pest Control, Recreational Facilities, Security, Sewer, Trash, Water
Association Fee Requirement
Required
Association YN
true
Available For Lease YN
1
Bathrooms Total Integer
3
Building Area Source
Public Records
Building Area Total
1890
Building Area Total Srch SqM
175.59
Building Area Units
Square Feet
Building Elevator YN
1
Calculated List Price By Calculated SqFt
459.26
Carport Spaces
1
Carport YN
true
Community Features
Clubhouse, Deed Restrictions, Gated Community - No Guard, Irrigation-Reclaimed Water, Pool, Sidewalks
Construction Materials
Concrete
Cooling
Central Air
Country
US
Cumulative Days On Market
64
Current Price
868000.00
Direction Faces
West
Exterior Features
Balcony, Hurricane Shutters, Lighting, Outdoor Grill, Outdoor Shower, Sidewalk, Sliding Doors, Storage
Fireplace YN
false
Flood Zone Code
AE
Floor Number
2
Flooring
Hardwood, Luxury Vinyl, Tile
Foundation Details
Slab
Furnished
Unfurnished
Garage YN
false
Heating
Central, Electric
Interior Features
Ceiling Fans(s), Crown Molding, Dry Bar, Living Room/Dining Room Combo, Open Floorplan, Primary Bedroom Main Floor, Solid Wood Cabinets, Split Bedroom, Stone Counters
Internet Address Display YN
true
Internet Automated Valuation Display YN
true
Internet Consumer Comment YN
true
Internet Entire Listing Display YN
true
Laundry Features
Inside
Lease Restrictions YN
1
Levels
One
List AOR
Suncoast Tampa
Living Area Meters
175.59
Living Area Source
Public Records
Living Area Units
Square Feet
Lot Features
Landscaped, Level, Near Golf Course, Near Marina, Near Public Transit, Oversized Lot, Sidewalk, Paved
Max Pet Weight
20
Minimum Lease
3 Months
Modification Timestamp
2026-04-03T11:38:08.976Z
Monthly HOA Amount
1134.00
New Construction YN
false
Number Of Pets
1
Occupant Type
Vacant
Other Equipment
Irrigation Equipment, Generator
Ownership
Fee Simple
Parcel Number
19-29-15-78643-000-0205
Patio And Porch Features
Deck, Patio
Pet Restrictions
Confirm Pet Restrictions with HOA
Pet Size
Small (16-35 Lbs.)
Pets Allowed
Yes
Pool Private YN
false
Postal Code Plus 4
2902
Previous List Price
898000
Price Change Timestamp
2026-03-12T15:47:32.000Z
Property Description
Corner Unit
Public Survey Range
15
Public Survey Section
19
RATIO Current Price By Calculated SqFt
459.26
Realtor Info
As-Is, List Agent is Owner, No Sign
Road Surface Type
Paved
Roof
Membrane
Room Count
3
Security Features
Gated Community, Key Card Entry, Security Gate, Smoke Detector(s)
Senior Community YN
false
Sewer
Public Sewer
Showing Requirements
Appointment Only, See Remarks, ShowingTime
Status Change Timestamp
2026-01-29T13:44:30.000Z
Stories Total
8
Tax Annual Amount
14211.43
Tax Block
000
Tax Book Number
71-64
Tax Legal Description
SAND KEY CONDO-SOUTH BAY 1501 GULF BLVD UNIT 205
Tax Lot
000
Tax Year
2024
Total Annual Fees
13608.00
Total Monthly Fees
1134.00
Township
29
Universal Property Id
US-12103-N-192915786430000205-S-205
Unparsed Address
1501 GULF BLVD #205
Utilities
Public
Vegetation
Mature Landscaping, Trees/Landscaped
Water Access
Intracoastal Waterway
Water Access YN
1
Water Body Name
INTRACOASTAL WATERWAY
Water Extras
Seawall - Concrete
Water Extras YN
1
Water Frontage Feet ICW
900
Water Source
Public
Water View
Intracoastal Waterway
Water View YN
1
Waterfront Feet Total
900
Waterfront YN
true
Window Features
Blinds
Neighborhood Map
Popup

Property Photos
Listing Photo
Listing Photo
Listing Photo
Listing Photo
Listing Photo
Listing Photo
Listing Photo
Listing Photo
Listing Photo
Listing Photo
Listing Photo
Listing Photo
Listing Photo
Listing Photo
Listing Photo
Listing Photo
Listing Photo
Listing Photo
Listing Photo
Listing Photo
Listing Photo
Listing Photo
Listing Photo
Listing Photo
Listing Photo
Listing Photo
Listing Photo
Listing Photo
Listing Photo
Listing Photo
Listing Photo
Listing Photo
Listing Photo
Listing Photo
Listing Photo
Listing Photo
Listing Photo
Listing Photo
Listing Photo
Listing Photo
Listing Photo
Listing Photo
Listing Photo
Listing Photo
Listing Photo
Listing Photo
Listing Photo
Listing Photo
Listing Photo
Listing Photo
Listing Photo
Listing Photo
Listing Photo
Listing Photo
Listing Photo
Listing Photo
Listing Photo
Listing Photo
Listing Photo
Listing Photo
Listing Photo
Listing Photo
Listing Photo
Listing Photo
Listing Photo
Listing Photo
Listing Photo
Listing Photo
Listing Photo
Listing Photo

MLS #MFRTB8470178 Listing courtesy of Coastal Properties Group International provided by Stellar MLS.

Similar Listings

$789,000
240 Windward Passage
Clearwater Beach
3BR/2BA
| Active
$795,000
833 Lantana Avenue
Clearwater Beach
3BR/2BA
| Active
$814,900
66 Kipling Plaza
Clearwater Beach
3BR/2BA
| Active
$825,000
445 Hamden Drive
Clearwater Beach
3BR/2BA
| Active



All listing information is deemed reliable but not guaranteed and should be independently verified through personal inspection by appropriate professionals. Listings displayed on this website may be subject to prior sale or removal from sale; availability of any listing should always be independent verified. Listing information is provided for consumer personal, non-commercial use, solely to identify potential properties for potential purchase; all other use is strictly prohibited and may violate relevant federal and state law. The source of the listing data is as follows: Stellar MLS (updated 4/3/26 9:02 AM) |

Listing Search



Translate Tool

Featured Listings
Apollo Beach Real Estate
$1,199,000
4 BED
4 BATH
5616 Seagrass Place | Gulfview Floorplan 4 Beds | 4 Baths | Den + Loft | 3,618 Sq Ft | Oversized Lot with 140’ Waterfron... Read More
Bradenton Real Estate
$826,129
3 BED
3 BATH
Under Construction. What's Special: Covered Extended Lanai | Gourmet Kitchen | Large Kitchen Island. New Construction – ... Read More
Lutz Real Estate
$849,999
5 BED
4 BATH
Under contract-accepting backup offers. ***Welcome to 19484 Blossom Vine Ln*** A beautifully upgraded pool home offering... Read More
Eustis Real Estate
$850,000
4 BED
3 BATH
Price improvement! Now offered at $850,000, this beautifully updated lakefront home on the private, skiable waters of La... Read More
Clearwater Beach Real Estate
$949,000
2 BED
2 BATH
Come live the Florida lifestyle right on the beach. Your new 2BR/2BA condo is move-in ready and located in Crescent Beac... Read More
Orlando Real Estate
$1,469,000
5 BED
4 BATH
Brand-new luxury construction by LUIH Homes in the heart of College Park—modern design, high-end finishes, and a resort-... Read More
Wesley Chapel Real Estate
$979,000
5 BED
4 BATH
BACK ON THE MARKET! BUYER FINANCING FELL THROUGH! Welcome home to luxury living inside the gated Ravello section of beau... Read More
St Petersburg Real Estate
$1,250,000
3 BED
2 BATH
Why wait to build or rehab when you can *Move Right In* this Beautiful Venetian Isles Waterfront Pool Home on the Point ... Read More
St Petersburg Real Estate
$815,000
4 BED
2 BATH
Price reduction ! Desirable jungle shores with private community water access. Completely updated home with 4 beds , 2 b... Read More
BELLA COLLINA Real Estate
$1,273,300
4 BED
5 BATH
Short Sale. ”SHORT SALE.” Discover true Mediterranean luxury in the highly sought-after, guard-gated community of Bella ... Read More
Contact Sandra Pardo

407-990-2746

Wendy Morris LLC

Licensed in the State of Florida
BK 3146762
16797 Broadwater Avenue
Winter Garden, Florida 34787

Your privacy is our utmost concern. We will never sell your personal information. Privacy Policy
©2026 sandrapardohomes.com - all rights reserved. | Site Map