407-990-2746
Menu

1450 Hilltop Drive, Mount Dora, FL

NEXT
PREV
$765,000

($295/sqft)

List Status: Active
1450 Hilltop Drive
Mount Dora, FL 32757


4 beds
3 baths
2590 living sqft
Top Features
  • Subdivision: Mount Dora Pt Rep Pine Crest Unit 02
  • Built in  1974
  • Single Family Residence
Description
Property Details
Additional Information
Additional Parcels YN
false
Alternate Key Folio Num
271930100000000600
Appliances
Dishwasher, Electric Water Heater, Microwave, Range, Refrigerator
Association YN
false
Attached Garage YN
true
Available For Lease YN
1
Bathrooms Total Integer
3
Building Area Source
Public Records
Building Area Total
2590
Building Area Total Srch SqM
240.62
Building Area Units
Square Feet
Calculated List Price By Calculated SqFt
295.37
Carport YN
false
Construction Materials
Brick, Frame
Cooling
Central Air
Country
US
Cumulative Days On Market
31
Current Price
765000.00
Direction Faces
South
Elementary School
Triangle Elem
Exterior Features
Private Mailbox
Fencing
Fenced, Vinyl
Fireplace Features
Wood Burning
Fireplace YN
true
Flood Zone Code
X*
Flood Zone Date
2012-12-18
Flood Zone Panel
12069C0367E
Flooring
Vinyl
Foundation Details
Block
Garage Spaces
2
Garage YN
true
Heating
Natural Gas
High School
Mount Dora High
Homestead YN
1
Interior Features
Open Floorplan, Thermostat, Walk-In Closet(s)
Internet Address Display YN
true
Internet Automated Valuation Display YN
true
Internet Consumer Comment YN
true
Internet Entire Listing Display YN
true
Laundry Features
Laundry Room
Levels
Three Or More
List AOR
Lake and Sumter
Living Area Meters
240.62
Living Area Source
Public Records
Living Area Units
Square Feet
Lot Size Acres
0.46
Lot Size Dimensions
125x159
Lot Size Square Feet
19875
Lot Size Square Meters
1846
Middle Or Junior School
Mount Dora Middle
Minimum Lease
No Minimum
Modification Timestamp
2025-12-13T13:09:08.724Z
New Construction YN
false
Occupant Type
Vacant
Ownership
Fee Simple
Parcel Number
30-19-27-1000-000-00600
Pool Private YN
true
Postal Code Plus 4
3747
Previous List Price
775000
Price Change Timestamp
2025-12-13T13:08:16.000Z
Public Remarks
One or more photo(s) has been virtually staged. This beautiful, fully remodeled 4-bedroom, 3-bath home offers the perfect blend of comfort, style, and convenience. Step outside to your own private oasis featuring a sparkling pool surrounded by a large paver patio, perfect for entertaining or relaxing in the Florida sunshine. Enjoy peaceful mornings or evening gatherings on the back deck, partially screened-in for year-round enjoyment. Inside, you'll find spacious living areas, an inviting layout, and room for everyone to unwind. Located just minutes from downtown Mount Dora, you're close to shopping, restaurants, and all the charm this beloved lakefront town has to offer. Come experience the Mount Dora lifestyle, where comfort meets convenience!
Public Survey Range
27E
Public Survey Section
30
RATIO Current Price By Calculated SqFt
295.37
Realtor Info
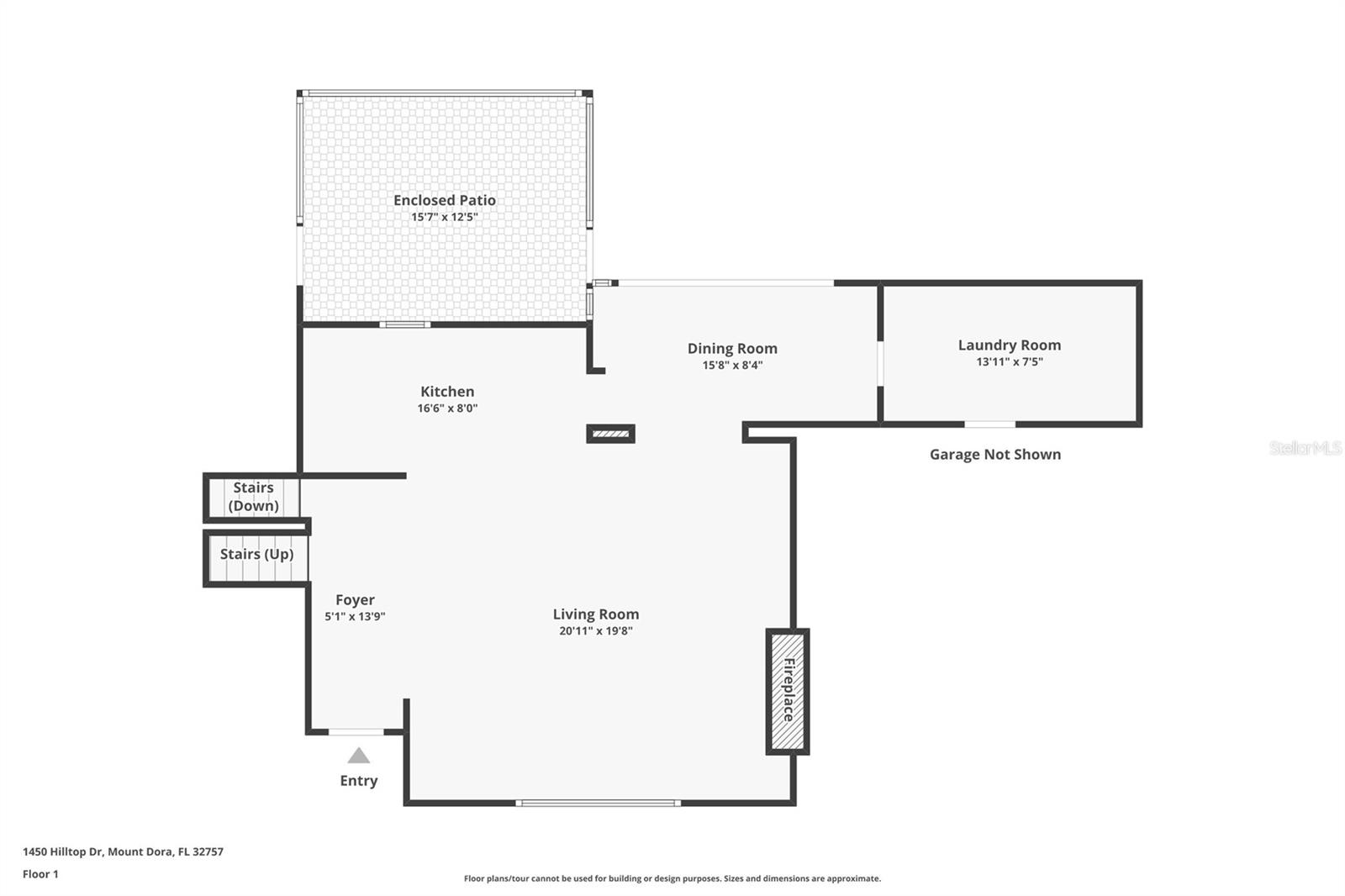
Floor Plan Available
Road Surface Type
Paved
Roof
Shingle
Room Count
6
Senior Community YN
false
Sewer
Public Sewer
Showing Requirements
ShowingTime
Status Change Timestamp
2025-11-12T21:22:39.000Z
Stories Total
3
Tax Annual Amount
3390.38
Tax Block
000
Tax Book Number
15-39
Tax Legal Description
MOUNT DORA PINE CREST UNIT 2 PARTIAL REPLAT SUB LOT 6 PB 15 PG 39 ORB 1124 PG 1097 ORB 1648 PG 787
Tax Lot
6
Tax Year
2024
Total Acreage
1/4 to less than 1/2
Total Annual Fees
0.00
Total Monthly Fees
0.00
Township
19S
Universal Property Id
US-12069-N-301927100000000600-R-N
Unparsed Address
1450 HILLTOP DR
Utilities
Public
Waterfront YN
false
Zoning
R-1A
Neighborhood Map
Popup

Property Photos
Listing Photo
Listing Photo
Listing Photo
Listing Photo
Listing Photo
Listing Photo
Listing Photo
Listing Photo
Listing Photo
Listing Photo
Listing Photo
Listing Photo
Listing Photo
Listing Photo
Listing Photo
Listing Photo
Listing Photo
Listing Photo
Listing Photo
Listing Photo
Listing Photo
Listing Photo
Listing Photo
Listing Photo
Listing Photo
Listing Photo
Listing Photo
Listing Photo
Listing Photo
Listing Photo
Listing Photo
Listing Photo
Listing Photo
Listing Photo
Listing Photo
Listing Photo
Listing Photo
Listing Photo
Listing Photo
Listing Photo
Listing Photo
Listing Photo
Listing Photo
Listing Photo
Listing Photo
Listing Photo
Listing Photo
Listing Photo
Listing Photo
Listing Photo
Listing Photo
Listing Photo
Listing Photo
Listing Photo
Listing Photo
Listing Photo
Listing Photo
Listing Photo
Listing Photo
Listing Photo
Listing Photo
Listing Photo
Listing Photo
Listing Photo
Listing Photo
Listing Photo
Listing Photo
Listing Photo
Listing Photo
Listing Photo
Listing Photo
Listing Photo
Listing Photo
Listing Photo
Listing Photo
Listing Photo
Listing Photo
Listing Photo
Listing Photo
Listing Photo
Listing Photo
Listing Photo
Listing Photo
Listing Photo
Listing Photo
Listing Photo
Listing Photo
Listing Photo
Listing Photo
Listing Photo
Listing Photo
Listing Photo
Listing Photo
Listing Photo
Listing Photo
Listing Photo
Listing Photo
Listing Photo
Listing Photo
Listing Photo
Listing Photo
Listing Photo
Listing Photo
Listing Photo
Listing Photo
Listing Photo
Listing Photo
Listing Photo
Listing Photo
Listing Photo
Listing Photo
Listing Photo
Listing Photo
Listing Photo
Listing Photo
Listing Photo
Listing Photo
Listing Photo
Listing Photo
Listing Photo
Listing Photo
Listing Photo

MLS #MFRO6358994 Listing courtesy of Lpt Realty, Llc provided by Stellar MLS.

Similar Listings

$698,000
908 N Tremain Street
Mount Dora
4BR/3BA
| Pending
$699,999
30101 Bretton Loop
Mount Dora
4BR/3BA
| Active
$770,650
32025 Timberlake Drive
Mount Dora
4BR/3BA
| Active
$795,000
8348 Bridgeport Bay Circle
Mount Dora
4BR/3BA
| Active



All listing information is deemed reliable but not guaranteed and should be independently verified through personal inspection by appropriate professionals. Listings displayed on this website may be subject to prior sale or removal from sale; availability of any listing should always be independent verified. Listing information is provided for consumer personal, non-commercial use, solely to identify potential properties for potential purchase; all other use is strictly prohibited and may violate relevant federal and state law. The source of the listing data is as follows: Stellar MLS (updated 12/13/25 5:17 PM) |

Listing Search



Translate Tool

Featured Listings
Sarasota Real Estate
$1,350,000
2 BED
2 BATH
Tampa Real Estate
$899,999
4 BED
3 BATH
Seminole Real Estate
$887,184
3 BED
2 BATH
Sarasota Real Estate
$985,000
2 BED
2 BATH
Seminole Real Estate
$885,675
3 BED
2 BATH
St Petersburg Real Estate
$990,000
3 BED
3 BATH
Clearwater Real Estate
$825,000
4 BED
2 BATH
Seminole Real Estate
$872,000
3 BED
2 BATH
Seminole Real Estate
$863,415
3 BED
2 BATH
Seminole Real Estate
$863,415
3 BED
2 BATH
Contact Sandra Pardo

407-990-2746

Wendy Morris LLC

Licensed in the State of Florida
BK 3146762
16797 Broadwater Avenue
Winter Garden, Florida 34787

Your privacy is our utmost concern. We will never sell your personal information. Privacy Policy
©2025 sandrapardohomes.com - all rights reserved. | Site Map