407-990-2746
Menu

14368 Desert Haven Street Unit: Unit: 4106, Windermere, FL

NEXT
PREV
$360,000

($196/sqft)

List Status: Active
14368 Desert Haven Street
Windermere, FL 34786


3 beds
2 baths
1840 living sqft
Top Features
  • Subdivision: Oasis Cove Ii/lakeside Village #xi
  • Built in  2013
  • Condominium
Description
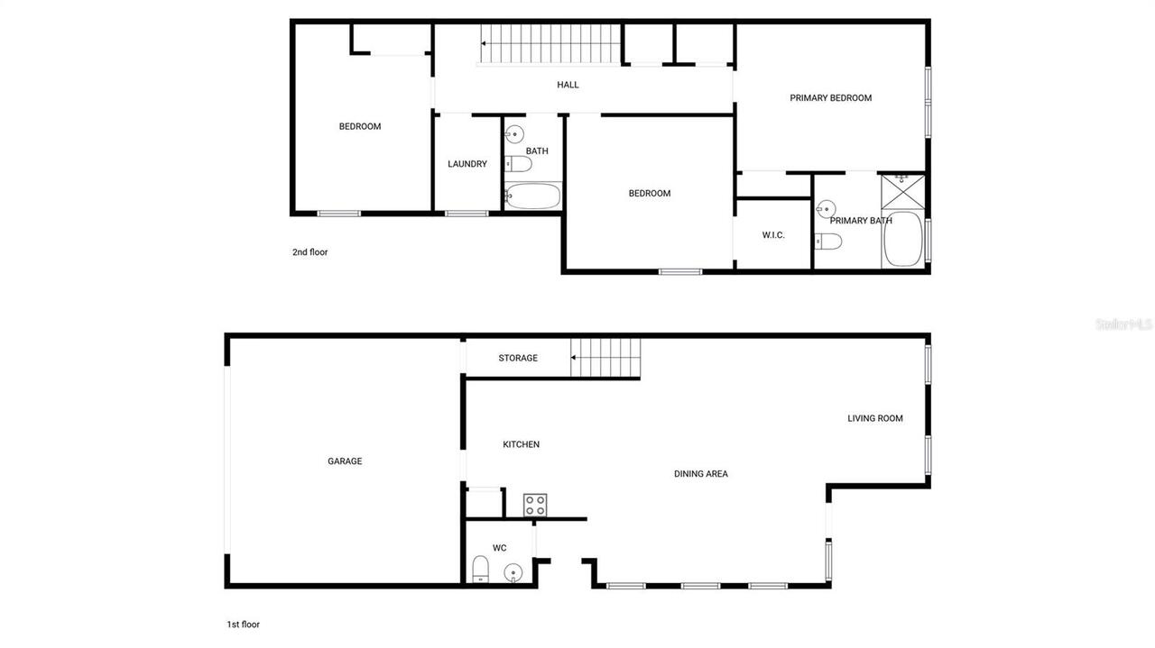
Don't miss 14368 Desert Haven St, recently enhanced with a partial flooring replacement, providing an updated surface throughout. The kitchen is equipped with stainless steel appliances for functional meal preparation. This residence includes a primary bedroom with a spacious walk-in closet, and its connecting bathroom provides double sinks and a separate tub and shower, contributing to its practical design. Included 100-Day Home Warranty with buyer activation
Property Details
Additional Information
Additional Lease Restrictions
Buyer to verify.
Additional Parcels YN
false
Alternate Key Folio Num
34-23-27-5842-04-106
Appliances
Electric Water Heater, Other, Range
Approval Process
Buyer to verify.
Association Approval Required YN
1
Association Fee
541
Association Fee Frequency
Monthly
Association Fee Includes
Pool, Other, Trash
Association Fee Requirement
Required
Association YN
true
Attached Garage YN
true
Bathrooms Total Integer
3
Building Area Source
Public Records
Building Area Total
1840
Building Area Total Srch SqM
170.94
Building Area Units
Square Feet
Calculated List Price By Calculated SqFt
195.65
Carport YN
false
Community Features
Gated Community - No Guard, Pool
Construction Materials
Stucco
Cooling
Central Air
Country
US
Cumulative Days On Market
2
Current Price
360000.00
Direction Faces
East
Exterior Features
Other
Fireplace YN
false
Flood Zone Code
X
Flood Zone Date
2021-09-24
Flood Zone Panel
12095C0380H
Flooring
Carpet
Foundation Details
Slab
Furnished
Unfurnished
Garage Spaces
2
Garage YN
true
Heating
Central
Interior Features
L Dining, Primary Bedroom Main Floor
Internet Address Display YN
true
Internet Automated Valuation Display YN
false
Internet Consumer Comment YN
false
Internet Entire Listing Display YN
true
Laundry Features
Laundry Room
Lease Restrictions YN
1
Levels
One
List AOR
Orlando Regional
Living Area Meters
170.94
Living Area Source
Public Records
Living Area Units
Square Feet
Lot Size Acres
0.03
Lot Size Square Feet
1211
Lot Size Square Meters
113
Max Pet Weight
999
Minimum Lease
No Minimum
Modification Timestamp
2026-04-08T19:10:11.220Z
Monthly HOA Amount
541.00
New Construction YN
false
Occupant Type
Vacant
Ownership
Fee Simple
Parcel Number
34-23-27-5842-04-106
Pets Allowed
Yes
Pool Private YN
false
Postal Code Plus 4
6817
Public Survey Range
27
Public Survey Section
34
RATIO Current Price By Calculated SqFt
195.65
Road Surface Type
Asphalt
Roof
Shingle
Room Count
3
Security Features
Security System Owned
Senior Community YN
false
Sewer
Public Sewer
Showing Requirements
Appointment Only, See Remarks, ShowingTime
Spa YN
false
Status Change Timestamp
2026-04-06T22:23:57.000Z
Stories Total
2
Tax Annual Amount
3885
Tax Book Number
0 - 0
Tax Legal Description
OASIS COVE 2 AT LAKESIDE VILLAGE CONDOMINIUM PHASES 12 AND 15 10557/8311 UNIT 4106 BLDG 41
Tax Year
2025
Total Acreage
0 to less than 1/4
Total Annual Fees
6492.00
Total Monthly Fees
541.00
Township
23
Universal Property Id
US-12095-N-342327584204106-S-4106
Unparsed Address
14368 DESERT HAVEN ST #4106
Utilities
Electricity Available, Water Available
Water Source
Public
Waterfront YN
false
Zoning
R-3
Neighborhood Map
Popup

Property Photos
Listing Photo
Listing Photo
Listing Photo
Listing Photo
Listing Photo
Listing Photo
Listing Photo
Listing Photo
Listing Photo
Listing Photo
Listing Photo
Listing Photo
Listing Photo
Listing Photo
Listing Photo
Listing Photo
Listing Photo
Listing Photo
Listing Photo
Listing Photo
Listing Photo
Listing Photo
Listing Photo
Listing Photo
Listing Photo
Listing Photo
Listing Photo
Listing Photo
Listing Photo
Listing Photo
Listing Photo
Listing Photo
Listing Photo
Listing Photo
Listing Photo
Listing Photo
Listing Photo
Listing Photo
Listing Photo
Listing Photo
Listing Photo
Listing Photo
Listing Photo
Listing Photo
Listing Photo
Listing Photo
Listing Photo
Listing Photo
Listing Photo
Listing Photo
Listing Photo
Listing Photo
Listing Photo
Listing Photo

MLS #MFRO6396784 Listing courtesy of Opendoor Brokerage Llc provided by Stellar MLS.

Similar Listings

$325,000
8180 Boat Hook Loop
Windermere
3BR/2BA
| Active
$330,000
8179 Maritime Flag Street
Windermere
3BR/2BA
| Active
$335,000
11446 Jasper Kay Terrace
Windermere
3BR/2BA
| Active
$338,490
8256 Maritime Flag Street
Windermere
3BR/2BA
| Pending



All listing information is deemed reliable but not guaranteed and should be independently verified through personal inspection by appropriate professionals. Listings displayed on this website may be subject to prior sale or removal from sale; availability of any listing should always be independent verified. Listing information is provided for consumer personal, non-commercial use, solely to identify potential properties for potential purchase; all other use is strictly prohibited and may violate relevant federal and state law. The source of the listing data is as follows: Stellar MLS (updated 4/24/26 1:13 PM) |

Listing Search



Translate Tool

Featured Listings
Tampa Real Estate
$1,350,000
3 BED
2 BATH
Classic ranch home with great floor floorplan on waterfront canal in Stoney Point in South Tampa! This is the perfect re... Read More
Newberry Real Estate
$825,000
4 BED
2 BATH
Welcome to a truly exceptional opportunity to own a breathtaking 20-acre ranch in highly sought-after Gilchrist County—w... Read More
Orlando Real Estate
$850,000
6 BED
4 BATH
A PLACE TO GROW, GATHER, AND BELONG This entertainer’s dream is a spectacular 6-bedroom pool home in an exclusive gated ... Read More
St Petersburg Real Estate
$1,395,000
4 BED
3 BATH
4 bed | 3 bath | 2-car garage — Bright waterfront block home with a split floor plan, fully remodeled throughout. Update... Read More
St Petersburg Real Estate
$1,099,900
3 BED
2 BATH
Previous buyer got "Cold Feet", which means they won't be enjoying this pool over the summer...but you can! This is the ... Read More
Bradenton Real Estate
$999,409
3 BED
3 BATH
Under Construction. What's Special: Pool Included | Deep Backyard | Gourmet Kitchen | Popular Plan. New Construction - J... Read More
Sarasota Real Estate
$1,450,000
3 BED
3 BATH
You have found your Dream Home built by Jonas Yoder Custom Homes - this is the kind of property that invites you to slow... Read More
Bradenton Real Estate
$999,000
3 BED
2 BATH
LIVE THE ROSEDALE COUNTRY CLUB LIFESTYLE in this beautifully maintained LAKEVIEW pool home, perfectly positioned on a PR... Read More
Bradenton Real Estate
$899,900
4 BED
3 BATH
NEW ROOF (2025) Cypress Creek Estates is a secluded, gated Manatee Riverfront enclave comprised of fewer than 90 elegant... Read More
Gulfport Real Estate
$849,000
2 BED
2 BATH
Experience the best of Florida living in this stunning 2-bedroom, 2-bath coastal retreat, ideally positioned just the se... Read More
Contact Sandra Pardo

407-990-2746

Wendy Morris LLC

Licensed in the State of Florida
BK 3146762
16797 Broadwater Avenue
Winter Garden, Florida 34787

Your privacy is our utmost concern. We will never sell your personal information. Privacy Policy
©2026 sandrapardohomes.com - all rights reserved. | Site Map