407-990-2746
Menu

1400 Gulf Boulevard Unit: Unit: 506, Clearwater Beach, FL

NEXT
PREV
$749,000

($458/sqft)

List Status: Pending
1400 Gulf Boulevard
Clearwater Beach, FL 33767


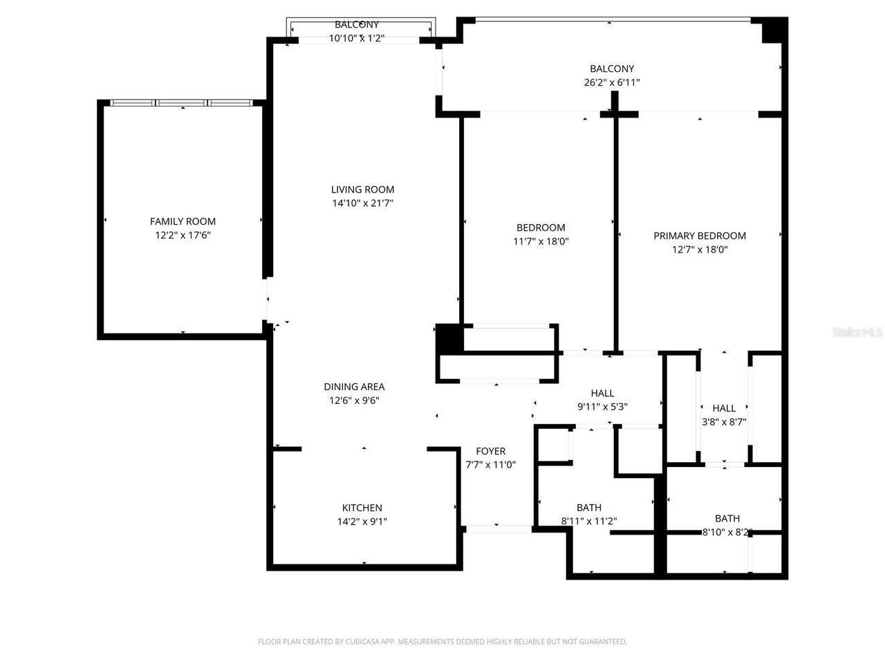
3 beds
2 baths
1637 living sqft
Top Features
  • View: Water
  • Subdivision: Sand Key Condo-south Beach 1
  • Built in  1973
  • Condominium
Description
Under contract-accepting backup offers. Welcome to Paradise!! Just move in to this 3 bedroom,2 bath furnished condo right on the Beach. Enjoy views of the Gulf and Intercoastal from your large balcony. Wood laminate and tile floors. Open and bright living area, kitchen with wood cabinets and solid surface countertops. Master bedroom has en-suite bath, and access to the balcony with a view. Ceiling fans, washer /Dryer in unit. Complex. has heated pool, tiki hut, workout room, club room. Gated security and door security. Under building parking spot, storage unit. Great location on Sand Key, short walk to the Shoppes with restaurants, gift and clothing shops., or jump on the Trolley to go to Clearwater Beach or South. Sailing center and Sand Key Park are nearby. All ages welcome. Live the beach style today!!
Property Details
Additional Information
Additional Lease Restrictions
See Manager for details
Additional Parcels YN
false
Additional Rooms
Inside Utility
Alternate Key Folio Num
29-15-19-78638-000-5060
Appliances
Dishwasher, Disposal, Dryer, Electric Water Heater, Microwave, Range, Refrigerator, Washer
Approval Process
Application and fee required
Association Amenities
Elevator(s), Gated, Lobby Key Required, Pool, Security, Storage
Association Approval Required YN
1
Association Fee Includes
Cable TV, Common Area Taxes, Internet, Maintenance Structure, Maintenance Grounds, Management, Pool, Sewer, Trash, Water
Association YN
true
Available For Lease YN
1
Bathrooms Total Integer
2
Building Area Source
Public Records
Building Area Total
1637
Building Area Total Srch SqM
152.08
Building Area Units
Square Feet
Building Elevator YN
1
Calculated List Price By Calculated SqFt
457.54
Carport Spaces
1
Carport YN
true
Community Features
Buyer Approval Required, Deed Restrictions, Gated Community - No Guard, Pool, Sidewalks
Condo Fees
1148
Condo Fees Term
Monthly
Condo Land Included YN
1
Construction Materials
Concrete
Contract Status
Inspections
Cooling
Central Air
Country
US
Cumulative Days On Market
29
Current Price
749000.00
Direction Faces
East
Elementary School
Mildred Helms Elementary-PN
Expected Closing Date
2026-04-10T00:00:00.000
Exterior Features
Balcony, Hurricane Shutters
Fireplace YN
false
Flood Zone Code
AE
Flood Zone Date
2021-08-24
Flood Zone Panel
12103C0104H
Floor Number
5
Flooring
Ceramic Tile, Laminate
Foundation Details
Slab
Furnished
Furnished
Garage YN
false
Heating
Central, Electric
High School
Largo High-PN
Homestead YN
1
Interior Features
Ceiling Fans(s), Open Floorplan, Solid Surface Counters, Solid Wood Cabinets, Window Treatments
Internet Address Display YN
true
Internet Automated Valuation Display YN
true
Internet Consumer Comment YN
true
Internet Entire Listing Display YN
true
Laundry Features
Inside
Lease Restrictions YN
1
Levels
One
List AOR
Suncoast Tampa
Living Area Meters
152.08
Living Area Source
Public Records
Living Area Units
Square Feet
Lot Features
City Limits, Sidewalk, Paved
Max Pet Weight
20
Middle Or Junior School
Largo Middle-PN
Minimum Lease
3 Months
Modification Timestamp
2026-03-13T12:52:09.187Z
Monthly Condo Fee Amount
1148
New Construction YN
false
Occupant Type
Owner
Ownership
Fee Simple
Parcel Number
19-29-15-78638-000-5060
Pet Restrictions
See Property Manager
Pets Allowed
Cats OK, Dogs OK
Pool Private YN
false
Postal Code Plus 4
2863
Previous List Price
799000
Price Change Timestamp
2026-02-27T15:56:05.000Z
Property Condition
Completed
Property Description
High Rise
Public Survey Range
15
Public Survey Section
19
Purchase Contract Date
2026-03-11
RATIO Current Price By Calculated SqFt
457.54
Realtor Info
As-Is
Road Surface Type
Paved
Roof
Other
Room Count
5
Security Features
Gated Community, Key Card Entry, Security Gate, Smoke Detector(s)
Senior Community YN
false
Sewer
Public Sewer
Showing Requirements
Supra Lock Box, Call Listing Agent
Status Change Timestamp
2026-03-13T12:51:47.000Z
Stories Total
8
Tax Annual Amount
8226
Tax Block
000
Tax Book Number
14-83
Tax Legal Description
SAND KEY CONDO-SOUTH BEACH 1 APT 506
Tax Lot
5060
Tax Year
2025
Total Acreage
Non-Applicable
Total Annual Fees
13776.00
Total Monthly Fees
1148.00
Township
29
Universal Property Id
US-12103-N-192915786380005060-S-506
Unparsed Address
1400 GULF BLVD #506
Utilities
Cable Connected, Electricity Connected, Public, Sewer Connected, Underground Utilities
Water Source
Public
Water View
Gulf/Ocean - Full, Intracoastal Waterway
Water View YN
1
Waterfront YN
false
Window Features
Window Treatments
Neighborhood Map
Popup

Property Photos
Listing Photo
Listing Photo
Listing Photo
Listing Photo
Listing Photo
Listing Photo
Listing Photo
Listing Photo
Listing Photo
Listing Photo
Listing Photo
Listing Photo
Listing Photo
Listing Photo
Listing Photo
Listing Photo
Listing Photo
Listing Photo
Listing Photo
Listing Photo
Listing Photo
Listing Photo
Listing Photo
Listing Photo
Listing Photo
Listing Photo
Listing Photo
Listing Photo
Listing Photo
Listing Photo
Listing Photo
Listing Photo
Listing Photo
Listing Photo
Listing Photo
Listing Photo
Listing Photo
Listing Photo
Listing Photo
Listing Photo
Listing Photo
Listing Photo
Listing Photo
Listing Photo
Listing Photo
Listing Photo
Listing Photo
Listing Photo
Listing Photo
Listing Photo
Listing Photo
Listing Photo
Listing Photo
Listing Photo
Listing Photo
Listing Photo
Listing Photo
Listing Photo
Listing Photo
Listing Photo
Listing Photo
Listing Photo
Listing Photo
Listing Photo
Listing Photo
Listing Photo
Listing Photo
Listing Photo
Listing Photo
Listing Photo
Listing Photo
Listing Photo
Listing Photo
Listing Photo
Listing Photo
Listing Photo
Listing Photo
Listing Photo
Listing Photo
Listing Photo
Listing Photo
Listing Photo
Listing Photo
Listing Photo
Listing Photo
Listing Photo
Listing Photo
Listing Photo
Listing Photo
Listing Photo
Listing Photo
Listing Photo
Listing Photo
Listing Photo
Listing Photo
Listing Photo
Listing Photo
Listing Photo
Listing Photo
Listing Photo
Listing Photo
Listing Photo
Listing Photo
Listing Photo

MLS #MFRTB8474059 Listing courtesy of Gulf To Bay Real Estate provided by Stellar MLS.

Similar Listings

$719,000
766 Bay Esplanade
Clearwater Beach
3BR/2BA
| Active
$719,000
1401 Gulf Boulevard
Clearwater Beach
3BR/2BA
| Active
$729,000
750 Bay Esplanade
Clearwater Beach
3BR/2BA
| Active
$749,900
415 Island Way
Clearwater Beach
3BR/2BA
| Active



All listing information is deemed reliable but not guaranteed and should be independently verified through personal inspection by appropriate professionals. Listings displayed on this website may be subject to prior sale or removal from sale; availability of any listing should always be independent verified. Listing information is provided for consumer personal, non-commercial use, solely to identify potential properties for potential purchase; all other use is strictly prohibited and may violate relevant federal and state law. The source of the listing data is as follows: Stellar MLS (updated 3/16/26 4:28 AM) |

Listing Search



Translate Tool

Featured Listings
North Port Real Estate
$805,000
3 BED
2 BATH
Discover the privacy and space you’ve been searching for with this beautiful pool home situated on just over 3 acres in ... Read More
Longboat Key Real Estate
$975,000
5 BED
3 BATH
Discover coastal tranquility and timeless island charm in this beautifully renovated five- bedroom, three and 1/2 bath r... Read More
Port Charlotte Real Estate
$1,099,000
4 BED
2 BATH
Welcome to your dream home, built by renowned local builder, Quality Homes of Port Charlotte, where superior craftsmansh... Read More
Seminole Real Estate
$888,000
4 BED
3 BATH
Fully renovated 4/3/2 pool home located in the highly desirable Whispering Pines neighborhood of Seminole. This spacious... Read More
Trinity Real Estate
$1,425,000
4 BED
4 BATH
Welcome to an Extraordinary Lifestyle — Floresta at Champions Club. Nestled behind the exclusive gates of Floresta withi... Read More
Ponte Vedra Real Estate
$1,100,000
4 BED
3 BATH
Set on a rare 100-ft lot in Twenty Mile, this well-appointed 4-bedroom pool home features thoughtful upgrades and effort... Read More
Punta Gorda Real Estate
$1,185,000
3 BED
2 BATH
**Exceptional Waterfront Home in PGI with Spectacular Canal Views!** This custom-built home has 3 bedrooms plus an offic... Read More
Winter Garden Real Estate
$910,000
5 BED
4 BATH
Welcome to Winter Grove in the charming city of Winter Garden. Located 1 mile from Winter Garden Village and 3 miles fro... Read More
St Petersburg Real Estate
$1,200,000
5 BED
2 BATH
Elevate your Florida lifestyle in this stunning waterfront home, nestled in the serene Broadwater Estates neighborhood. ... Read More
Orlando Real Estate
$925,000
5 BED
3 BATH
Located less than a mile from Medical City inside the beautiful neighborhood of Laureate Park/Lake Nona. This two story ... Read More
Contact Sandra Pardo

407-990-2746

Wendy Morris LLC

Licensed in the State of Florida
BK 3146762
16797 Broadwater Avenue
Winter Garden, Florida 34787

Your privacy is our utmost concern. We will never sell your personal information. Privacy Policy
©2026 sandrapardohomes.com - all rights reserved. | Site Map