407-990-2746
Menu

13917 Destin Beach Lane, Orlando, FL

NEXT
PREV
$720,000

($351/sqft)

List Status: Active
13917 Destin Beach Lane
Orlando, FL 32827


3 beds
2 baths
2054 living sqft
Top Features
  • View: Water
  • Subdivision: Isles Of Lake Nona
  • Built in  2021
  • Single Family Residence
Description
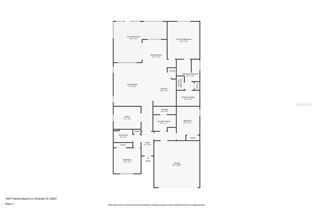
Welcome to this beautifully maintained Pulte Mistique model in the gated Isles of Lake Nona community, perfectly positioned on a homesite with wide water views and no rear neighbors. This is the only Mistique model with a charming front porch, adding to the home’s curb appeal and welcoming presence. Built in 2021, this thoughtfully designed single story home offers 3 bedrooms, 2 bathrooms, a private office, and over 2,050 square feet of open living space. As you enter the home, you are welcomed by a spacious foyer with high ceilings that create an open and inviting feel. Just off the entry is a private office enclosed with stylish sliding barn doors, providing the perfect space for working from home, studying, or a flexible bonus room. The main living area features a bright open floor plan where the kitchen, dining, and living room flow seamlessly together. The upgraded kitchen is the centerpiece of the home and features a large quartz island with seating for four, rich custom cabinetry with pull out shelves and Lazy Susan storage, stainless steel appliances, built in wall oven, cooktop with vent hood, and a spacious walk in pantry. Large windows with plantation shutters fill the space with natural light while the dining area sits beside sliding glass doors that lead to the lanai. The spacious primary suite offers a relaxing retreat with plantation shutters, abundant natural light, and views toward the backyard and lake. The ensuite bathroom features a dual sink vanity, a large walk in shower with tile surround, and generous space for everyday comfort. Two additional bedrooms are located on the opposite side of the home, creating a desirable split bedroom layout that provides privacy for family or guests. Step outside to a stunning screened lanai designed for true Florida outdoor living. The upgraded outdoor living space features a custom outdoor kitchen complete with built in grill, vent hood, sink, beverage refrigerator, cabinetry, and decorative tile backsplash.
Property Details
Property Features
Property Sub Type
Single Family Residence
View
Water
Parking
Driveway, Garage Door Opener
County
Orange
Subdivision
ISLES OF LAKE NONA
Additional Information
Additional Lease Restrictions
Verify with HOA.
Additional Parcels YN
false
Additional Rooms
Den/Library/Office, Storage Rooms
Alternate Key Folio Num
32-24-31-3890-01-170
Appliances
Built-In Oven, Dishwasher, Disposal, Dryer, Exhaust Fan, Microwave, Range, Range Hood, Refrigerator, Washer
Association Email
Eabastida@castlegroup.com
Association Fee
423.7
Association Fee Frequency
Monthly
Association Fee Includes
Pool, Internet
Association Fee Requirement
Required
Association URL
www.islesoflakenona.net
Association YN
true
Attached Garage YN
true
Available For Lease YN
1
Bathrooms Total Integer
2
Builder Model
Mistique
Builder Name
Pulte
Building Area Source
Public Records
Building Area Total
2961
Building Area Total Srch SqM
275.09
Building Area Units
Square Feet
CDDYN
1
Calculated List Price By Calculated SqFt
350.54
Carport YN
false
Community Features
Clubhouse, Fitness Center, Gated Community - No Guard, Pool, Sidewalks, Tennis Court(s)
Construction Materials
Block, Stucco
Cooling
Central Air
Country
US
Cumulative Days On Market
44
Current Price
720000.00
Direction Faces
West
Exterior Features
Lighting, Outdoor Grill, Outdoor Kitchen, Private Yard, Rain Gutters, Sidewalk, Sliding Doors
Fencing
Fenced
Fireplace YN
false
Flood Zone Code
X
Flood Zone Date
2018-06-20
Flood Zone Panel
12095C0675G
Flooring
Tile
Foundation Details
Slab
Furnished
Unfurnished
Garage Spaces
2
Garage YN
true
Green Indoor Air Quality
HVAC UV/Elec. Filtration
Heating
Central, Electric, Heat Pump
High School
Lake Nona High
Home Warranty YN
true
Homestead YN
1
Interior Features
Ceiling Fans(s), Eat-in Kitchen, Living Room/Dining Room Combo, Open Floorplan, Smart Home, Solid Surface Counters, Solid Wood Cabinets, Split Bedroom, Thermostat, Walk-In Closet(s), Window Treatments
Internet Address Display YN
true
Internet Automated Valuation Display YN
true
Internet Consumer Comment YN
true
Internet Entire Listing Display YN
true
Laundry Features
Laundry Room
Levels
One
List AOR
Orlando Regional
Living Area Meters
190.82
Living Area Source
Public Records
Living Area Units
Square Feet
Lot Features
City Limits, Landscaped, Level, Sidewalk, Paved
Lot Size Acres
0.14
Lot Size Square Feet
6000
Lot Size Square Meters
557
Middle Or Junior School
Luminary Middle
Minimum Lease
No Minimum
Modification Timestamp
2026-04-23T12:59:09.614Z
Monthly HOA Amount
423.70
New Construction YN
false
Occupant Type
Owner
Other Equipment
Irrigation Equipment, Private Yard
Other Structures
Outdoor Kitchen
Ownership
Fee Simple
Parcel Number
32-24-31-3890-01-170
Pet Restrictions
Verify with HOA.
Pets Allowed
Yes
Pool Private YN
false
Postal Code Plus 4
7336
Previous List Price
740000
Price Change Timestamp
2026-04-10T02:14:41.000Z
Public Survey Range
31
Public Survey Section
32
RATIO Current Price By Calculated SqFt
350.54
Realtor Info
As-Is, CDD Addendum required, Docs Available, Floor Plan Available
Road Surface Type
Paved
Roof
Shingle
Room Count
9
Security Features
Gated Community, Security Lights
Senior Community YN
false
Sewer
Public Sewer
Showing Requirements
24 Hour Notice, Call Listing Agent 2, See Remarks, ShowingTime
Status Change Timestamp
2026-03-10T13:39:11.000Z
Tax Annual Amount
8883.17
Tax Block
31
Tax Book Number
101/135
Tax Legal Description
ISLES OF LAKE NONA PHASE 1A 101/135 LOT117
Tax Lot
117
Tax Other Annual Assessment Amount
1767
Tax Year
2025
Total Acreage
0 to less than 1/4
Total Annual Fees
5084.40
Total Monthly Fees
423.70
Township
24
Universal Property Id
US-12095-N-322431389001170-R-N
Unparsed Address
13917 DESTIN BEACH LN
Utilities
Public
Vegetation
Mature Landscaping
Water Source
Public
Waterfront YN
false
Window Features
Blinds
Zoning
PD/AN
Neighborhood Map
Popup

Property Photos
Listing Photo
Listing Photo
Listing Photo
Listing Photo
Listing Photo
Listing Photo
Listing Photo
Listing Photo
Listing Photo
Listing Photo
Listing Photo
Listing Photo
Listing Photo
Listing Photo
Listing Photo
Listing Photo
Listing Photo
Listing Photo
Listing Photo
Listing Photo
Listing Photo
Listing Photo
Listing Photo
Listing Photo
Listing Photo
Listing Photo
Listing Photo
Listing Photo
Listing Photo
Listing Photo
Listing Photo
Listing Photo
Listing Photo
Listing Photo
Listing Photo
Listing Photo
Listing Photo
Listing Photo
Listing Photo
Listing Photo
Listing Photo
Listing Photo
Listing Photo
Listing Photo
Listing Photo
Listing Photo
Listing Photo
Listing Photo
Listing Photo
Listing Photo
Listing Photo
Listing Photo
Listing Photo
Listing Photo
Listing Photo
Listing Photo
Listing Photo
Listing Photo
Listing Photo
Listing Photo
Listing Photo
Listing Photo
Listing Photo
Listing Photo
Listing Photo
Listing Photo
Listing Photo
Listing Photo
Listing Photo
Listing Photo
Listing Photo
Listing Photo
Listing Photo
Listing Photo
Listing Photo
Listing Photo
Listing Photo
Listing Photo
Listing Photo
Listing Photo

MLS #MFRO6382034 Listing courtesy of Real Broker, Llc provided by Stellar MLS.

Similar Listings

$648,000
3235 Inverness Court
Orlando
3BR/2BA
| Pending
$649,000
5025 Shoreway Loop
Orlando
3BR/2BA
| Active
$649,000
4804 Cayview Avenue
Orlando
3BR/2BA
| Active
$649,000
9459 Merrifield St
Orlando
3BR/2BA
| Pending



All listing information is deemed reliable but not guaranteed and should be independently verified through personal inspection by appropriate professionals. Listings displayed on this website may be subject to prior sale or removal from sale; availability of any listing should always be independent verified. Listing information is provided for consumer personal, non-commercial use, solely to identify potential properties for potential purchase; all other use is strictly prohibited and may violate relevant federal and state law. The source of the listing data is as follows: Stellar MLS (updated 5/24/26 5:37 PM) |

Listing Search



Translate Tool

Featured Listings
Bradenton Real Estate
$925,000
4 BED
4 BATH
Recently purchased and thoughtfully improved by the current owners, this half-acre home reflects a significant investmen... Read More
Longboat Key Real Estate
$1,000,000
2 BED
2 BATH
One or more photo(s) has been virtually staged. Longboat Key's prestigious Promenade combines a beach resort lifestyle w... Read More
Longboat Key Real Estate
$849,000
3 BED
2 BATH
Under contract-accepting backup offers. Motivated Seller—Priced to Sell! Enjoy sweeping Sarasota Bay views from this ref... Read More
Land O Lakes Real Estate
$930,000
6 BED
4 BATH
Under contract-accepting backup offers. Mercedes Homes San Remo model with custom courtyard, 6 beds, 4 full baths, 3-car... Read More
Sarasota Real Estate
$865,000
3 BED
3 BATH
Step into a home that redefines privacy, design, and sophistication. Priced at $870,000, this fully renovated 3-bedroom,... Read More
Jacksonville Beach Real Estate
$898,500
4 BED
3 BATH
This charming Florida-style home is located just a mile and a half from the beach and offers exceptional value at under ... Read More
Lakewood Ranch Real Estate
$999,000
4 BED
5 BATH
Under contract-accepting backup offers. Prepare for a treat! This home is truly exceptional! Beautifully upgraded 4-5 BR... Read More
Windermere Real Estate
$1,349,000
5 BED
4 BATH
Spacious and beautifully maintained 5-bedroom, 4-bath pool home situated on a 1/2-acre fenced treed lot in desirable Est... Read More
Lakewood Ranch Real Estate
$1,499,990
4 BED
3 BATH
Experience luxury golf course living in this beautifully appointed, MOVE-IN-READY estate home located within the gated r... Read More
The Villages Real Estate
$1,295,000
4 BED
3 BATH
OUTDOOR LIVING AT IT’S BEST! Welcome to your dream home in the vibrant Village of Marsh Bend! This EXQUISITE and PRIVATE... Read More
Contact Sandra Pardo

407-990-2746

Wendy Morris LLC

Licensed in the State of Florida
BK 3146762
16797 Broadwater Avenue
Winter Garden, Florida 34787

Your privacy is our utmost concern. We will never sell your personal information. Privacy Policy
©2026 sandrapardohomes.com - all rights reserved. | Site Map