407-990-2746
Menu

13737 Garden Hills Drive, Spring Hill, FL

NEXT
PREV
$415,000

($213/sqft)

List Status: Active
13737 Garden Hills Drive
Spring Hill, FL 34609


4 beds
3 baths
1945 living sqft
Top Features
  • Subdivision: Villages At Avalon 3b-3
  • Built in  2020
  • Single Family Residence
Description
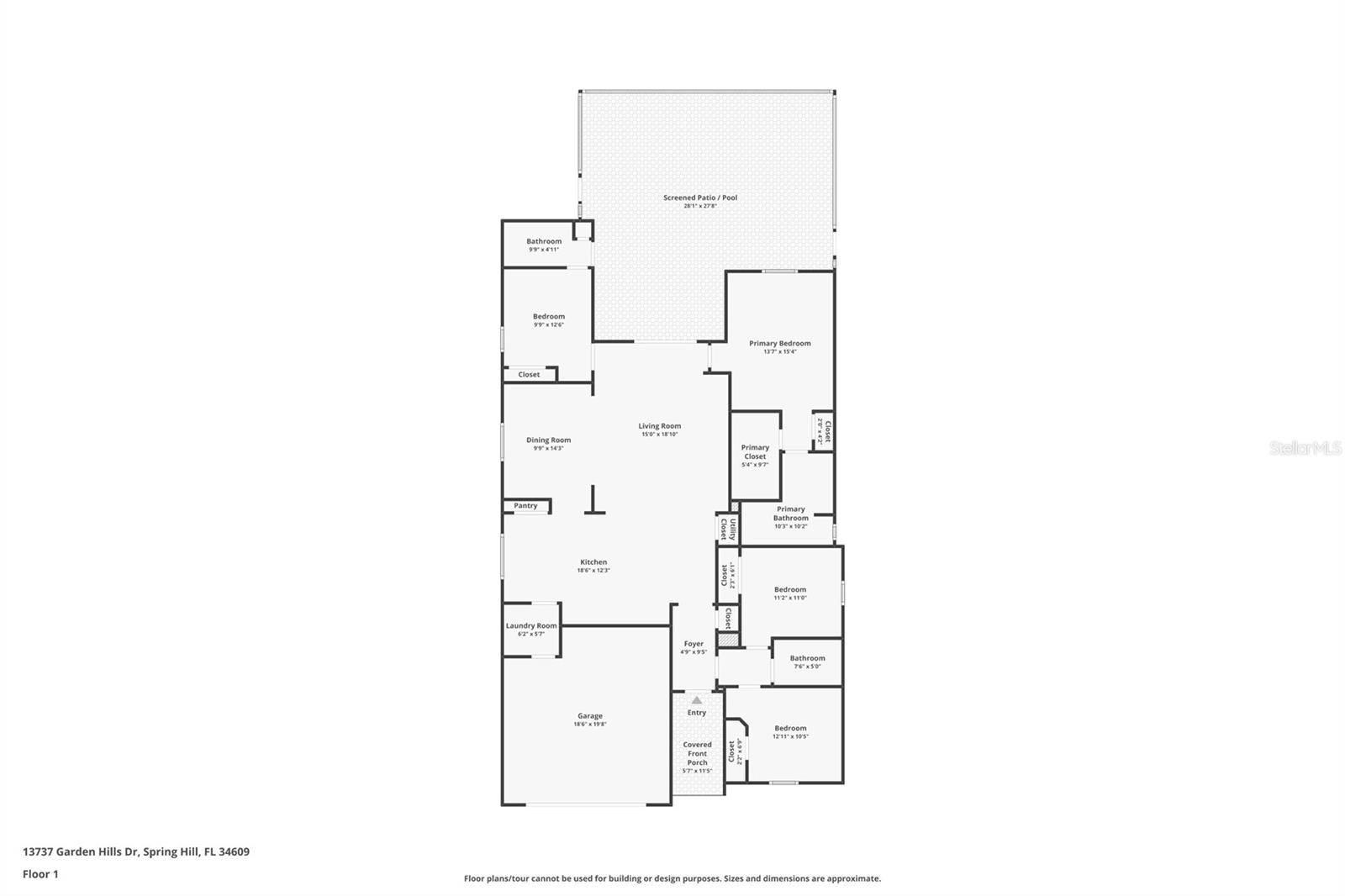
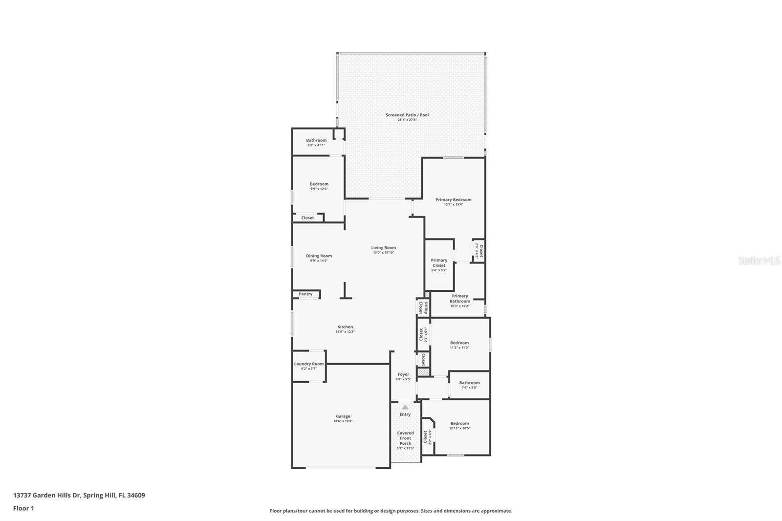
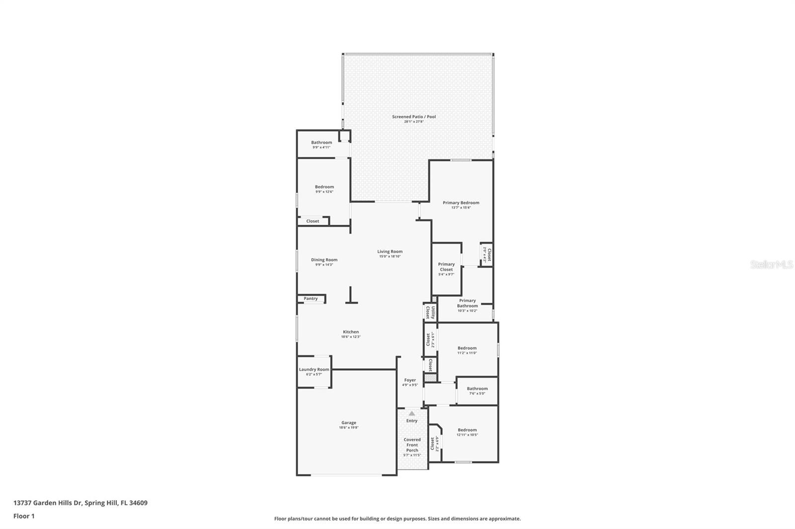
Imagine coming home to your own private pool, plenty of space for everyone, and a layout that just makes life easier. This beautifully maintained 2019-built home in Spring Hill offers exactly that—with 4 bedrooms, 3 full bathrooms, and a 2-car garage in a quiet neighborhood that still keeps you close to everything. One of the first things you'll notice about this home is how thoughtfully designed the floor plan is. Right at the front of the home are two guest bedrooms and a full bathroom, creating a comfortable space for family or visitors that feels separate from the rest of the house. A third guest bedroom includes its own private bathroom with direct access to the pool area, making it perfect as a pool bath, guest suite, or even a home office if you work remotely. As you move into the heart of the home, the space opens up into a bright, open-concept living area where the kitchen, dining, and living room flow together effortlessly. Tile flooring throughout the main living areas keeps the home cool and easy to maintain, while the bedrooms offer soft carpeting for comfort. The kitchen is built for both everyday living and entertaining, featuring granite countertops, abundant wood cabinetry, wrap-around counter space, a pantry, and a cozy eat-in dining area. There’s also a large formal dining space that’s perfect for holiday dinners, celebrations, or simply gathering with friends and family. Tucked privately toward the back of the home, the primary suite offers a peaceful retreat with dual closets—including a spacious walk-in closet—and an en-suite bathroom with an oversized vanity and walk-in shower. Step outside and you’ll discover one of the home’s best features: your own private in-ground pool (2020) surrounded by a paved patio and a fully fenced backyard with a white vinyl fence. Not many homes in this community have private pools, making this a special find. Whether you're enjoying quiet mornings with coffee or hosting weekend pool days with friends, this backy
Property Details
Additional Information
Additional Lease Restrictions
BUYER TO CONFIRM DIRECTLY WITH ASSOCIATION.
Additional Parcels YN
false
Alternate Key Folio Num
R3422318375900800140
Appliances
Dishwasher, Disposal, Electric Water Heater, Microwave, Range, Refrigerator
Approval Process
CONFIRM WITH HOA
Association Amenities
Clubhouse
Association Email
james.amrhein@inframark.com
Association Fee
220
Association Fee Frequency
Quarterly
Association Fee Requirement
Required
Association YN
true
Attached Garage YN
true
Available For Lease YN
1
Bathrooms Total Integer
3
Building Area Source
Public Records
Building Area Total
2600
Building Area Total Srch SqM
241.55
Building Area Units
Square Feet
Calculated List Price By Calculated SqFt
213.37
Carport YN
false
Community Features
Clubhouse, Pool
Construction Materials
Block, Stucco
Cooling
Central Air
Country
US
Cumulative Days On Market
81
Current Price
415000.00
Direction Faces
South
Elementary School
Suncoast Elementary
Exterior Features
Sidewalk, Sliding Doors
Fencing
Vinyl
Fireplace YN
false
Flood Zone Code
X
Flooring
Carpet, Tile
Foundation Details
Slab
Furnished
Unfurnished
Garage Dimensions
20x16
Garage Spaces
2
Garage YN
true
Heating
Central
High School
Natures Coast Technical High School
Homestead YN
1
Interior Features
Ceiling Fans(s), Living Room/Dining Room Combo, Open Floorplan, Split Bedroom, Stone Counters
Internet Address Display YN
true
Internet Automated Valuation Display YN
false
Internet Consumer Comment YN
false
Internet Entire Listing Display YN
true
Laundry Features
Inside
Levels
One
List AOR
Suncoast Tampa
Living Area Meters
180.70
Living Area Source
Public Records
Living Area Units
Square Feet
Lot Size Acres
0.14
Lot Size Square Feet
6250
Lot Size Square Meters
581
Middle Or Junior School
Powell Middle
Minimum Lease
No Minimum
Modification Timestamp
2026-03-09T10:22:09.054Z
Monthly HOA Amount
73.33
New Construction YN
false
Occupant Type
Owner
Ownership
Fee Simple
Parcel Number
R34-223-18-3759-0080-0140
Pet Restrictions
BUYER TO CONFIRM DIRECTLY WITH ASSOCIATION.
Pets Allowed
Yes
Pool Private YN
true
Postal Code Plus 4
4629
Previous List Price
425000
Price Change Timestamp
2026-02-18T19:09:54.000Z
Public Survey Range
18E
Public Survey Section
34
RATIO Current Price By Calculated SqFt
213.37
Realtor Info
As-Is, Docs Available
Road Surface Type
Asphalt
Roof
Shingle
Room Count
7
Senior Community YN
false
Sewer
Public Sewer
Showing Requirements
Sentri Lock Box, 24 Hour Notice, Call Listing Agent 2, Call Before Showing, ShowingTime
Spa YN
false
Status Change Timestamp
2025-12-18T14:39:20.000Z
Stories Total
1
Tax Annual Amount
4488.78
Tax Block
8
Tax Book Number
3759
Tax Legal Description
VILLAGES AT AVALON PHASE 3B-3 BLK 8 LOT 14
Tax Lot
14
Tax Year
2025
Total Acreage
0 to less than 1/4
Total Annual Fees
880.00
Total Monthly Fees
73.33
Township
23S
Universal Property Id
US-12053-N-3422318375900800140-R-N
Unparsed Address
13737 GARDEN HILLS DR
Utilities
Cable Available, Electricity Connected, Water Connected
Water Source
Public
Waterfront YN
false
Zoning
01
Neighborhood Map
Popup

Property Photos
Listing Photo
Listing Photo
Listing Photo
Listing Photo
Listing Photo
Listing Photo
Listing Photo
Listing Photo
Listing Photo
Listing Photo
Listing Photo
Listing Photo
Listing Photo
Listing Photo
Listing Photo
Listing Photo
Listing Photo
Listing Photo
Listing Photo
Listing Photo
Listing Photo
Listing Photo
Listing Photo
Listing Photo
Listing Photo
Listing Photo
Listing Photo
Listing Photo
Listing Photo
Listing Photo
Listing Photo
Listing Photo
Listing Photo
Listing Photo
Listing Photo
Listing Photo
Listing Photo
Listing Photo
Listing Photo
Listing Photo
Listing Photo
Listing Photo
Listing Photo
Listing Photo
Listing Photo
Listing Photo
Listing Photo
Listing Photo
Listing Photo
Listing Photo
Listing Photo
Listing Photo
Listing Photo
Listing Photo
Listing Photo
Listing Photo
Listing Photo
Listing Photo
Listing Photo
Listing Photo
Listing Photo
Listing Photo
Listing Photo
Listing Photo
Listing Photo
Listing Photo
Listing Photo
Listing Photo
Listing Photo
Listing Photo
Listing Photo
Listing Photo
Listing Photo
Listing Photo
Listing Photo
Listing Photo
Listing Photo
Listing Photo
Listing Photo
Listing Photo
Listing Photo
Listing Photo
Listing Photo
Listing Photo
Listing Photo
Listing Photo
Listing Photo
Listing Photo
Listing Photo
Listing Photo
Listing Photo
Listing Photo
Listing Photo
Listing Photo
Listing Photo
Listing Photo
Listing Photo
Listing Photo
Listing Photo
Listing Photo
Listing Photo
Listing Photo
Listing Photo
Listing Photo
Listing Photo
Listing Photo
Listing Photo
Listing Photo
Listing Photo
Listing Photo
Listing Photo
Listing Photo
Listing Photo
Listing Photo
Listing Photo
Listing Photo
Listing Photo
Listing Photo
Listing Photo
Listing Photo
Listing Photo
Listing Photo
Listing Photo
Listing Photo
Listing Photo
Listing Photo
Listing Photo
Listing Photo
Listing Photo
Listing Photo
Listing Photo
Listing Photo
Listing Photo
Listing Photo

MLS #MFRTB8457186 Listing courtesy of Re/max Collective provided by Stellar MLS.

Similar Listings

$375,000
2013 Finland Drive
Spring Hill
4BR/3BA
| Active
$375,000
12450 Fish Cove Drive
Spring Hill
4BR/3BA
| Active
$376,750
14153 Segovia Street
Spring Hill
4BR/3BA
| Active
$377,400
4194 Copper Hill Drive
Spring Hill
4BR/3BA
| Active



All listing information is deemed reliable but not guaranteed and should be independently verified through personal inspection by appropriate professionals. Listings displayed on this website may be subject to prior sale or removal from sale; availability of any listing should always be independent verified. Listing information is provided for consumer personal, non-commercial use, solely to identify potential properties for potential purchase; all other use is strictly prohibited and may violate relevant federal and state law. The source of the listing data is as follows: Stellar MLS (updated 3/19/26 1:14 PM) |

Listing Search



Translate Tool

Featured Listings
Sarasota Real Estate
$859,900
4 BED
2 BATH
Welcome to your dream home in Lakehouse Cove at Waterside, where coastal design, thoughtful upgrades, and well-appointed... Read More
St Petersburg Real Estate
$890,000
4 BED
2 BATH
Step into elevated Florida living in this stunning, thoughtfully remodeled 4-bedroom Broadwater pool home in St. Petersb... Read More
Orlando Real Estate
$949,999
4 BED
4 BATH
Experience timeless elegance in this Mediterranean-inspired residence, in the gated golf course community of Palma Vista... Read More
Clearwater Real Estate
$870,000
3 BED
2 BATH
Tucked away on nearly half an acre of private land with a peaceful creek running alongside, this beautifully updated Cle... Read More
New Port Richey Real Estate
$889,900
4 BED
3 BATH
AN EXCEPTIONAL WATERFRONT ESTATE — THE ULTIMATE COASTAL LUXURY EXPERIENCE A rare and remarkable opportunity to own over ... Read More
Flagler Beach Real Estate
$964,900
4 BED
3 BATH
Welcome to your private waterfront retreat in beautiful Flagler Beach, where riverfront living meets comfort, space, and... Read More
Holmes Beach Real Estate
$1,270,000
2 BED
2 BATH
Steps to the Beach: A Deluxe Retreat with Massive Rental Power! Why choose between a vacation home and a smart investmen... Read More
Belleair Real Estate
$1,100,000
3 BED
2 BATH
Welcome to this stunning, fully renovated, move-in ready home in the heart of beautiful Belleair, where timeless charm m... Read More
Orlando Real Estate
$820,000
4 BED
3 BATH
Your search is over! This beautiful home offers spectacular views and the charm of country-style living while being just... Read More
Vero Beach Real Estate
$1,025,000
3 BED
2 BATH
Discover contemporary living on nearly 5 ACRES in the highly desirable Indian River Farms area. This 2022 BUILT 2,147 sq... Read More
Contact Sandra Pardo

407-990-2746

Wendy Morris LLC

Licensed in the State of Florida
BK 3146762
16797 Broadwater Avenue
Winter Garden, Florida 34787

Your privacy is our utmost concern. We will never sell your personal information. Privacy Policy
©2026 sandrapardohomes.com - all rights reserved. | Site Map