407-990-2746
Menu

1369 Gillespie N Drive, Palm Harbor, FL

NEXT
PREV
$589,900

($346/sqft)

List Status: Pending
1369 Gillespie N Drive
Palm Harbor, FL 34684


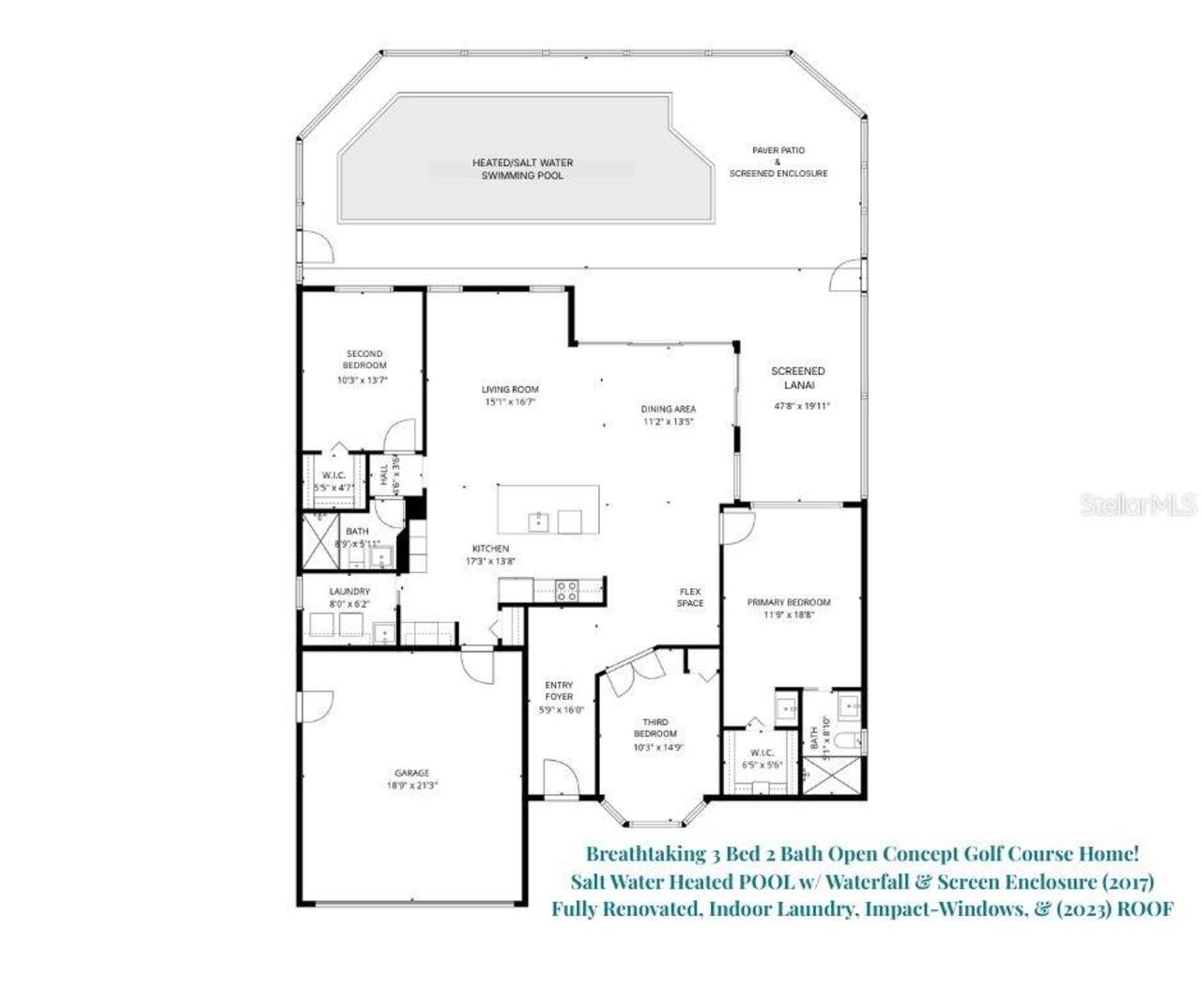
3 beds
2 baths
1706 living sqft
Top Features
  • View: Golf Course, Pool
  • Subdivision: Highland Lakes
  • Built in  1984
  • Single Family Residence
Description
Under contract-accepting backup offers. Experience elevated Florida living in this breathtaking, fully RENOVATED luxury 3-bedroom, 2-bath HEATED POOL and GOLF COURSE home, perfectly situated on the 9th fairway of the Red Course in Palm Harbor’s premier 55+ community, Highland Lakes! This exquisite split-plan residence showcases a seamless open-concept design remodel in 2024, where refined finishes and thoughtful upgrades create an atmosphere of sophistication and comfort. From the moment you enter, you’re welcomed by NEW luxury vinyl plank flooring that flows seamlessly throughout the main living, smooth ceilings with not a speck of popcorn, designer recessed lighting, and an abundance of natural light streaming through NEW hurricane-impact windows and sliders. TWO expansive glass sliders open to a screened paver patio and HEATED AND SALTWATER POOL, offering a true indoor-outdoor Florida living sanctuary with tranquil golf course views and the soothing ambiance of a cascading WATERFALL — perfect for both relaxation and upscale entertaining. At the heart of the home, the stunning 2024 chef’s kitchen renovation is a showpiece, featuring an oversized island, gleaming quartz countertops, custom solid-wood cabinetry adorned with gold hardware and pull-out drawers, beautiful glass tile backsplash, sleek stainless appliances, and a sophisticated dry bar with open shelving and a wine fridge! The primary suite serves as a private oasis, complete with serene pool and fairway views, dual vanities, a spacious custom walk-in closet, and a beautifully appointed en-suite bath with granite countertops and a glass-enclosed walk-in shower with designer tilework. Additional enhancements include an INDOOR laundry room with utility sink and extra cabinetry, plantation shutters, freshly painted interior AND exterior, NEW roof (2023), NEW hot water heater (2022), UPDATED electrical panel (2019), and NEWER pool with a paver patio, and screen enclosure (2017)! Modern smart home features add
Property Details
Additional Information
Additional Lease Restrictions
55+ community. Please confirm lease restrictions with Highland Lakes HOA.
Additional Parcels YN
false
Additional Rooms
Inside Utility
Alternate Key Folio Num
052816389170000620
Appliances
Dishwasher, Disposal, Dryer, Electric Water Heater, Microwave, Range, Refrigerator, Washer, Water Softener, Wine Refrigerator
Approval Process
Application & fee.
Architectural Style
Ranch, Traditional
Association Amenities
Clubhouse, Fence Restrictions, Golf Course, Pickleball Court(s), Pool, Recreation Facilities, Shuffleboard Court, Spa/Hot Tub, Tennis Court(s)
Association Approval Required YN
1
Association Fee
164
Association Fee Frequency
Monthly
Association Fee Includes
Common Area Taxes, Pool, Escrow Reserves Fund, Recreational Facilities
Association Fee Requirement
Required
Association YN
true
Attached Garage YN
true
Available For Lease YN
1
Bathrooms Total Integer
2
Building Area Source
Public Records
Building Area Total
2651
Building Area Total Srch SqM
246.29
Building Area Units
Square Feet
Calculated List Price By Calculated SqFt
345.78
Carport YN
false
Community Features
Association Recreation - Owned, Clubhouse, Deed Restrictions, Golf Carts OK, Golf, Pool, Sidewalks, Tennis Court(s), Street Lights
Construction Materials
Block, Stucco
Contract Status
No Contingency
Cooling
Central Air
Country
US
Cumulative Days On Market
3
Current Price
589900.00
Direction Faces
Northwest
Disaster Mitigation
Above Flood Plain, Hurricane Shutters/Windows
Expected Closing Date
2026-04-14T00:00:00.000
Exterior Features
Hurricane Shutters, Lighting, Private Mailbox, Rain Gutters, Sidewalk, Sliding Doors
Fireplace YN
false
Flood Zone Code
X
Flood Zone Date
2003-09-03
Flood Zone Panel
12103C0078G
Flooring
Carpet, Luxury Vinyl, Tile
Foundation Details
Slab
Furnished
Negotiable
Garage Dimensions
20x22
Garage Spaces
2
Garage YN
true
Heating
Central
Interior Features
Ceiling Fans(s), Eat-in Kitchen, Living Room/Dining Room Combo, Open Floorplan, Primary Bedroom Main Floor, Smart Home, Solid Wood Cabinets, Split Bedroom, Stone Counters, Thermostat, Walk-In Closet(s), Wet Bar, Window Treatments
Internet Address Display YN
true
Internet Automated Valuation Display YN
true
Internet Consumer Comment YN
false
Internet Entire Listing Display YN
true
Laundry Features
Inside, Laundry Room
Lease Restrictions YN
1
Levels
One
List AOR
Suncoast Tampa
Living Area Meters
158.49
Living Area Source
Public Records
Living Area Units
Square Feet
Lot Features
Cleared, Landscaped, Level, On Golf Course, Sidewalk
Lot Size Acres
0.16
Lot Size Dimensions
65x110
Lot Size Square Feet
7148
Lot Size Square Meters
664
Minimum Lease
3 Months
Modification Timestamp
2026-03-24T13:12:10.016Z
Monthly HOA Amount
164.00
New Construction YN
false
Occupant Type
Owner
Other Equipment
Irrigation Equipment
Ownership
Fee Simple
Parcel Number
05-28-16-38917-000-0620
Patio And Porch Features
Rear Porch, Screened
Pet Restrictions
Per Pinellas County ordinance.
Pets Allowed
Yes
Pool Private YN
true
Postal Code Plus 4
3050
Public Survey Range
16
Public Survey Section
05
Purchase Contract Date
2026-03-23
RATIO Current Price By Calculated SqFt
345.78
Realtor Info
As-Is
Road Responsibility
Public Maintained Road
Road Surface Type
Paved
Roof
Shingle
Room Count
10
Senior Community YN
true
Sewer
Public Sewer
Showing Requirements
Appointment Only, Lock Box Electronic, See Remarks, ShowingTime
Status Change Timestamp
2026-03-24T13:11:13.000Z
Stories Total
1
Tax Annual Amount
8550.87
Tax Block
00
Tax Book Number
88-58
Tax Legal Description
HIGHLAND LAKES UNIT FIFTEEN PHASE 3 LOT 62
Tax Lot
62
Tax Year
2025
Total Acreage
0 to less than 1/4
Total Annual Fees
1968.00
Total Monthly Fees
164.00
Township
28
Universal Property Id
US-12103-N-052816389170000620-R-N
Unparsed Address
1369 GILLESPIE DR N
Utilities
Cable Available, Electricity Connected, Public, Sewer Connected, Sprinkler Well, Underground Utilities, Water Connected
Vegetation
Trees/Landscaped
Water Access
Lake
Water Access YN
1
Water Body Name
LAKE TARPON
Water Extras
Boat Ramp - Private, Fishing Pier, Sailboat Water, Skiing Allowed
Water Extras YN
1
Water Source
Public
Waterfront YN
false
Window Features
Shutters, Storm Window(s)
Zoning
RPD-7.5
Neighborhood Map
Popup

Property Photos
Listing Photo
Listing Photo
Listing Photo
Listing Photo
Listing Photo
Listing Photo
Listing Photo
Listing Photo
Listing Photo
Listing Photo
Listing Photo
Listing Photo
Listing Photo
Listing Photo
Listing Photo
Listing Photo
Listing Photo
Listing Photo
Listing Photo
Listing Photo
Listing Photo
Listing Photo
Listing Photo
Listing Photo
Listing Photo
Listing Photo
Listing Photo
Listing Photo
Listing Photo
Listing Photo
Listing Photo
Listing Photo
Listing Photo
Listing Photo
Listing Photo
Listing Photo
Listing Photo
Listing Photo
Listing Photo
Listing Photo
Listing Photo
Listing Photo
Listing Photo
Listing Photo
Listing Photo
Listing Photo
Listing Photo
Listing Photo
Listing Photo
Listing Photo
Listing Photo
Listing Photo
Listing Photo
Listing Photo
Listing Photo
Listing Photo
Listing Photo
Listing Photo
Listing Photo
Listing Photo
Listing Photo
Listing Photo
Listing Photo
Listing Photo
Listing Photo
Listing Photo
Listing Photo
Listing Photo
Listing Photo
Listing Photo
Listing Photo
Listing Photo
Listing Photo
Listing Photo
Listing Photo
Listing Photo
Listing Photo
Listing Photo
Listing Photo
Listing Photo
Listing Photo
Listing Photo
Listing Photo
Listing Photo
Listing Photo
Listing Photo
Listing Photo
Listing Photo
Listing Photo
Listing Photo
Listing Photo
Listing Photo
Listing Photo
Listing Photo
Listing Photo
Listing Photo
Listing Photo
Listing Photo
Listing Photo
Listing Photo
Listing Photo
Listing Photo
Listing Photo
Listing Photo
Listing Photo
Listing Photo
Listing Photo
Listing Photo
Listing Photo
Listing Photo
Listing Photo
Listing Photo
Listing Photo
Listing Photo
Listing Photo
Listing Photo
Listing Photo
Listing Photo
Listing Photo
Listing Photo
Listing Photo
Listing Photo
Listing Photo
Listing Photo
Listing Photo
Listing Photo
Listing Photo
Listing Photo
Listing Photo
Listing Photo
Listing Photo
Listing Photo

MLS #MFRTB8487483 Listing courtesy of Coldwell Banker Realty provided by Stellar MLS.

Similar Listings

$534,900
4932 Ridgemoor Circle
Palm Harbor
3BR/2BA
| Pending
$535,000
2952 Shannon Circle
Palm Harbor
3BR/2BA
| Active
$535,000
5590 Greyston Street
Palm Harbor
3BR/2BA
| Active
$539,000
186 Sunward Avenue
Palm Harbor
3BR/2BA
| Active



All listing information is deemed reliable but not guaranteed and should be independently verified through personal inspection by appropriate professionals. Listings displayed on this website may be subject to prior sale or removal from sale; availability of any listing should always be independent verified. Listing information is provided for consumer personal, non-commercial use, solely to identify potential properties for potential purchase; all other use is strictly prohibited and may violate relevant federal and state law. The source of the listing data is as follows: Stellar MLS (updated 4/10/26 1:05 AM) |

Listing Search



Translate Tool

Featured Listings
Bradenton Real Estate
$800,000
5 BED
4 BATH
An exceptional residence that truly redefines elegance, comfort, and Florida living. Located in the sought-after gated c... Read More
Tampa Real Estate
$1,050,000
4 BED
2 BATH
Welcome to one of South Tampa’s most iconic streets, where location and lifestyle come together seamlessly. Just moments... Read More
Bradenton Real Estate
$814,900
3 BED
3 BATH
Enjoy true Florida waterfront living in this well-maintained 3-bedroom, 3-bath Gulf-access pool home. With direct access... Read More
Trinity Real Estate
$1,300,000
5 BED
4 BATH
Experience refined luxury in this beautifully updated dream home, ideally situated in one of the most sought-after neigh... Read More
Clearwater Real Estate
$1,100,000
5 BED
3 BATH
Stunning Executive Home in Highly Sought-After Countrypark subdivision. Nestled on a quiet cul-de-sac in one of Clearwat... Read More
Largo Real Estate
$800,000
3 BED
3 BATH
This meticulously maintained home boasts 1,738 square feet of refined space, set on just over a quarter of an acre lot h... Read More
Ruskin Real Estate
$1,289,000
4 BED
3 BATH
WATERFRONT LUXURY IN SOUTHSHORE YACHT CLUB | TRUE BOATER’S PARADISE THIS is where elevated coastal living meets effortle... Read More
Punta Gorda Real Estate
$850,000
4 BED
2 BATH
Under contract-accepting backup offers. Panoramic WIDE BASIN CANAL VIEWS & Turnkey FURNISHED or not! 3 bedroom + den, 2-... Read More
Edgewater Real Estate
$869,000
4 BED
3 BATH
Location, location, location! Beautifully expanded in 2020, this spacious 4-bedroom, 3.5-bath home blends modern comfort... Read More
Kissimmee Real Estate
$905,000
12 BED
11 BATH
Exquisite 12-Bedroom Luxury Vacation Home in Prime Kissimmee Location! Welcome to professionally staged fully furnished ... Read More
Contact Sandra Pardo

407-990-2746

Wendy Morris LLC

Licensed in the State of Florida
BK 3146762
16797 Broadwater Avenue
Winter Garden, Florida 34787

Your privacy is our utmost concern. We will never sell your personal information. Privacy Policy
©2026 sandrapardohomes.com - all rights reserved. | Site Map