407-990-2746
Menu

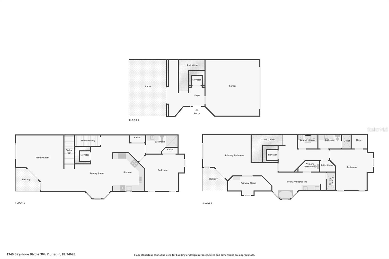
1340 Bayshore Boulevard Unit: Unit: 304, Dunedin, FL

NEXT
PREV
$1,175,000

($434/sqft)

List Status: Active
1340 Bayshore Boulevard
Dunedin, FL 34698


3 beds
3 baths
2706 living sqft
Top Features
  • Subdivision: San Ruffino Ii Condo
  • Built in  2023
  • Townhouse
Description
**PRICE IMPROVEMENT, BRING OFFERS** Experience the pinnacle of Florida living in this stunning, 2023-BUILT townhouse—offered for the FIRST TIME ON THE MARKET. Located within the exclusive gated enclave of San Ruffino IN THE HEART OF CHARMING DUNEDIN, this residence offers a rare combination of modern luxury and absolute resilience, having remained completely untouched by the 2024 hurricanes and NO FLOOD INSURANCE required. From the moment you arrive, the attention to detail is evident. A private ELEVATOR effortlessly connects all three levels, beginning with a spacious 2-CAR GARAGE and a welcoming ground-floor deck. The interior is a masterclass in design, featuring a warm gray designer palette, luxury vinyl flooring throughout, and expansive HURRICANE-RATED WINDOWS dressed in custom Hunter Douglas blinds and linen drapery. The heart of the home is a gourmet showpiece. The kitchen boasts high-end Fulgor Milano induction and convection appliances, luminous quartz countertops, and a shimmery shell-tile backsplash that captures the coastal light. Retreat to the top-floor Primary Suite, a true sanctuary featuring a massive walk-in closet and a spa-like bath with a modern soaking tub and floor-to-ceiling Carrera tile. Whether you are sipping coffee on one of your three private decks with water views or relaxing by the community POOL overlooking St. Joseph Sound, you are surrounded by the best of Florida’s wildlife—from dolphins to ospreys. Ideally situated just minutes from downtown Dunedin’s vibrant shops, restaurants entertainment and waterfront. And a short drive to Honeymoon Beach Park and Ferry to Caladesi Island, as well as half an hour from Tampa international. FLOOD INSURANCE NOT REQUIRED except lender may mandate a minor policy.
Property Details
Additional Information
Additional Lease Restrictions
Buyer/Buyer's agent is responsible for verifying lease restrictions
Additional Parcels YN
false
Alternate Key Folio Num
272815786650033040
Appliances
Dishwasher, Dryer, Microwave, Range, Refrigerator, Washer
Approval Process
Buyer/Buyer's agent is responsible for verifying approval process
Association Amenities
Pool
Association Email
ssheets@creative-mgmt.com
Association Fee Includes
Pool, Escrow Reserves Fund, Insurance, Maintenance Grounds, Private Road, Sewer, Trash, Water
Association YN
false
Attached Garage YN
true
Available For Lease YN
1
Bathrooms Total Integer
3
Building Area Source
Owner
Building Area Total
3871
Building Area Total Srch SqM
359.63
Building Area Units
Square Feet
Calculated List Price By Calculated SqFt
434.22
Carport YN
false
Community Features
Buyer Approval Required, Deed Restrictions, Gated Community - Guard, Golf Carts OK, Pool
Condo Fees
1371
Condo Fees Term
Monthly
Construction Materials
Block, Stucco
Cooling
Central Air
Country
US
Cumulative Days On Market
115
Current Price
1175000.00
Direction Faces
West
Elementary School
San Jose Elementary-PN
Exterior Features
Balcony, Sliding Doors
Fireplace YN
false
Flood Zone Code
AE
Flooring
Tile, Wood
Foundation Details
Slab
Garage Spaces
2
Garage YN
true
Heating
Central, Electric
High School
Dunedin High-PN
Homestead YN
1
Interior Features
Ceiling Fans(s), Elevator, Solid Surface Counters, Walk-In Closet(s)
Internet Address Display YN
true
Internet Automated Valuation Display YN
true
Internet Consumer Comment YN
true
Internet Entire Listing Display YN
true
Laundry Features
Inside
Lease Restrictions YN
1
Levels
Three Or More
List AOR
Suncoast Tampa
Living Area Meters
251.40
Living Area Source
Public Records
Living Area Units
Square Feet
Middle Or Junior School
Palm Harbor Middle-PN
Minimum Lease
3 Months
Modification Timestamp
2026-02-08T20:24:08.983Z
Monthly Condo Fee Amount
1371
New Construction YN
false
Number Of Pets
2
Occupant Type
Owner
Ownership
Condominium
Parcel Number
27-28-15-78665-003-3040
Pet Restrictions
Buyer/Buyer's agent is responsible for verifying pet resctictions
Pets Allowed
Yes
Pool Private YN
false
Postal Code Plus 4
4296
Previous List Price
1250000
Price Change Timestamp
2026-01-02T13:18:02.000Z
Property Description
End Unit
Public Survey Range
15
Public Survey Section
27
RATIO Current Price By Calculated SqFt
434.22
Road Surface Type
Asphalt
Roof
Tile
Room Count
3
Senior Community YN
false
Sewer
Public Sewer
Showing Requirements
ShowingTime
Status Change Timestamp
2025-10-16T13:03:06.000Z
Stories Total
3
Tax Annual Amount
15179.74
Tax Block
003
Tax Book Number
166-78
Tax Legal Description
SAN RUFFINO II CONDO BLDG 3, UNIT 304 (AKA UNIT 11-D)
Tax Lot
3040
Tax Year
2024
Total Acreage
Non-Applicable
Total Annual Fees
16452.00
Total Monthly Fees
1371.00
Township
28
Universal Property Id
US-12103-N-272815786650033040-S-304
Unparsed Address
1340 BAYSHORE BLVD #304
Utilities
Electricity Connected, Public, Sewer Connected, Water Connected
Water Source
Public
Water View
Intracoastal Waterway
Water View YN
1
Waterfront YN
false
Neighborhood Map
Popup

Property Photos
Listing Photo
Listing Photo
Listing Photo
Listing Photo
Listing Photo
Listing Photo
Listing Photo
Listing Photo
Listing Photo
Listing Photo
Listing Photo
Listing Photo
Listing Photo
Listing Photo
Listing Photo
Listing Photo
Listing Photo
Listing Photo
Listing Photo
Listing Photo
Listing Photo
Listing Photo
Listing Photo
Listing Photo
Listing Photo
Listing Photo
Listing Photo
Listing Photo
Listing Photo
Listing Photo
Listing Photo
Listing Photo
Listing Photo
Listing Photo
Listing Photo
Listing Photo
Listing Photo
Listing Photo
Listing Photo
Listing Photo
Listing Photo
Listing Photo
Listing Photo
Listing Photo
Listing Photo
Listing Photo
Listing Photo
Listing Photo
Listing Photo
Listing Photo
Listing Photo
Listing Photo
Listing Photo
Listing Photo
Listing Photo
Listing Photo
Listing Photo
Listing Photo
Listing Photo
Listing Photo
Listing Photo
Listing Photo
Listing Photo
Listing Photo
Listing Photo
Listing Photo
Listing Photo
Listing Photo
Listing Photo
Listing Photo
Listing Photo
Listing Photo
Listing Photo
Listing Photo
Listing Photo
Listing Photo
Listing Photo
Listing Photo
Listing Photo
Listing Photo
Listing Photo
Listing Photo
Listing Photo
Listing Photo
Listing Photo
Listing Photo
Listing Photo
Listing Photo
Listing Photo
Listing Photo
Listing Photo
Listing Photo
Listing Photo
Listing Photo

MLS #MFRTB8437458 Listing courtesy of Redfin Corporation provided by Stellar MLS.

Similar Listings

$1,219,000
637 Scotland Street
Dunedin
3BR/3BA
| Active
$1,265,000
536 Baywood N Drive
Dunedin
3BR/3BA
| Active



All listing information is deemed reliable but not guaranteed and should be independently verified through personal inspection by appropriate professionals. Listings displayed on this website may be subject to prior sale or removal from sale; availability of any listing should always be independent verified. Listing information is provided for consumer personal, non-commercial use, solely to identify potential properties for potential purchase; all other use is strictly prohibited and may violate relevant federal and state law. The source of the listing data is as follows: Stellar MLS (updated 4/11/26 3:08 PM) |

Listing Search



Translate Tool

Featured Listings
Oviedo Real Estate
$1,080,000
5 BED
4 BATH
Welcome to this exceptional 5-bedroom, 4 full and 2 half-bath pool home in the coveted Roann Estates subdivision of Ovie... Read More
Bradenton Real Estate
$800,000
5 BED
4 BATH
An exceptional residence that truly redefines elegance, comfort, and Florida living. Located in the sought-after gated c... Read More
Winter Springs Real Estate
$910,000
4 BED
4 BATH
Welcome home to 213 Heatherwood Circle, nestled within the highly sought-after gated community of Reserve at Tuscawilla,... Read More
Kissimmee Real Estate
$824,900
5 BED
4 BATH
Expansive Luxury Home 5/4 with golf course views and inground pool and hot tub with Private In-Law Suite and 1/1 above t... Read More
Yalaha Real Estate
$1,349,000
5 BED
3 BATH
Motivated Seller has made a huge price reduction! Wake up to sweeping sunrise views over Lake Harris and enjoy direct ac... Read More
Lutz Real Estate
$849,900
5 BED
3 BATH
Welcome to the beautiful corner-lot pool home offering elevated design, expansive living, and seamless entertaining in T... Read More
Punta Gorda Real Estate
$925,000
3 BED
3 BATH
Welcome to 3318 Nevis Court—a stunning custom waterfront home in the heart of Section 12 of Punta Gorda Isles, where lux... Read More
Tampa Real Estate
$820,000
4 BED
3 BATH
Step into 1903 W State Street, where location and lifestyle come together just moments from the energy of Downtown Tampa... Read More
Bradenton Real Estate
$1,348,000
3 BED
2 BATH
*Cambria Model-Lot Included* Community Award winner in Parade of Homes. Palma Sola Grande is an Exclusive Gated Communit... Read More
St Petersburg Real Estate
$1,330,000
3 BED
3 BATH
FINALLY FOUND IT! The perfect oversized 15.5-ft private boat slip, including a 12,000-lb boat lift, and no fixed bridges... Read More
Contact Sandra Pardo

407-990-2746

Wendy Morris LLC

Licensed in the State of Florida
BK 3146762
16797 Broadwater Avenue
Winter Garden, Florida 34787

Your privacy is our utmost concern. We will never sell your personal information. Privacy Policy
©2026 sandrapardohomes.com - all rights reserved. | Site Map