407-990-2746
Menu

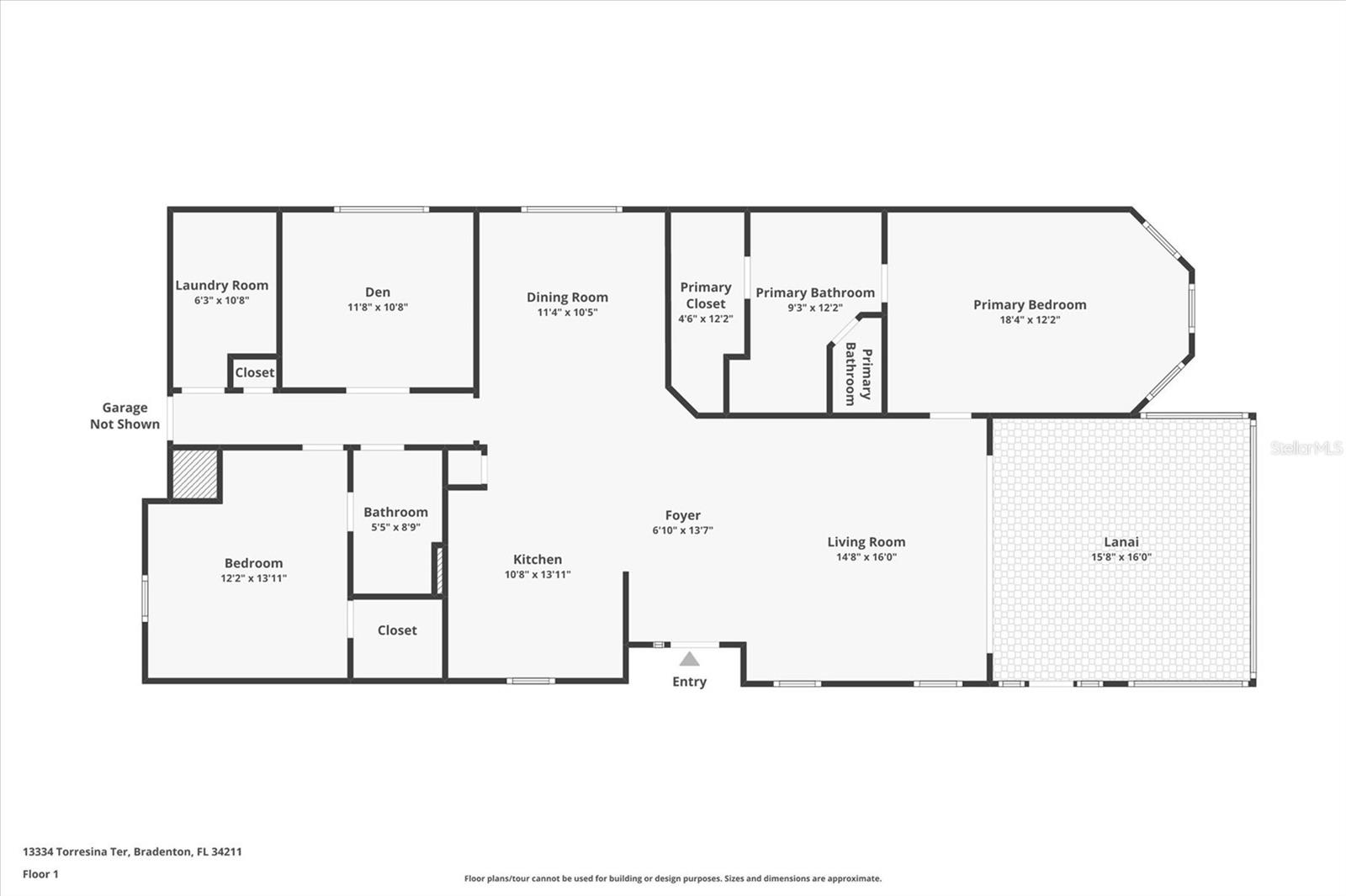
13334 Torresina Terrace, Bradenton, FL

NEXT
PREV
$509,900

($303/sqft)

List Status: Active
13334 Torresina Terrace
Bradenton, FL 34211


2 beds
2 baths
1684 living sqft
Top Features
  • View: Water
  • Subdivision: Esplanade Ph I Subphase H & I
  • Built in  2013
  • Single Family Residence
Description
Esplanade Golf & C.C. at Lakewood Ranch, This 2BR/2BA + Den & 2 Car Garage, Highly Sought-after Roma Model features an AMAZING Private South East rear facing Lake View homesite with preserve across the water, with wonderful lake views from Primary BR, and two sides of the home viewable from Kitchen, Dining, Living, and of course from the Lanai and extended screen enclosed patio! Very Rare to get this kind of water view, this is truly a special lot, and located at the End of a Cul-de-sac, it provides added solitude with no through traffic. The view and privacy of this particular lot is unmatched and priceless. The home has great space with high ceilings, an open floor plan with Living, Dining, and Kitchen all open to each other, featuring Crown molding, tray ceilings with crown, and lovely light coming in from the east-facing sliders and south-facing windows. The Kitchen features Granite Counter and breakfast bar, Closet Pantry, 42" wood cabinets, Stainless Steel Appliances including refrigerator, dishwasher, microwave hood, and Gas Stove, the home is plumbed and stubbed out for GAS in other locations too (water heater runs on gas), Washer and Electric Dryer (stubbed out for gas if desired). Esplanade Golf & C.C. is all about the active lifestyle featuring an award winning golf course (pay to play), pro-shop golf and tennis pro staff, Har-Tru tennis courts, Workout facility, Pool with Lap lanes and Lagoon Style Resort Pool with adjoining Bahama Breeze Tiki Bar/Restaurant, plus the Barrel House Bistro and Tap Room, Wine lockers, Teaching Kitchen, an abundance of covered outdoor dining areas and an outdoor fireplace, bar and TVs to watch the game and socialize. Impeccably maintained and luxurious surroundings make this a truly special place to live part-time or year-round. This is NOT a 55+ community but is maintenance-free (all landscape included in the fee), offering you time to enjoy an active and fulfilling lifestyle. Live and play your best life now!
Property Details
Additional Information
Additional Lease Restrictions
For Further Details Please See Governing Documents at https://esplanadelwr.com/hoa
Additional Parcels YN
false
Alternate Key Folio Num
579911459
Amenities Additional Fees
Pay to Play Golf
Appliances
Dishwasher, Disposal, Dryer, Microwave, Range, Range Hood, Refrigerator, Washer
Approval Process
Application
Association Amenities
Gated, Golf Course, Pool, Tennis Court(s)
Association Approval Required YN
1
Association Email
ASaad@EsplanadeLWR.com
Association Fee
605
Association Fee Frequency
Monthly
Association Fee Includes
Common Area Taxes, Escrow Reserves Fund, Insurance, Maintenance Grounds, Private Road, Recreational Facilities, Security
Association Fee Requirement
Required
Association URL
https://esplanadelwr.com/hoa
Association YN
true
Attached Garage YN
true
Available For Lease YN
1
Bathrooms Total Integer
2
Builder Name
Taylor Morrison
Building Area Source
Public Records
Building Area Total
2256
Building Area Total Srch SqM
209.59
Building Area Units
Square Feet
CDDYN
1
Calculated List Price By Calculated SqFt
302.79
Carport YN
false
Community Features
Clubhouse, Dog Park, Fitness Center, Gated Community - Guard, Golf Carts OK, Golf, Irrigation-Reclaimed Water, Pool, Restaurant, Sidewalks, Tennis Court(s), Street Lights
Construction Materials
Block
Cooling
Central Air
Country
US
Cumulative Days On Market
19
Current Price
509900.00
Direction Faces
Northwest
Disaster Mitigation
Above Flood Plain
Elementary School
Gullett Elementary
End Date of Lease
2025-10-31
Exist Lease Tenant YN
1
Exterior Features
Sliding Doors, Tennis Court(s)
Fireplace YN
false
Flood Zone Code
X
Flood Zone Date
2014-03-17
Flood Zone Panel
12081C0333E
Flooring
Carpet, Ceramic Tile
Foundation Details
Slab
Furnished
Negotiable
Garage Dimensions
21x18
Garage Spaces
2
Garage YN
true
Heating
Central, Electric, Natural Gas
High School
Lakewood Ranch High
Interior Features
Accessibility Features, Crown Molding, High Ceilings, In Wall Pest System, Open Floorplan, Primary Bedroom Main Floor, Stone Counters, Tray Ceiling(s), Walk-In Closet(s)
Internet Address Display YN
true
Internet Automated Valuation Display YN
false
Internet Consumer Comment YN
true
Internet Entire Listing Display YN
true
Laundry Features
Inside, Laundry Room
Lease Restrictions YN
1
Levels
One
List AOR
Sarasota - Manatee
Living Area Meters
156.45
Living Area Source
Public Records
Living Area Units
Square Feet
Lot Features
Cul-De-Sac
Lot Size Acres
0.17
Lot Size Square Feet
7479
Lot Size Square Meters
695
Max Pet Weight
100
Middle Or Junior School
Dr Mona Jain Middle
Minimum Lease
1 Month
Modification Timestamp
2025-10-28T12:27:09.782Z
Monthly HOA Amount
605.00
New Construction YN
false
Num Times per Year
4
Number Of Pets
10+
Occupant Type
Tenant
Ownership
Fee Simple
Parcel Number
579911459
Pet Restrictions
Only common domesticated household pets, No breeding allowed, No Dangerous Dog/Animal. See Declarations and Covenants for further details 9.8
Pet Size
Extra Large (101+ Lbs.)
Pets Allowed
Cats OK, Dogs OK
Pool Private YN
false
Postal Code Plus 4
8424
Public Survey Range
19E
Public Survey Section
09
RATIO Current Price By Calculated SqFt
302.79
Road Surface Type
Paved
Roof
Tile
Room Count
8
SW Subdiv Community Name
Esplanade
Senior Community YN
false
Sewer
Public Sewer
Showing Requirements
Supra Lock Box
Status Change Timestamp
2025-10-09T21:43:50.000Z
Stories Total
1
Tax Annual Amount
7573.12
Tax Legal Description
LOT 29 ESPLANADE PHASE I SUBPHASE H & I PI#5799.1145/9
Tax Lot
29
Tax Other Annual Assessment Amount
1168
Tax Year
2024
Total Acreage
0 to less than 1/4
Total Annual Fees
7260.00
Total Monthly Fees
605.00
Township
35S
Universal Property Id
US-12081-N-579911459-R-N
Unparsed Address
13334 TORRESINA TER
Utilities
BB/HS Internet Available, Public, Underground Utilities
Water Source
Public
Water View
Lake
Water View YN
1
Waterfront YN
false
Zoning
PDMU/A
Neighborhood Map
Popup

Property Photos
Listing Photo
Listing Photo
Listing Photo
Listing Photo
Listing Photo
Listing Photo
Listing Photo
Listing Photo
Listing Photo
Listing Photo
Listing Photo
Listing Photo
Listing Photo
Listing Photo
Listing Photo
Listing Photo
Listing Photo
Listing Photo
Listing Photo
Listing Photo
Listing Photo
Listing Photo
Listing Photo
Listing Photo
Listing Photo
Listing Photo
Listing Photo
Listing Photo
Listing Photo
Listing Photo
Listing Photo
Listing Photo
Listing Photo
Listing Photo
Listing Photo
Listing Photo
Listing Photo
Listing Photo
Listing Photo
Listing Photo
Listing Photo
Listing Photo
Listing Photo
Listing Photo
Listing Photo
Listing Photo
Listing Photo
Listing Photo
Listing Photo
Listing Photo
Listing Photo
Listing Photo
Listing Photo
Listing Photo
Listing Photo
Listing Photo
Listing Photo
Listing Photo
Listing Photo
Listing Photo
Listing Photo
Listing Photo
Listing Photo
Listing Photo
Listing Photo
Listing Photo
Listing Photo
Listing Photo
Listing Photo
Listing Photo
Listing Photo
Listing Photo
Listing Photo
Listing Photo
Listing Photo
Listing Photo
Listing Photo
Listing Photo
Listing Photo
Listing Photo
Listing Photo
Listing Photo
Listing Photo
Listing Photo
Listing Photo
Listing Photo
Listing Photo
Listing Photo
Listing Photo
Listing Photo
Listing Photo
Listing Photo
Listing Photo
Listing Photo
Listing Photo
Listing Photo
Listing Photo
Listing Photo
Listing Photo
Listing Photo
Listing Photo
Listing Photo
Listing Photo
Listing Photo
Listing Photo
Listing Photo
Listing Photo
Listing Photo
Listing Photo
Listing Photo
Listing Photo
Listing Photo
Listing Photo
Listing Photo
Listing Photo
Listing Photo
Listing Photo
Listing Photo
Listing Photo
Listing Photo
Listing Photo
Listing Photo
Listing Photo
Listing Photo
Listing Photo
Listing Photo
Listing Photo
Listing Photo
Listing Photo
Listing Photo
Listing Photo
Listing Photo
Listing Photo
Listing Photo
Listing Photo
Listing Photo
Listing Photo
Listing Photo
Listing Photo
Listing Photo
Listing Photo
Listing Photo
Listing Photo
Listing Photo
Listing Photo
Listing Photo
Listing Photo
Listing Photo
Listing Photo
Listing Photo
Listing Photo
Listing Photo
Listing Photo
Listing Photo
Listing Photo
Listing Photo

MLS #MFRA4668009 Listing courtesy of Albert Wooster & Company provided by Stellar MLS.

Similar Listings

$459,900
7611 34th Ave W
Bradenton
2BR/2BA
| Active
$460,000
6735 Haverhill Court
Bradenton
2BR/2BA
| Active
$460,000
251 Okeeffe Circle
Bradenton
2BR/2BA
| Active
$464,999
4459 Sunset Garden Street
Bradenton
2BR/2BA
| Pending



All listing information is deemed reliable but not guaranteed and should be independently verified through personal inspection by appropriate professionals. Listings displayed on this website may be subject to prior sale or removal from sale; availability of any listing should always be independent verified. Listing information is provided for consumer personal, non-commercial use, solely to identify potential properties for potential purchase; all other use is strictly prohibited and may violate relevant federal and state law. The source of the listing data is as follows: Stellar MLS (updated 4/29/26 12:18 PM) |

Listing Search



Translate Tool

Featured Listings
Mount Dora Real Estate
$875,000
6 BED
4 BATH
Welcome to 5867 Sierra Crown Street, a beautifully upgraded and meticulously maintained home located in the desirable an... Read More
Williston Real Estate
$869,000
4 BED
2 BATH
This beautifully maintained custom-built home offers the perfect blend of comfort, functionality, and upgraded living on... Read More
Tampa Real Estate
$969,000
3 BED
2 BATH
**Exclusive Luxury Condo in Channelside, Tampa!** Discover the epitome of urban elegance with this exceptionally rare, n... Read More
The Villages Real Estate
$859,000
4 BED
2 BATH
WATER & CHAMPIONSHIP GOLF COURSE VIEWS! EXPANDED LANTANA DESIGNER HOME (2500+ SQ FT) located on the Jacaranda Championsh... Read More
St Petersburg Real Estate
$1,475,000
2 BED
2 BATH
Experience the pinnacle of downtown St. Petersburg living in this exquisite 33rd-floor residence at Saltaire. This 2-bed... Read More
Maitland Real Estate
$850,000
5 BED
2 BATH
One or more photo(s) has been virtually staged. Tucked in the highly sought-after Dommerich Hills neighborhood, this bea... Read More
Bradenton Real Estate
$1,244,999
3 BED
3 BATH
Welcome to your fully renovated waterfront retreat in the heart of Bradenton! This beautifully updated 3-bedroom, 3-bath... Read More
Melrose Real Estate
$950,000
3 BED
2 BATH
Welcome to your Lake Retreat on Melrose Bay, Lake Santa Fe! Designed by renowned architect Ron Haase, this iconic, Old-F... Read More
Orlando Real Estate
$1,188,000
4 BED
3 BATH
Discover Lake Life Living at Its Best! Welcome to your dream home on the serene shores of Lake Jennie Jewell! This stunn... Read More
Bradenton Real Estate
$1,370,000
4 BED
3 BATH
Experience modern luxury in this stunning 4 bedroom, 3.5 bath home, nestled in the Historic District of Northwest Braden... Read More
Contact Sandra Pardo

407-990-2746

Wendy Morris LLC

Licensed in the State of Florida
BK 3146762
16797 Broadwater Avenue
Winter Garden, Florida 34787

Your privacy is our utmost concern. We will never sell your personal information. Privacy Policy
©2026 sandrapardohomes.com - all rights reserved. | Site Map