407-990-2746
Menu

13248 Windcrest Drive, Port Charlotte, FL

NEXT
PREV
$915,000

($403/sqft)

List Status: Active
13248 Windcrest Drive
Port Charlotte, FL 33953


3 beds
3 baths
2269 living sqft
Top Features
  • Frontage: Canal Front
  • View: Water
  • Subdivision: Port Charlotte Sub
  • Built in  2019
  • Single Family Residence
Description
Property Details
Additional Information
Additional Parcels YN
false
Alternate Key Folio Num
402108331013
Appliances
Bar Fridge, Built-In Oven, Cooktop, Dishwasher, Electric Water Heater, Microwave, Range Hood, Whole House R.O. System
Association YN
false
Attached Garage YN
true
Available For Lease YN
1
Bathrooms Total Integer
3
Building Area Source
Public Records
Building Area Total
3490
Building Area Total Srch SqM
324.23
Building Area Units
Square Feet
Calculated List Price By Calculated SqFt
403.26
Carport YN
false
Construction Materials
Block
Cooling
Central Air
Country
US
Cumulative Days On Market
68
Current Price
915000.00
Direction Faces
South
Elementary School
Liberty Elementary
Exterior Features
Outdoor Grill, Outdoor Kitchen, Rain Gutters, Sliding Doors
Fireplace Features
Electric, Living Room
Fireplace YN
true
Flood Zone Code
9AE
Flood Zone Date
2022-12-15
Flood Zone Panel
12015C0040G
Flooring
Tile
Foundation Details
Slab, Stem Wall
Garage Spaces
3
Garage YN
true
Heating
Central
High School
Port Charlotte High
Homestead YN
1
Interior Features
Built-in Features, Ceiling Fans(s), Eat-in Kitchen, High Ceilings, Open Floorplan, Stone Counters, Tray Ceiling(s), Walk-In Closet(s), Window Treatments
Internet Address Display YN
true
Internet Automated Valuation Display YN
false
Internet Consumer Comment YN
false
Internet Entire Listing Display YN
true
Laundry Features
Electric Dryer Hookup, Inside, Laundry Room, Washer Hookup
Levels
One
List AOR
Sarasota - Manatee
Living Area Meters
210.80
Living Area Source
Public Records
Living Area Units
Square Feet
Lot Size Acres
0.23
Lot Size Dimensions
80x125x80x125
Lot Size Square Feet
10000
Lot Size Square Meters
929
Middle Or Junior School
Murdock Middle
Minimum Lease
No Minimum
Modification Timestamp
2025-12-19T00:20:08.938Z
New Construction YN
false
Occupant Type
Vacant
Other Equipment
Irrigation Equipment
Ownership
Fee Simple
Parcel Number
402108331013
Pool Private YN
true
Postal Code Plus 4
3207
Previous List Price
929000
Price Change Timestamp
2025-12-19T00:19:23.000Z
Public Remarks
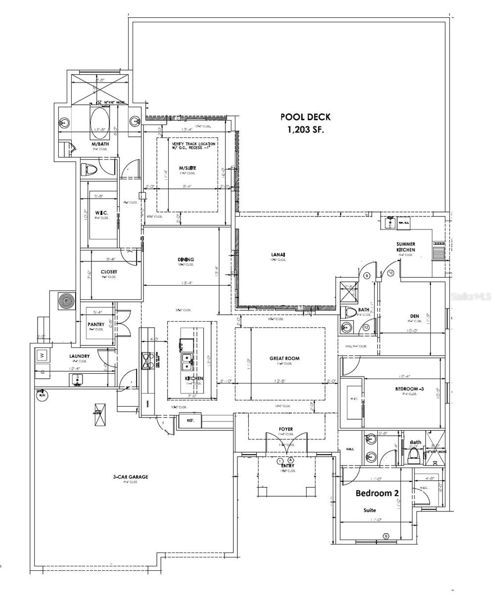
CUSTOM GULF ACCESS WATERFRONT POOL HOME! Don’t miss this stunning custom-built residence featuring 3 bedrooms, 3 bathrooms, and a den. Designed with high-end finishes throughout, this home perfectly blends luxury living with the best of Florida’s waterfront lifestyle. The open-concept floor plan highlights tray ceilings, 8-foot doors, and a spacious great room with a 90 Degree slider, ideal for entertaining. The gourmet kitchen boasts Cambria quartz countertops, a large island, custom cabinetry, and a large walk-in pantry. Additional upgrades include impact-rated windows and doors, plantation shutters, built-in speakers, a whole-house reverse osmosis system with a 500-gallon tank, and a smart irrigation system. The primary suite is a true retreat with two sets of sliding doors featuring drop-down electric screens, peaceful waterfront views, dual walk-in closets, and a luxurious spa bath with a walk-through shower and rain shower fixture, soaking tub, and dual vanities. Step outside to your private tropical oasis, designed for relaxation and entertaining. Enjoy a summer kitchen, custom-built Churrasqueira brick grill, and a heated saltwater pool and spa overlooking the water. For boating enthusiasts, this property includes a dock with a 10, 000-lb boat lift and direct Gulf access via the Myakka River — with only one bridge offering a 24-ft clearance. This home was thoughtfully designed for comfort, convenience, and waterfront enjoyment. Schedule your private showing today!
Public Survey Range
21E
Public Survey Section
08
RATIO Current Price By Calculated SqFt
403.26
Realtor Info
As-Is
Road Surface Type
Asphalt
Roof
Tile
Room Count
8
SW Subdiv Community Name
Port Charlotte
Senior Community YN
false
Sewer
Septic Tank
Showing Requirements
Supra Lock Box
Spa Features
Heated, In Ground
Spa YN
true
Status Change Timestamp
2025-10-12T00:20:37.000Z
Stories Total
1
Tax Annual Amount
7067.11
Tax Block
2912
Tax Legal Description
PCH 049 2912 0014 PORT CHARLOTTE SEC 49 BLK 2912 LT 14 417/467 1215/202 1916/1501 1929/2059 2125/747 2142/1198 2297/1338 3884/1997 4249/1884 RELE4275/1151
Tax Lot
14
Tax Year
2024
Total Acreage
0 to less than 1/4
Total Annual Fees
0.00
Total Monthly Fees
0.00
Township
40S
Universal Property Id
US-12015-N-402108331013-R-N
Unparsed Address
13248 WINDCREST DR
Utilities
BB/HS Internet Available, Cable Available, Electricity Connected
Water Access
Canal - Saltwater, Gulf/Ocean, Gulf/Ocean to Bay, River
Water Access YN
1
Water Body Name
APOLLO WATERWAY
Water Extras
Lift, Riprap
Water Extras YN
1
Water Source
Well
Water View
Canal
Water View YN
1
Waterfront YN
true
Zoning
RSF3.5
Neighborhood Map
Popup

Property Photos
Listing Photo
Listing Photo
Listing Photo
Listing Photo
Listing Photo
Listing Photo
Listing Photo
Listing Photo
Listing Photo
Listing Photo
Listing Photo
Listing Photo
Listing Photo
Listing Photo
Listing Photo
Listing Photo
Listing Photo
Listing Photo
Listing Photo
Listing Photo
Listing Photo
Listing Photo
Listing Photo
Listing Photo
Listing Photo
Listing Photo
Listing Photo
Listing Photo
Listing Photo
Listing Photo
Listing Photo
Listing Photo
Listing Photo
Listing Photo
Listing Photo
Listing Photo
Listing Photo
Listing Photo
Listing Photo
Listing Photo
Listing Photo
Listing Photo
Listing Photo
Listing Photo
Listing Photo
Listing Photo
Listing Photo
Listing Photo
Listing Photo
Listing Photo
Listing Photo
Listing Photo
Listing Photo
Listing Photo
Listing Photo
Listing Photo
Listing Photo
Listing Photo
Listing Photo
Listing Photo
Listing Photo
Listing Photo
Listing Photo
Listing Photo
Listing Photo
Listing Photo
Listing Photo
Listing Photo
Listing Photo
Listing Photo
Listing Photo
Listing Photo
Listing Photo
Listing Photo
Listing Photo
Listing Photo
Listing Photo
Listing Photo
Listing Photo
Listing Photo
Listing Photo
Listing Photo
Listing Photo
Listing Photo
Listing Photo
Listing Photo
Listing Photo
Listing Photo
Listing Photo
Listing Photo
Listing Photo
Listing Photo
Listing Photo
Listing Photo
Listing Photo
Listing Photo
Listing Photo
Listing Photo
Listing Photo
Listing Photo
Listing Photo
Listing Photo
Listing Photo
Listing Photo
Listing Photo
Listing Photo
Listing Photo
Listing Photo
Listing Photo
Listing Photo
Listing Photo
Listing Photo
Listing Photo
Listing Photo
Listing Photo
Listing Photo
Listing Photo
Listing Photo
Listing Photo
Listing Photo
Listing Photo
Listing Photo
Listing Photo
Listing Photo

MLS #MFRA4666170 Listing courtesy of Real Re Group Llc provided by Stellar MLS.

Similar Listings

$849,000
15684 Havana Circle
Port Charlotte
3BR/3BA
| Active
$849,900
15218 Appleton Boulevard
Port Charlotte
3BR/3BA
| Active
$849,900
18149 Ohara Drive
Port Charlotte
3BR/3BA
| Active
$849,995
1211 Cheshire
Port Charlotte
3BR/3BA
| Active



All listing information is deemed reliable but not guaranteed and should be independently verified through personal inspection by appropriate professionals. Listings displayed on this website may be subject to prior sale or removal from sale; availability of any listing should always be independent verified. Listing information is provided for consumer personal, non-commercial use, solely to identify potential properties for potential purchase; all other use is strictly prohibited and may violate relevant federal and state law. The source of the listing data is as follows: Stellar MLS (updated 12/18/25 9:50 PM) |

Listing Search



Translate Tool

Featured Listings
Lake Mary Real Estate
$1,385,000
5 BED
4 BATH
Winter Garden Real Estate
$990,000
5 BED
3 BATH
Apollo Beach Real Estate
$825,000
3 BED
2 BATH
Dover Real Estate
$1,290,000
4 BED
3 BATH
Palmetto Real Estate
$839,000
3 BED
2 BATH
Odessa Real Estate
$999,999
5 BED
3 BATH
Holmes Beach Real Estate
$850,000
2 BED
2 BATH
Winter Garden Real Estate
$995,000
5 BED
4 BATH
Davenport Real Estate
$935,000
10 BED
8 BATH
Winter Springs Real Estate
$1,500,000
7 BED
5 BATH
Contact Sandra Pardo

407-990-2746

Wendy Morris LLC

Licensed in the State of Florida
BK 3146762
16797 Broadwater Avenue
Winter Garden, Florida 34787

Your privacy is our utmost concern. We will never sell your personal information. Privacy Policy
©2025 sandrapardohomes.com - all rights reserved. | Site Map