407-990-2746
Menu

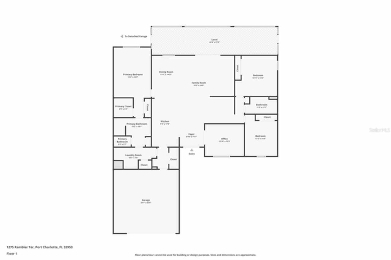
1275 Rambler Terrace, Port Charlotte, FL

NEXT
PREV
$559,500

($246/sqft)

List Status: Pending
1275 Rambler Terrace
Port Charlotte, FL 33953


3 beds
2 baths
2273 living sqft
Top Features
  • Subdivision: Port Charlotte Sec 029
  • Built in  2023
  • Single Family Residence
Description
Property Details
Additional Information
Additional Parcels YN
false
Additional Rooms
Den/Library/Office, Great Room, Inside Utility
Alternate Key Folio Num
402110255005
Appliances
Built-In Oven, Cooktop, Dishwasher, Electric Water Heater, Kitchen Reverse Osmosis System, Microwave, Range Hood, Refrigerator, Water Filtration System, Water Purifier, Water Softener, Whole House R.O. System
Association YN
false
Attached Garage YN
true
Available For Lease YN
1
Bathrooms Total Integer
2
Building Area Source
Public Records
Building Area Total
3154
Building Area Total Srch SqM
293.02
Building Area Units
Square Feet
Calculated List Price By Calculated SqFt
246.15
Carport YN
false
Construction Materials
Block, Stucco
Contract Status
Appraisal, Financing, Inspections
Cooling
Central Air
Country
US
Cumulative Days On Market
95
Current Price
559500.00
Direction Faces
Southeast
Disaster Mitigation
Hurricane Shutters/Windows
Elementary School
Liberty Elementary
Expected Closing Date
2025-12-18T00:00:00.000
Exterior Features
Lighting, Private Mailbox, Rain Gutters, Sliding Doors
Fencing
Fenced, Other, Vinyl
Fireplace Features
Electric
Fireplace YN
true
Flood Zone Code
X
Flood Zone Date
2022-12-15
Flood Zone Panel
12015C0040G
Flooring
Luxury Vinyl, Tile
Foundation Details
Slab
Garage Dimensions
23X22
Garage Spaces
2
Garage YN
true
Green Water Conservation
Whole House Water Purification
Heating
Electric
High School
Port Charlotte High
Homestead YN
1
Interior Features
Ceiling Fans(s), Coffered Ceiling(s), High Ceilings, Kitchen/Family Room Combo, Open Floorplan, Primary Bedroom Main Floor, Solid Wood Cabinets, Split Bedroom, Stone Counters, Walk-In Closet(s), Window Treatments
Internet Address Display YN
true
Internet Automated Valuation Display YN
false
Internet Consumer Comment YN
false
Internet Entire Listing Display YN
true
Laundry Features
Electric Dryer Hookup, Inside, Laundry Room, Washer Hookup
Levels
One
List AOR
Venice
Listing Exclusion YN
1
Living Area Meters
211.17
Living Area Source
Public Records
Living Area Units
Square Feet
Lot Features
Landscaped, Oversized Lot, Paved
Lot Size Acres
0.8
Lot Size Dimensions
240x145
Lot Size Square Feet
34800
Lot Size Square Meters
3233
Middle Or Junior School
Murdock Middle
Minimum Lease
No Minimum
Modification Timestamp
2025-11-26T16:03:09.653Z
New Construction YN
false
Number Of Lots
3
Number Of Septics
1
Number Of Wells
1
Occupant Type
Owner
Other Equipment
Irrigation Equipment
Other Structures
Other, Workshop
Ownership
Fee Simple
Parcel Number
402110255005
Pool Private YN
false
Postal Code Plus 4
2723
Previous List Price
594500
Price Change Timestamp
2025-10-17T18:21:57.000Z
Public Remarks
Under contract-accepting backup offers. SPECTACULAR PRICE REDUCTION . . . Homebuyers Seeking a RECENTLY CONSTRUCTED, ELEGANT CUSTOM BUILT (2023) 3 Bedroom, 2 Bath + Den HOME with an OPEN FLOOR PLAN, HIGH CEILINGS and COFFERED Great Room Ceiling, PRIVACY, NO HOA FEES, NO CDD FEES . . . PLUS . . . Situated on a TRIPLE LOT HOMESITE Measuring (240'x145') Just Under One Acre of Land (.80 Acreage) . . . You Have Found What You've Been Looking for! This GEM has An ATTACHED OVER-SIZED 2-Car Garage (23'X21.8') Plus a DETACHED GARAGE (18'X26') with Electric, Lighting and Workshop Space. RV and BOAT Owners . . . Bring Them Here. . .You’ll have Plenty of Room to Park and Hook Up to the 50 Amp Pedestal. This Remarkable Property is TOTALLY FENCED for Pets and Play, with PRIVACY VINYL on Back and Sides with ALUMINUM FRONTAGE for Great Curb Appeal. A Modern COASTAL DESIGN and PREMIUM FEATURES Create a Home that Truly Stands Out. TOP-OF-THE-LINE LUXURY WHOLE-HOUSE ECO WATER REVERSE OSMOSIS SYSTEM Gives Peace-of-Mind for Cooking, Drinking Water and Showering for the Entire Family. When Inclement Weather Approaches, this Home has HURRICANE IMPACT WINDOWS, And, If You Lose Power, there’s a GENERATOR HOOK-UP. Relax in the Great Room with Family and Friends as You Gather Around the Touchstone Elite Electric Fireplace Providing (with Heater) an Ambient Atmosphere. A Dream GOURMET KITCHEN Features SMART OVENS, Soft-Close 42" Cabinets, Tiled Backsplash and SAMSUNG Appliances (2023) plus a Beautiful Stainless Range Hood are Showcased in the OPEN FLOOR PLAN with an OVER-SIZED GRANITE Kitchen Island and a Coffee Bar. Upgraded PORCELAIN TILE Throughout ALL Public Rooms and LUXURY VINYL FLOORING in ALL Bedrooms and the Den/Study Makes Vacuuming a Breeze. For the Pets in Your Family, Bath Time is Stressless, as the Laundry Room has a Pet-Friendly TILED-WALK-IN SHOWER. . . Washup After Working in the Yard, or a Day at the Beach. A Security System is Also On-Site. Conveniently Located within Minutes of Shopping, Dining, Entertainment, Medical Facilities and Sports Venues. This EXCEPTIONAL OPPORTUNITY Awaits Those Who Want SPACE and PRIVACY, INDEPENDENCE and EVERYTHING COMPLETED to Begin Enjoying the Endless Possibilities of Keeping All of Your "Toys" with You! Call to See this AMAZING HOME and PROPERTY Today and Make It Your Own.
Public Survey Range
21E
Public Survey Section
10
Purchase Contract Date
2025-11-11
RATIO Current Price By Calculated SqFt
246.15
Realtor Info
As-Is, See Attachments, Sign, Survey Available
Road Responsibility
Public Maintained Road
Road Surface Type
Asphalt
Roof
Shingle
Room Count
11
SW Subdiv Community Name
Not Applicable
Security Features
Security System, Security System Owned, Smoke Detector(s)
Senior Community YN
false
Sewer
Septic Tank
Showing Requirements
Contact Call Center
Status Change Timestamp
2025-11-12T17:34:22.000Z
Tax Annual Amount
6729.61
Tax Block
2574
Tax Book Number
5-22
Tax Legal Description
PCH 029 2574 0031 PORT CHARLOTTE SEC29 BLK2574 LTS 31 & 32 319/715 638/1873 1973/1807 2919/633 TD3803/918 4447/2073 4697/1445 DEC4858/1133 4874/942 PCH 029 2574 0030 PORT CHARLOTTE SEC29 BLK2574 LT30 657/1782 DC4483/1655-JRA AFF4483/1656 448
Tax Lot
31
Tax Year
2024
Total Acreage
1/2 to less than 1
Total Annual Fees
0.00
Total Monthly Fees
0.00
Township
40S
Universal Property Id
US-12015-N-402110255005-R-N
Unparsed Address
1275 RAMBLER TER
Utilities
Cable Available, Electricity Connected, Sprinkler Well
Water Source
Well
Waterfront YN
false
Window Features
Blinds, Drapes, Insulated Windows, Rods, Window Treatments
Zoning
RSF3.5
Neighborhood Map
Popup

Property Photos
Listing Photo
Listing Photo
Listing Photo
Listing Photo
Listing Photo
Listing Photo
Listing Photo
Listing Photo
Listing Photo
Listing Photo
Listing Photo
Listing Photo
Listing Photo
Listing Photo
Listing Photo
Listing Photo
Listing Photo
Listing Photo
Listing Photo
Listing Photo
Listing Photo
Listing Photo
Listing Photo
Listing Photo
Listing Photo
Listing Photo
Listing Photo
Listing Photo
Listing Photo
Listing Photo
Listing Photo
Listing Photo
Listing Photo
Listing Photo
Listing Photo
Listing Photo
Listing Photo
Listing Photo
Listing Photo
Listing Photo
Listing Photo
Listing Photo
Listing Photo
Listing Photo
Listing Photo
Listing Photo
Listing Photo
Listing Photo
Listing Photo
Listing Photo
Listing Photo
Listing Photo
Listing Photo
Listing Photo
Listing Photo
Listing Photo
Listing Photo
Listing Photo
Listing Photo
Listing Photo
Listing Photo
Listing Photo
Listing Photo
Listing Photo
Listing Photo
Listing Photo
Listing Photo
Listing Photo
Listing Photo
Listing Photo
Listing Photo
Listing Photo
Listing Photo
Listing Photo
Listing Photo
Listing Photo
Listing Photo
Listing Photo
Listing Photo
Listing Photo
Listing Photo
Listing Photo
Listing Photo
Listing Photo
Listing Photo
Listing Photo
Listing Photo
Listing Photo
Listing Photo
Listing Photo
Listing Photo
Listing Photo
Listing Photo
Listing Photo
Listing Photo
Listing Photo
Listing Photo
Listing Photo
Listing Photo
Listing Photo
Listing Photo
Listing Photo
Listing Photo
Listing Photo
Listing Photo
Listing Photo
Listing Photo
Listing Photo
Listing Photo
Listing Photo
Listing Photo
Listing Photo
Listing Photo
Listing Photo
Listing Photo
Listing Photo
Listing Photo
Listing Photo
Listing Photo
Listing Photo
Listing Photo
Listing Photo
Listing Photo
Listing Photo
Listing Photo
Listing Photo
Listing Photo
Listing Photo
Listing Photo
Listing Photo
Listing Photo
Listing Photo
Listing Photo
Listing Photo
Listing Photo
Listing Photo
Listing Photo
Listing Photo
Listing Photo
Listing Photo
Listing Photo
Listing Photo
Listing Photo
Listing Photo
Listing Photo
Listing Photo
Listing Photo
Listing Photo
Listing Photo
Listing Photo
Listing Photo
Listing Photo
Listing Photo
Listing Photo
Listing Photo
Listing Photo
Listing Photo
Listing Photo
Listing Photo
Listing Photo
Listing Photo
Listing Photo
Listing Photo
Listing Photo
Listing Photo
Listing Photo

MLS #MFRN6140003 Listing courtesy of Re/max Palm provided by Stellar MLS.

Similar Listings

$509,000
13091 Preserve Court
Port Charlotte
3BR/2BA
| Active
$510,000
9582 Arsipe Circle
Port Charlotte
3BR/2BA
| Active
$513,000
12060 Eisenhower Drive
Port Charlotte
3BR/2BA
| Active
$514,900
3429 Rock Creek Drive
Port Charlotte
3BR/2BA
| Active



All listing information is deemed reliable but not guaranteed and should be independently verified through personal inspection by appropriate professionals. Listings displayed on this website may be subject to prior sale or removal from sale; availability of any listing should always be independent verified. Listing information is provided for consumer personal, non-commercial use, solely to identify potential properties for potential purchase; all other use is strictly prohibited and may violate relevant federal and state law. The source of the listing data is as follows: Stellar MLS (updated 12/7/25 11:50 AM) |

Listing Search



Translate Tool

Featured Listings
Cortez Real Estate
$975,000
3 BED
2 BATH
Punta Gorda Real Estate
$999,000
3 BED
3 BATH
Punta Gorda Real Estate
$1,159,000
3 BED
2 BATH
Clearwater Real Estate
$815,000
2 BED
2 BATH
Orlando Real Estate
$1,395,000
4 BED
3 BATH
Venice Real Estate
$899,000
4 BED
3 BATH
Ponce Inlet Real Estate
$1,049,000
3 BED
2 BATH
Punta Gorda Real Estate
$1,399,000
4 BED
2 BATH
Lutz Real Estate
$825,000
3 BED
3 BATH
Bradenton Real Estate
$1,499,000
4 BED
4 BATH
Contact Sandra Pardo

407-990-2746

Wendy Morris LLC

Licensed in the State of Florida
BK 3146762
16797 Broadwater Avenue
Winter Garden, Florida 34787

Your privacy is our utmost concern. We will never sell your personal information. Privacy Policy
©2025 sandrapardohomes.com - all rights reserved. | Site Map