407-990-2746
Menu

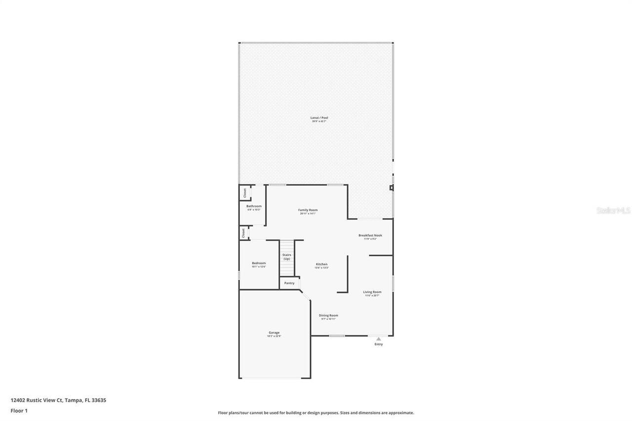
12402 Rustic View Court, Tampa, FL

NEXT
PREV
$640,000

($217/sqft)

List Status: Active
12402 Rustic View Court
Tampa, FL 33635


4 beds
2 baths
2944 living sqft
Top Features
  • Subdivision: Country Chase
  • Built in  2003
  • Single Family Residence
Description
Price Reduced – Westchase Pool Home with Smart Upgrades & Solar Experience the perfect blend of style, comfort, and Florida outdoor living in this beautifully updated home located in the highly desirable Westchase community. From the moment you arrive, you’ll notice the lush tropical landscaping, inviting curb appeal, and welcoming covered entry. Inside, the home opens to a bright, airy layout filled with natural light, elevated by designer finishes and luxury vinyl flooring (2026) that flows seamlessly through the main living spaces. The open-concept design makes everyday living and entertaining effortless, while custom blinds and polarized air filters enhance both comfort and indoor air quality. Step outside through hurricane-rated sliding glass doors to your private backyard retreat. The saltwater pool and spa feature fully automated smart controls, giving you the ability to manage temperature, lighting, and settings with ease. A fully re-screened pool enclosure creates a clean, comfortable space for year-round enjoyment—perfect for relaxing evenings or hosting guests. This home also offers major upgrades that deliver peace of mind and efficiency, including: Hurricane-impact windows (all 14 + slider) New roof Solar panels (2020) for energy savings Upgraded irrigation system Located in one of Tampa Bay’s most sought-after communities, Westchase offers golf, parks, trails, top-rated schools, dining, and convenient access to shopping and major roadways. Move-in ready, thoughtfully upgraded, and now price reduced—this is Florida living at its best.
Property Details
Additional Information
Additional Lease Restrictions
Buyer to verify lease restrictions
Additional Parcels YN
false
Alternate Key Folio Num
0043251796
Amenities Additional Fees
Buyer to verify Approval process and all current fees with HOA.
Appliances
Dishwasher, Disposal, Electric Water Heater, Ice Maker, Microwave, Range, Refrigerator
Approval Process
Buyer to verify Approval process.
Association Approval Required YN
1
Association Fee
56
Association Fee Frequency
Monthly
Association Fee Includes
Maintenance Grounds, Pool, Recreational Facilities
Association Fee Requirement
Required
Association YN
true
Attached Garage YN
false
Available For Lease YN
1
Bathrooms Total Integer
3
Building Area Source
Appraiser
Building Area Total
3344
Building Area Total Srch SqM
310.67
Building Area Units
Square Feet
Calculated List Price By Calculated SqFt
217.39
Carport YN
false
Community Features
Street Lights
Construction Materials
Block, Stucco
Cooling
Central Air
Country
US
Cumulative Days On Market
81
Current Price
640000.00
Direction Faces
East
Disaster Mitigation
Hurricane Shutters/Windows
Elementary School
Lowry-HB
Exterior Features
Hurricane Shutters, Lighting, Rain Gutters, Sliding Doors, Sprinkler Metered
Fencing
Cross Fenced
Fireplace YN
false
Flood Zone Code
AE
Flood Zone Date
2026-01-01
Flood Zone Panel
12057C0167J
Floor Number
2
Flooring
Luxury Vinyl, Tile
Foundation Details
Block, Slab
Furnished
Negotiable
Garage Spaces
2
Garage YN
true
Green Energy Efficient
HVAC, Lighting, Pool, Roof
Green Energy Generation
Solar
Heating
Central
High School
Alonso-HB
Home Warranty YN
false
Homestead YN
1
Interior Features
Ceiling Fans(s), Eat-in Kitchen, High Ceilings, Kitchen/Family Room Combo, Living Room/Dining Room Combo, Open Floorplan, Solid Wood Cabinets, Stone Counters, Thermostat, Walk-In Closet(s)
Internet Address Display YN
true
Internet Automated Valuation Display YN
false
Internet Consumer Comment YN
false
Internet Entire Listing Display YN
true
Laundry Features
Laundry Room
Levels
Two
List AOR
Suncoast Tampa
Living Area Meters
273.51
Living Area Source
Appraiser
Living Area Units
Square Feet
Lot Features
Landscaped, Sidewalk
Lot Size Acres
0.21
Lot Size Dimensions
55x170
Lot Size Square Feet
9350
Lot Size Square Meters
869
Middle Or Junior School
Farnell-HB
Minimum Lease
No Minimum
Modification Timestamp
2026-04-22T00:45:09.232Z
Monthly HOA Amount
56.00
New Construction YN
false
Occupant Type
Owner
Other Equipment
Irrigation Equipment
Ownership
Fee Simple
Parcel Number
U-20-28-17-5X7-000000-00098.0
Patio And Porch Features
Enclosed, Screened
Pet Restrictions
Buyer to verify breed restrictions with HOA
Pets Allowed
Breed Restrictions
Pool Private YN
true
Postal Code Plus 4
6286
Previous List Price
650000
Price Change Timestamp
2026-04-22T00:44:45.000Z
Public Survey Range
17
Public Survey Section
20
RATIO Current Price By Calculated SqFt
217.39
Realtor Info
As-Is
Road Surface Type
Asphalt
Roof
Shingle
Room Count
4
SW Subdiv Community Name
Not Applicable
Senior Community YN
false
Sewer
Public Sewer
Showing Requirements
24 Hour Notice, Other, See Remarks
Spa Features
In Ground, Swim Spa
Status Change Timestamp
2026-01-30T20:32:42.000Z
Stories Total
2
Tax Annual Amount
8571
Tax Book Number
91-96
Tax Legal Description
COUNTRY CHASE LOT 98
Tax Lot
98
Tax Year
2025
Total Acreage
0 to less than 1/4
Total Annual Fees
672.00
Total Monthly Fees
56.00
Township
28
Universal Property Id
US-12057-N-20281757000000000980-R-N
Unparsed Address
12402 RUSTIC VIEW CT
Utilities
BB/HS Internet Available, Cable Available, Electricity Connected, Fiber Optics, Phone Available, Sewer Connected, Sprinkler Meter
Waterfront YN
false
Window Features
Shutters
Zoning
PD
Neighborhood Map
Popup

Property Photos
Listing Photo
Listing Photo
Listing Photo
Listing Photo
Listing Photo
Listing Photo
Listing Photo
Listing Photo
Listing Photo
Listing Photo
Listing Photo
Listing Photo
Listing Photo
Listing Photo
Listing Photo
Listing Photo
Listing Photo
Listing Photo
Listing Photo
Listing Photo
Listing Photo
Listing Photo
Listing Photo
Listing Photo
Listing Photo
Listing Photo
Listing Photo
Listing Photo
Listing Photo
Listing Photo
Listing Photo
Listing Photo
Listing Photo
Listing Photo
Listing Photo
Listing Photo
Listing Photo
Listing Photo
Listing Photo
Listing Photo
Listing Photo
Listing Photo
Listing Photo
Listing Photo
Listing Photo
Listing Photo
Listing Photo
Listing Photo
Listing Photo
Listing Photo
Listing Photo
Listing Photo
Listing Photo
Listing Photo
Listing Photo
Listing Photo
Listing Photo
Listing Photo
Listing Photo
Listing Photo
Listing Photo
Listing Photo
Listing Photo
Listing Photo
Listing Photo
Listing Photo
Listing Photo
Listing Photo
Listing Photo
Listing Photo

MLS #MFRTB8469524 Listing courtesy of Future Home Realty Inc provided by Stellar MLS.

Similar Listings

$579,900
1302 S Pine Lake Drive
Tampa
4BR/2BA
| Active
$580,000
2924 W Chestnut Street
Tampa
4BR/2BA
| Pending
$580,000
2928 W Chestnut Street
Tampa
4BR/2BA
| Active
$580,000
212 W 131st Avenue
Tampa
4BR/2BA
| Active



All listing information is deemed reliable but not guaranteed and should be independently verified through personal inspection by appropriate professionals. Listings displayed on this website may be subject to prior sale or removal from sale; availability of any listing should always be independent verified. Listing information is provided for consumer personal, non-commercial use, solely to identify potential properties for potential purchase; all other use is strictly prohibited and may violate relevant federal and state law. The source of the listing data is as follows: Stellar MLS (updated 4/25/26 1:59 AM) |

Listing Search



Translate Tool

Featured Listings
Daytona Beach Real Estate
$899,000
4 BED
2 BATH
This isn't just a house; it's a meticulously maintained estate designed for those who appreciate the finer things--and t... Read More
Indian Rocks Beach Real Estate
$995,000
2 BED
2 BATH
Completely Renovated Direct Beachfront Corner Unit — Reflections on the Gulf, Indian Rocks Beach. Experience turnkey bea... Read More
Orlando Real Estate
$935,742
5 BED
4 BATH
Under Construction. The CARDINAL model offers 5 bedrooms, 4 Bathrooms, a Loft, and a 3-car garage. This stunning single-... Read More
Orlando Real Estate
$831,911
4 BED
3 BATH
One or more photo(s) has been virtually staged. Under Construction. Welcome to this beautifully designed 4-bedroom, 3-ba... Read More
Orlando Real Estate
$888,962
3 BED
2 BATH
One or more photo(s) has been virtually staged. Under Construction. Welcome to this beautifully designed BELLWOOD 3 bedr... Read More
Tampa Real Estate
$850,000
4 BED
2 BATH
Absolute TURNKEY POOL home that has recently been RENOVATED! The RESERVE AT CARROLLWOOD is a quaint GATED neighborhood o... Read More
Newberry Real Estate
$1,098,067
5 BED
3 BATH
Welcome to a rare opportunity in Lakota, an exclusive, sold-out gated enclave of just 15 homesites where privacy, nature... Read More
Clermont Real Estate
$920,000
4 BED
2 BATH
This remodeled lakefront home in Clermont has everything you’re looking for and more. Inside, no detail was overlooked. ... Read More
Treasure Island Real Estate
$815,000
2 BED
2 BATH
Waterfront views, coastal elegance, and resort-style living come together in this beautifully updated condo at Lands End... Read More
Lakeland Real Estate
$1,295,000
5 BED
3 BATH
Welcome to 6538 Eagle View Loop, an exceptional 5-bedroom, 3-bath luxury pool home nestled within the gated golf communi... Read More
Contact Sandra Pardo

407-990-2746

Wendy Morris LLC

Licensed in the State of Florida
BK 3146762
16797 Broadwater Avenue
Winter Garden, Florida 34787

Your privacy is our utmost concern. We will never sell your personal information. Privacy Policy
©2026 sandrapardohomes.com - all rights reserved. | Site Map