407-990-2746
Menu

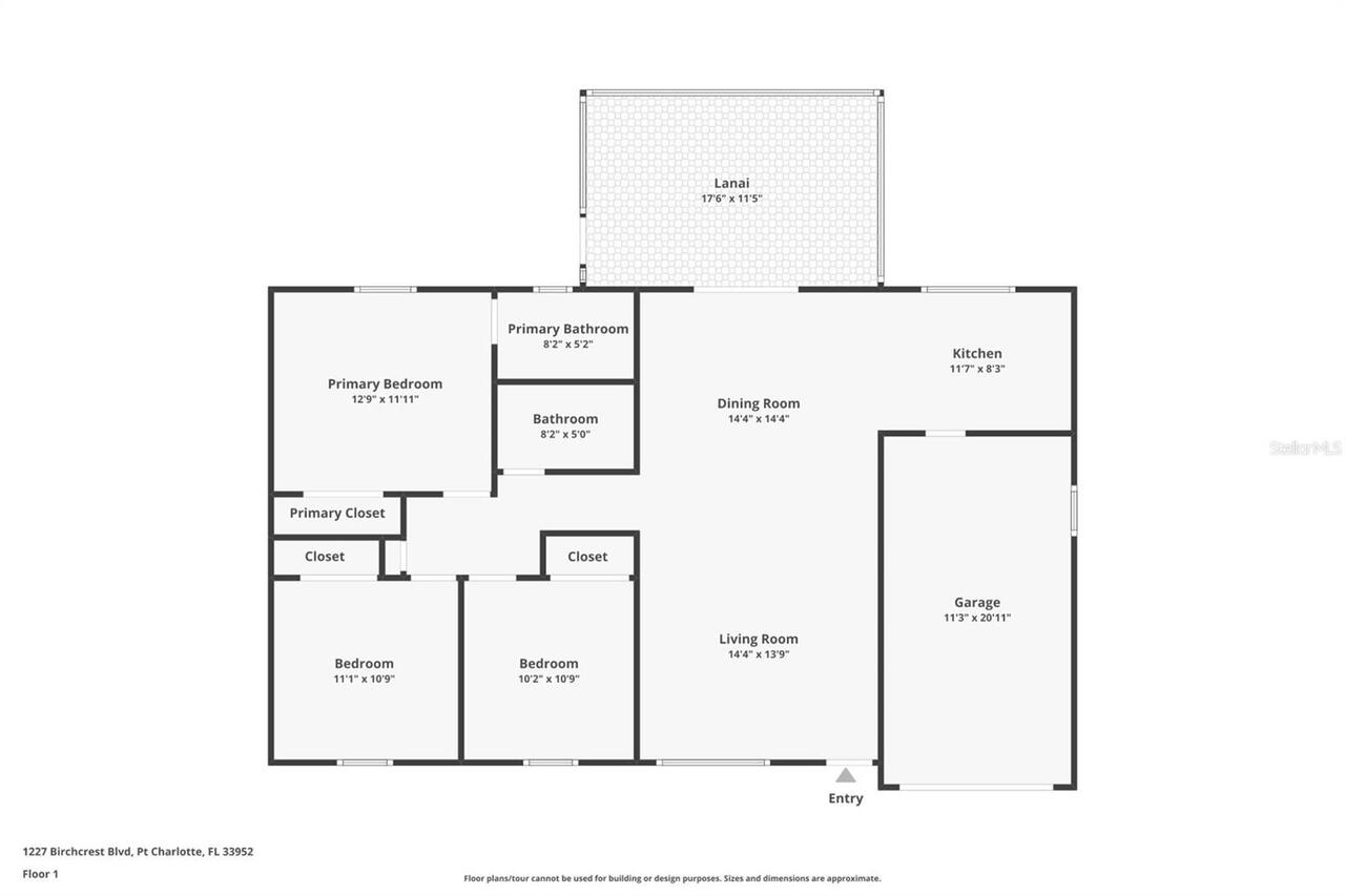
1227 Birchcrest Boulevard, Port Charlotte, FL

NEXT
PREV
$233,900

($212/sqft)

List Status: Active
1227 Birchcrest Boulevard
Port Charlotte, FL 33952


3 beds
2 baths
1104 living sqft
Top Features
  • Subdivision: Port Charlotte Sec 027
  • Built in  1987
  • Single Family Residence
Description
Home Warranty Included!! Inviting 3 bedroom, 2 bath home designed for relaxed Florida living. Located in a desirable Non Flood Zone (X) area near Peachland Blvd- you won't need to worry about extra insurances costs! This well-maintained residence features a one-car garage with screened front entry, tile flooring throughout, and a kitchen appointed with stainless steel appliances. Enjoy indoor-outdoor living from the spacious screened lanai overlooking the backyard and above-ground spa—ideal for unwinding or entertaining. Additional upgrades include an 8' x 10' storage shed with electricity, hurricane shutters, and a newer roof installed in 2023. A home warranty has just recently been purchased. Seller is offering to extend the warranty coverage an additional year for the buyer, offering added peace of mind! Centrally located, the home is close to everything - hospitals, restaurants, entertainment, shopping and easy access to both I75 and Hwy 41 (Tamiami Trl). Seller is ready to move-bring all offers!
Property Details
Additional Information
Additional Parcels YN
false
Appliances
Cooktop, Dishwasher, Dryer, Electric Water Heater, Range, Refrigerator, Washer
Architectural Style
Florida
Association YN
false
Attached Garage YN
true
Available For Lease YN
1
Bathrooms Total Integer
2
Building Area Source
Public Records
Building Area Total
1689
Building Area Total Srch SqM
156.91
Building Area Units
Square Feet
Calculated List Price By Calculated SqFt
211.87
Carport YN
false
Construction Materials
Stucco, Frame
Cooling
Central Air
Country
US
Cumulative Days On Market
111
Current Price
233900.00
Direction Faces
East
Disaster Mitigation
Above Flood Plain, Hurricane Shutters/Windows
Elementary School
Neil Armstrong Elementary
Exterior Features
Hurricane Shutters, Private Yard, Sliding Doors
Fireplace YN
false
Flood Zone Code
X
Flood Zone Date
2003-05-05
Flood Zone Panel
12015C0064F
Flooring
Tile
Foundation Details
Slab
Furnished
Negotiable
Garage Dimensions
14X22
Garage Spaces
1
Garage YN
true
Heating
Central
High School
Port Charlotte High
Home Warranty YN
true
Homestead YN
1
Interior Features
Ceiling Fans(s), Kitchen/Family Room Combo, Living Room/Dining Room Combo, Open Floorplan, Primary Bedroom Main Floor, Solid Surface Counters, Thermostat, Window Treatments
Internet Address Display YN
true
Internet Automated Valuation Display YN
true
Internet Consumer Comment YN
true
Internet Entire Listing Display YN
true
Laundry Features
In Garage
Levels
One
List AOR
Port Charlotte
Living Area Meters
102.56
Living Area Source
Public Records
Living Area Units
Square Feet
Lot Features
Level
Lot Size Acres
0.25
Lot Size Square Feet
10916
Lot Size Square Meters
1014
Middle Or Junior School
Port Charlotte Middle
Minimum Lease
No Minimum
Modification Timestamp
2026-05-07T17:09:10.868Z
New Construction YN
false
Number Of Septics
1
Occupant Type
Owner
Other Equipment
Private Yard
Other Structures
Shed(s)
Ownership
Fee Simple
Parcel Number
0030618-000000-1
Patio And Porch Features
Covered, Enclosed, Front Porch, Patio, Porch, Rear Porch, Screened
Pets Allowed
Yes
Pool Private YN
false
Postal Code Plus 4
1649
Previous List Price
248100
Price Change Timestamp
2026-02-24T18:06:21.000Z
Property Attached YN
false
Public Survey Range
22E
Public Survey Section
10
RATIO Current Price By Calculated SqFt
211.87
Realtor Info
As-Is, Docs Available, Owner Motivated, See Attachments, Sign
Road Responsibility
Public Maintained Road
Road Surface Type
Paved
Roof
Shingle
Room Count
9
SW Subdiv Community Name
Port Charlotte
Security Features
Security System Owned
Senior Community YN
false
Sewer
Septic Tank
Showing Requirements
Supra Lock Box, Appointment Only, Lock Box Electronic, See Remarks, ShowingTime
Spa Features
Above Ground
Spa YN
true
Status Change Timestamp
2026-01-16T18:17:09.000Z
Tax Annual Amount
2248
Tax Block
1441
Tax Book Number
1455-255
Tax Legal Description
PCH 027 1441 0010 PORT CHARLOTTE SEC27 BLK1441 LT 10 233/544 791/951 884/1023 884/1029 911/2017 CT1490/483 1564/1815 1585/1629 3468/598
Tax Lot
10
Tax Year
2025
Total Acreage
1/4 to less than 1/2
Total Annual Fees
0.00
Total Monthly Fees
0.00
Township
40S
Universal Property Id
US-12015-N-00306180000001-R-N
Unparsed Address
1227 BIRCHCREST BLVD
Utilities
Cable Connected, Electricity Connected, Phone Available
Water Source
Public
Waterfront YN
false
Window Features
Shutters
Zoning
RSF3.5
Zoning Compatible YN
1
Neighborhood Map
Popup

Property Photos
Listing Photo
Listing Photo
Listing Photo
Listing Photo
Listing Photo
Listing Photo
Listing Photo
Listing Photo
Listing Photo
Listing Photo
Listing Photo
Listing Photo
Listing Photo
Listing Photo
Listing Photo
Listing Photo
Listing Photo
Listing Photo
Listing Photo
Listing Photo
Listing Photo
Listing Photo
Listing Photo
Listing Photo
Listing Photo
Listing Photo
Listing Photo
Listing Photo
Listing Photo
Listing Photo
Listing Photo
Listing Photo
Listing Photo
Listing Photo
Listing Photo
Listing Photo
Listing Photo
Listing Photo
Listing Photo
Listing Photo
Listing Photo
Listing Photo
Listing Photo
Listing Photo
Listing Photo
Listing Photo
Listing Photo
Listing Photo
Listing Photo
Listing Photo
Listing Photo
Listing Photo
Listing Photo
Listing Photo
Listing Photo
Listing Photo
Listing Photo
Listing Photo
Listing Photo
Listing Photo
Listing Photo
Listing Photo

MLS #MFRC7519682 Listing courtesy of Re/max Palm Realty provided by Stellar MLS.

Similar Listings

$213,900
325 Capatola St
Port Charlotte
3BR/2BA
| Active
$215,000
18461 Burkholder Circle
Port Charlotte
3BR/2BA
| Active
$217,300
20338 Xita Avenue
Port Charlotte
3BR/2BA
| Active
$219,900
3112 Club Drive
Port Charlotte
3BR/2BA
| Active



All listing information is deemed reliable but not guaranteed and should be independently verified through personal inspection by appropriate professionals. Listings displayed on this website may be subject to prior sale or removal from sale; availability of any listing should always be independent verified. Listing information is provided for consumer personal, non-commercial use, solely to identify potential properties for potential purchase; all other use is strictly prohibited and may violate relevant federal and state law. The source of the listing data is as follows: Stellar MLS (updated 5/13/26 8:00 AM) |

Listing Search



Translate Tool

Featured Listings
St Petersburg Real Estate
$1,250,000
5 BED
4 BATH
Nestled in the heart of the charming and historic Roser Park neighborhood, this exceptional 2018-built residence blends ... Read More
Orlando Real Estate
$925,000
5 BED
3 BATH
One or more photo(s) has been virtually staged. Welcome to an elegant contemporary residence located in the heart of Orl... Read More
Port Charlotte Real Estate
$1,142,222
3 BED
2 BATH
Located on a premium waterfront lot in South Gulf Cove, this meticulously maintained home is packed with upgrades and de... Read More
St Petersburg Real Estate
$1,200,000
3 BED
2 BATH
Completely redesigned and beautifully renovated, this charming bungalow seamlessly blends modern luxury with the timeles... Read More
St Pete Beach Real Estate
$1,119,000
3 BED
3 BATH
Positioned high and dry at the front of the neighborhood, this move-in-ready island residence has experienced ZERO FLOOD... Read More
Ocala Real Estate
$1,379,000
5 BED
3 BATH
Experience unparalleled luxury, sophistication, and modern convenience in this extensively renovated estate located with... Read More
Orlando Real Estate
$1,450,000
7 BED
5 BATH
Welcome to your dream home in Ruby Lake, the crown jewel of Dr. Phillips! This exquisite 7-bedroom, 5-bath luxury retrea... Read More
Bradenton Real Estate
$895,000
3 BED
3 BATH
Located in beautiful Lakewood Ranch, this exceptional home in Country Club East offers luxury living with 3 bedrooms, 3 ... Read More
Venice Real Estate
$950,000
2 BED
2 BATH
Under contract-accepting backup offers. This exceptional, turn-key furnished (with some exclusions) 8th-floor condo in t... Read More
Windermere Real Estate
$979,999
4 BED
3 BATH
Come live in paradise!! Minutes from the Magic Kingdom with amazing fireworks view from front porch and private pool. Th... Read More
Contact Sandra Pardo

407-990-2746

Wendy Morris LLC

Licensed in the State of Florida
BK 3146762
16797 Broadwater Avenue
Winter Garden, Florida 34787

Your privacy is our utmost concern. We will never sell your personal information. Privacy Policy
©2026 sandrapardohomes.com - all rights reserved. | Site Map