407-990-2746
Menu

11945 74th Avenue, Seminole, FL

NEXT
PREV
$994,990

($512/sqft)

List Status: Active
11945 74th Avenue
Seminole, FL 33772


3 beds
2 baths
1945 living sqft
Top Features
  • Subdivision: See Public Records
  • Built in  1987
  • Single Family Residence
Description
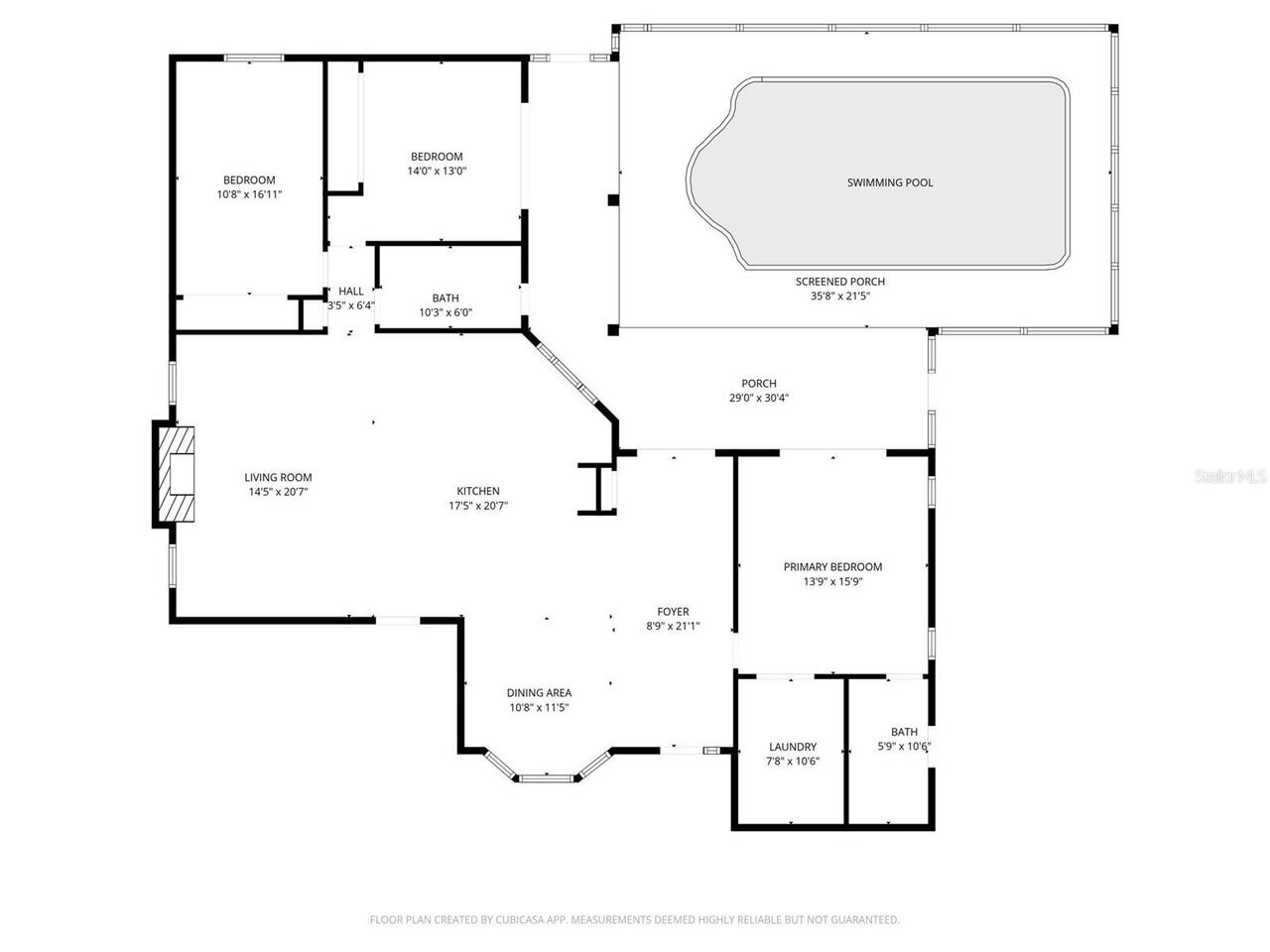
NEW PRICE!!! Come take a look at this Totally Remodeled Seminole Stunner on Nearly an Acre—Non-Flood Zone! Welcome to the unicorn you’ve been waiting for: a fully remodeled 3-bedroom, 2-bath home with over 3,000 square foot under roof, perfectly positioned on nearly an acre in desirable Seminole, FL—and yes, it’s in a non-flood zone. Nearly 2000 square foot of finished space, style, and location all checked. Step inside and prepare to fall in love with the chef’s kitchen designed to impress even the pickiest foodie. Featuring a custom natural gas range, custom cabinetry, panel refrigerator, double drawer refrigerator, built-in ice machine, and soaring vaulted ceilings, this kitchen is ready for dinner parties, holidays, or midnight snacks done right. The entire home has been thoughtfully updated, including two beautifully renovated bathrooms, highlighted by a custom tiled roll-in shower in the primary suite and striking hand-laid brick wall accents that bring serious character. Major upgrades mean peace of mind: metal roof, hurricane-impact rated windows and doors, and a tankless water heater—because hot water should never be optional. Outside is your private Florida retreat. Enjoy a remodeled pool with new pavers and screened cage, perfect for year-round enjoyment. The fully enclosed vinyl-fenced backyard offers privacy, while multiple metal outbuildings and storage structures provide endless flexibility for hobbies, tools, toys, or all three. Location? Nailed it. Just minutes from Millennium Park, Seminole City Park, and Seminole City Center Mall, less than 10 minutes to some of the highest-rated beaches in the U.S., and under 30 minutes to Tampa International Airport. Close to everything—yet tucked away enough to feel like your own private oasis. Remodeled. Spacious. Storm-ready. Beach-close. This one doesn’t just check boxes—it redraws them.
Property Details
Additional Information
Additional Lease Restrictions
See City/county rules and regs regarding lease restrictions, if any.
Additional Parcels YN
false
Alternate Key Folio Num
283015000003100100
Appliances
Dishwasher, Disposal, Dryer, Electric Water Heater, Ice Maker, Microwave, Range, Refrigerator, Washer, Wine Refrigerator
Approval Process
See City/county rules and regs regarding approval process, if any.
Association YN
false
Attached Garage YN
true
Available For Lease YN
1
Bathrooms Total Integer
2
Building Area Source
Public Records
Building Area Total
3067
Building Area Total Srch SqM
284.93
Building Area Units
Square Feet
Calculated List Price By Calculated SqFt
511.56
Carport YN
false
Construction Materials
Block, Stucco
Cooling
Central Air, Mini-Split Unit(s), Zoned
Country
US
Cumulative Days On Market
89
Current Price
994990.00
Direction Faces
South
Disaster Mitigation
Above Flood Plain
Exterior Features
Private Yard, Storage
Fencing
Vinyl
Fireplace Features
Family Room
Fireplace YN
true
Flood Zone Code
X
Flood Zone Date
2021-08-24
Flood Zone Panel
12103C0183H
Flooring
Ceramic Tile
Foundation Details
Slab
Furnished
Negotiable
Garage Dimensions
21x24
Garage Spaces
2
Garage YN
true
Green Energy Efficient
HVAC, Windows
Heating
Central, Electric
Homestead YN
1
Interior Features
Cathedral Ceiling(s), Ceiling Fans(s), High Ceilings, Open Floorplan, Solid Surface Counters, Solid Wood Cabinets, Split Bedroom, Walk-In Closet(s)
Internet Address Display YN
true
Internet Automated Valuation Display YN
true
Internet Consumer Comment YN
true
Internet Entire Listing Display YN
true
Laundry Features
In Garage, Inside, Laundry Room, Other
Levels
One
List AOR
Suncoast Tampa
Living Area Meters
180.70
Living Area Source
Public Records
Living Area Units
Square Feet
Lot Size Acres
0.97
Lot Size Dimensions
176x240
Lot Size Square Feet
42275
Lot Size Square Meters
3927
Minimum Lease
1-7 Days
Modification Timestamp
2026-04-22T16:25:09.438Z
New Construction YN
false
Num Times per Year
365
Number Of Pets
10+
Occupant Type
Owner
Other Equipment
Private Yard
Ownership
Fee Simple
Parcel Number
28-30-15-00000-310-0100
Pet Restrictions
See city/county rule and regs regarding pet restrictions, if any
Pet Size
Extra Large (101+ Lbs.)
Pets Allowed
Yes
Pool Dimensions
16x30
Pool Private YN
true
Postal Code Plus 4
5032
Previous List Price
999990
Price Change Timestamp
2026-04-04T14:24:17.000Z
Public Survey Range
15
Public Survey Section
28
RATIO Current Price By Calculated SqFt
511.56
Realtor Info
As-Is
Road Responsibility
Public Maintained Road
Road Surface Type
Asphalt
Roof
Metal
Room Count
5
Senior Community YN
false
Sewer
Public Sewer
Showing Requirements
Appointment Only, Call Listing Agent, Other, See Remarks, ShowingTime
Spa YN
false
Status Change Timestamp
2026-01-24T03:58:40.000Z
Stories Total
1
Tax Annual Amount
5254.45
Tax Book Number
27-31
Tax Legal Description
S 273FT OF E 176FT OF NE 1/4 OF SW 1/4 SEC 28-30-15 LESS RD ON S
Tax Year
2024
Total Acreage
1/2 to less than 1
Total Annual Fees
0.00
Total Monthly Fees
0.00
Township
30
Universal Property Id
US-12103-N-283015000003100100-R-N
Unparsed Address
11945 74TH AVE
Utilities
Electricity Connected, Natural Gas Connected, Public, Sewer Connected, Water Connected
Water Source
Public
Waterfront YN
false
Window Features
Double Pane Windows, Insulated Windows, Storm Window(s)
Neighborhood Map
Popup

Property Photos
Listing Photo
Listing Photo
Listing Photo
Listing Photo
Listing Photo
Listing Photo
Listing Photo
Listing Photo
Listing Photo
Listing Photo
Listing Photo
Listing Photo
Listing Photo
Listing Photo
Listing Photo
Listing Photo
Listing Photo
Listing Photo
Listing Photo
Listing Photo
Listing Photo
Listing Photo
Listing Photo
Listing Photo
Listing Photo
Listing Photo
Listing Photo
Listing Photo
Listing Photo
Listing Photo
Listing Photo
Listing Photo
Listing Photo
Listing Photo
Listing Photo
Listing Photo
Listing Photo
Listing Photo
Listing Photo
Listing Photo
Listing Photo
Listing Photo
Listing Photo
Listing Photo
Listing Photo
Listing Photo
Listing Photo
Listing Photo
Listing Photo
Listing Photo
Listing Photo
Listing Photo
Listing Photo
Listing Photo
Listing Photo
Listing Photo
Listing Photo
Listing Photo
Listing Photo
Listing Photo
Listing Photo
Listing Photo
Listing Photo
Listing Photo
Listing Photo
Listing Photo
Listing Photo
Listing Photo
Listing Photo
Listing Photo
Listing Photo
Listing Photo
Listing Photo
Listing Photo
Listing Photo
Listing Photo
Listing Photo
Listing Photo
Listing Photo
Listing Photo
Listing Photo
Listing Photo
Listing Photo
Listing Photo
Listing Photo
Listing Photo
Listing Photo
Listing Photo
Listing Photo
Listing Photo
Listing Photo
Listing Photo
Listing Photo
Listing Photo
Listing Photo
Listing Photo

MLS #MFRTB8468437 Listing courtesy of Florida Coastal Rlty & Inv. provided by Stellar MLS.

Similar Listings

$959,000
13222 98th Avenue
Seminole
3BR/2BA
| Active
$970,000
7279 Maidencane Court
Seminole
3BR/2BA
| Active
$974,900
13785 Oak Forest S Boulevard
Seminole
3BR/2BA
| Active
$998,000
9996 Key Haven Road
Seminole
3BR/2BA
| Active



All listing information is deemed reliable but not guaranteed and should be independently verified through personal inspection by appropriate professionals. Listings displayed on this website may be subject to prior sale or removal from sale; availability of any listing should always be independent verified. Listing information is provided for consumer personal, non-commercial use, solely to identify potential properties for potential purchase; all other use is strictly prohibited and may violate relevant federal and state law. The source of the listing data is as follows: Stellar MLS (updated 4/27/26 5:05 PM) |

Listing Search



Translate Tool

Featured Listings
Lithia Real Estate
$1,299,900
5 BED
4 BATH
Oversized lot. Gated community. Pool + spa. Outdoor kitchen. 5 Bedrooms + Home Office + Bonus Room. Whole house generato... Read More
Sarasota Real Estate
$1,000,000
4 BED
3 BATH
Nestled within the sought-after gated community of Waverley, this immaculate 4-bedroom + den, 3-bath, 3-car garage resid... Read More
Tampa Real Estate
$1,100,000
5 BED
4 BATH
Welcome to 14320 Avon Farms Drive in Tampa, Florida — a beautifully maintained home offering the perfect blend of space,... Read More
Lakewood Ranch Real Estate
$829,000
3 BED
3 BATH
Rare Phase 3 Sanctuary residence in the gated Watercrest community of Lakewood Ranch, offering nearly 2,500 square feet ... Read More
Groveland Real Estate
$899,900
4 BED
2 BATH
You found it!!! A slice of heaven in the country!  Enjoy lakefront living on a stunning 420-acre private, skiable lake w... Read More
Osprey Real Estate
$1,289,000
3 BED
3 BATH
This beautifully remodeled waterfront condo in Osprey, Florida offers the perfect blend of luxury, comfort, and coastal ... Read More
Bradenton Real Estate
$899,999
3 BED
3 BATH
These sellers have purchased another home. This is a three-bedroom, three-bathroom, plus den, canal front home with a 10... Read More
Winter Park Real Estate
$925,000
4 BED
2 BATH
Rare opportunity to own an established daycare operating from two structures on the same parcel, offered together with t... Read More
Reunion Real Estate
$899,000
6 BED
4 BATH
Luxurious 6 Bedroom 4 Bath TURNKEY Vacation Retreat located in the highly sought after Community of Homestead at Reunion... Read More
Sarasota Real Estate
$800,000
3 BED
3 BATH
Under contract-accepting backup offers. Are you dreaming of the ideal uptown location close to everything Sarasota, with... Read More
Contact Sandra Pardo

407-990-2746

Wendy Morris LLC

Licensed in the State of Florida
BK 3146762
16797 Broadwater Avenue
Winter Garden, Florida 34787

Your privacy is our utmost concern. We will never sell your personal information. Privacy Policy
©2026 sandrapardohomes.com - all rights reserved. | Site Map