407-990-2746
Menu

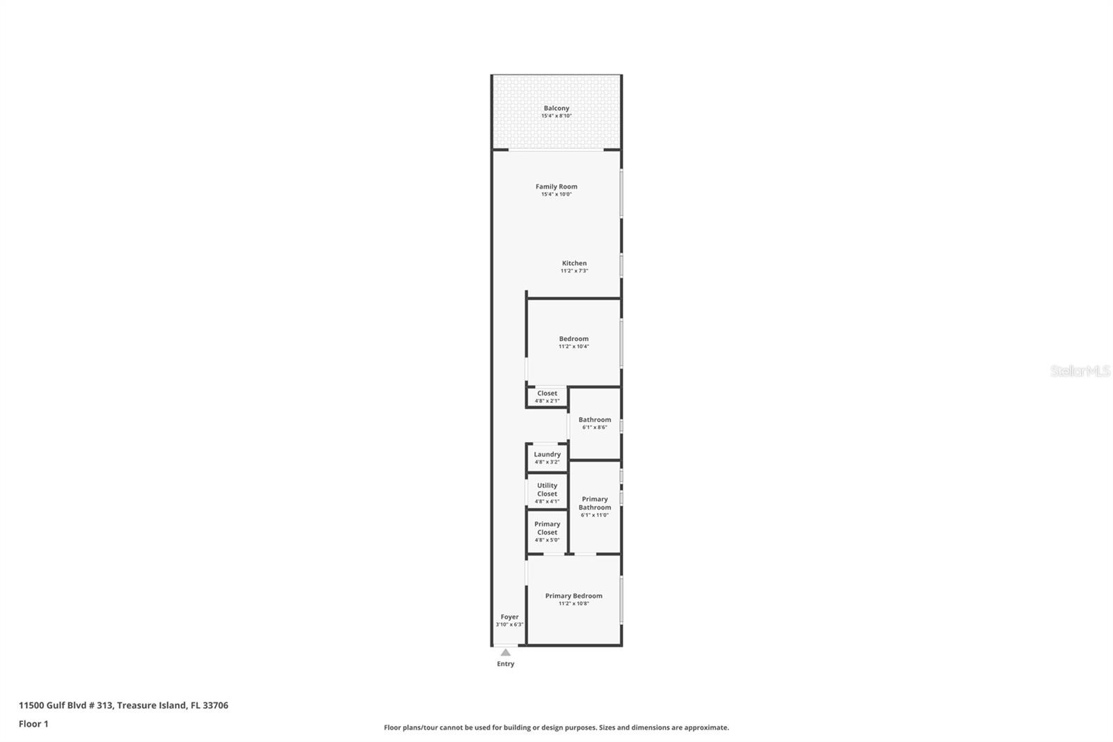
11500 Gulf Boulevard Unit: Unit: 313, Treasure Island, FL

NEXT
PREV
$1,069,000

($1,059/sqft)

List Status: Active
11500 Gulf Boulevard
Treasure Island, FL 33706


2 beds
2 baths
1009 living sqft
Top Features
  • View: Water
  • Subdivision: Ocean Club Treasure Island A Resort Cond
  • Built in  2023
  • Condo - Hotel
Description
HIGH OCCUPANCY 94% in 2025 & INCOME GENERATING NIGHTLY RENTAL- This is your chance to own a LUXURY HOTEL SUITE at Ocean Club on Treasure Island. This 2-bedroom, 2-bathroom residence with just over 1000 heated square feet is your chance to own a prime piece of paradise with superior views, privacy, and value. Positioned on the 3rd Floor, this CORNER UNIT delivers unobstructed GULF AND BEACH VIEWS. Awesome direct sightlines to Treasure Island’s expansive beach. This is a rare opportunity to own one of the CORNER UNITS with extra windows and more natural light. This is also the only unit in the entire building with shutters installed in the living room area for added privacy. Located in the heart of Treasure Island Beach Trail, Ocean Club provides direct access to biking, walking, and beach activities, all without crossing a single street. The amenities are second to none, featuring an expansive resort pool and oversized hot tub, a state-of-the-art fitness center, a private sandy beach area and volleyball court, a rooftop terrace and bar area that functions as a beachfront casual food and sports bar, ample covered and open parking with a garage spot included with purchase, a 24-hour concierge, and an onsite proven rental and housekeeping management team. This turnkey unit comes FULLY FURNISHED, including impact glass windows, a deep private terrace, premium appliances, full-size washer & dryer, kitchenware, and stylish decor- everything you need for a seamless transition into beachfront ownership. Enjoy up to 30 consecutive days of personal use as a unit owner! Unlike many beachfront rental properties, Ocean Club’s onsite rental program offers industry-leading flexibility, giving owners the best of both worlds. Lucrative rental income potential and generous personal-use allowances. Pet-friendly and rental-friendly, you can choose any rental management company, but we highly recommend the onsite team, boasting one of the lowest on-site management fees in the area at jus
Property Details
Additional Information
Additional Lease Restrictions
Nightly hotel rental. No resort units may be occupied by their owners OR guests for more than a total of 31 consecutive days or one calendar month, whichever is less.
Additional Parcels YN
false
Alternate Key Folio Num
233115637260000313
Appliances
Dishwasher, Dryer, Electric Water Heater, Microwave, Range, Refrigerator, Washer
Association Amenities
Elevator(s), Fitness Center, Pool, Spa/Hot Tub
Association Email
phillip@condomanagementplus.com
Association Fee
792
Association Fee Frequency
Monthly
Association Fee Includes
Cable TV, Insurance, Internet, Maintenance Structure, Maintenance Grounds, Maintenance, Pool, Sewer, Trash, Water
Association Fee Requirement
Required
Association YN
true
Attached Garage YN
true
Available For Lease YN
1
Bathrooms Total Integer
2
Building Area Source
Builder
Building Area Total
1009
Building Area Total Srch SqM
93.74
Building Area Units
Square Feet
Building Elevator YN
1
Calculated List Price By Calculated SqFt
1059.46
Carport YN
false
Community Features
Buyer Approval Required
Construction Materials
Block
Cooling
Central Air
Country
US
Cumulative Days On Market
78
Current Price
1069000.00
Direction Faces
East
Exterior Features
Balcony, Lighting, Sliding Doors
Fireplace YN
false
Flood Zone Code
AE
Floor Number
3
Flooring
Tile
Foundation Details
Slab
Furnished
Furnished
Garage Spaces
1
Garage YN
true
Heating
Central
Interior Features
Kitchen/Family Room Combo, Open Floorplan, Window Treatments
Internet Address Display YN
true
Internet Automated Valuation Display YN
true
Internet Consumer Comment YN
true
Internet Entire Listing Display YN
true
Laundry Features
Inside, Laundry Closet
Levels
One
List AOR
Suncoast Tampa
Living Area Meters
93.74
Living Area Source
Builder
Living Area Units
Square Feet
Minimum Lease
1-7 Days
Modification Timestamp
2026-02-04T17:07:18.063Z
Monthly HOA Amount
792.00
New Construction YN
false
Number Of Pets
2
Occupant Type
Tenant
Ownership
Condominium
Parcel Number
23-31-15-63726-000-0313
Pet Restrictions
Pet Friendly Hotel- Allowed up to 2 medium sized dogs up to 20kg. See attached Declaration for more info.
Pet Size
Medium (36-60 Lbs.)
Pets Allowed
Dogs OK, Yes
Pool Private YN
false
Postal Code Plus 4
4646
Previous List Price
1079000
Price Change Timestamp
2026-01-21T17:35:34.000Z
Property Description
Corner Unit
Public Survey Range
15
Public Survey Section
23
RATIO Current Price By Calculated SqFt
1059.46
Realtor Info
As-Is, No Sign, Owner Motivated, Short Term Rental Allowed
Road Surface Type
Paved
Roof
Other
Room Count
3
Senior Community YN
false
Sewer
Public Sewer
Showing Requirements
Appointment Only, Call Manager, See Remarks, ShowingTime
Status Change Timestamp
2025-11-18T20:27:46.000Z
Stories Total
6
Tax Annual Amount
11439.22
Tax Block
1
Tax Book Number
167-1
Tax Legal Description
OCEAN CLUB TREASURE ISLAND, A RESORT CONDO UNIT 313
Tax Lot
313
Tax Year
2024
Total Acreage
Non-Applicable
Total Annual Fees
9504.00
Total Monthly Fees
792.00
Township
31
Universal Property Id
US-12103-N-233115637260000313-S-313
Unparsed Address
11500 GULF BLVD #313
Utilities
Public
Water Access
Beach, Gulf/Ocean
Water Access YN
1
Water Source
Public
Water View
Beach, Gulf/Ocean - Full
Water View YN
1
Waterfront YN
false
Neighborhood Map
Popup

Property Photos
Listing Photo
Listing Photo
Listing Photo
Listing Photo
Listing Photo
Listing Photo
Listing Photo
Listing Photo
Listing Photo
Listing Photo
Listing Photo
Listing Photo
Listing Photo
Listing Photo
Listing Photo
Listing Photo
Listing Photo
Listing Photo
Listing Photo
Listing Photo
Listing Photo
Listing Photo
Listing Photo
Listing Photo
Listing Photo
Listing Photo
Listing Photo
Listing Photo
Listing Photo
Listing Photo
Listing Photo
Listing Photo
Listing Photo
Listing Photo
Listing Photo
Listing Photo
Listing Photo
Listing Photo
Listing Photo
Listing Photo
Listing Photo
Listing Photo
Listing Photo
Listing Photo
Listing Photo
Listing Photo
Listing Photo
Listing Photo
Listing Photo
Listing Photo
Listing Photo
Listing Photo
Listing Photo
Listing Photo
Listing Photo
Listing Photo
Listing Photo
Listing Photo
Listing Photo
Listing Photo
Listing Photo
Listing Photo
Listing Photo
Listing Photo
Listing Photo
Listing Photo
Listing Photo
Listing Photo
Listing Photo
Listing Photo
Listing Photo
Listing Photo
Listing Photo
Listing Photo
Listing Photo
Listing Photo
Listing Photo
Listing Photo
Listing Photo
Listing Photo

MLS #MFRTB8449033 Listing courtesy of Arc Realty Group provided by Stellar MLS.

Similar Listings

$995,000
11800 6th E Street
Treasure Island
2BR/2BA
| Active
$999,000
12000 Gulf Boulevard
Treasure Island
2BR/2BA
| Active
$999,000
11500 Gulf Boulevard
Treasure Island
2BR/2BA
| Active
$1,050,000
7650 Bayshore Drive
Treasure Island
2BR/2BA
| Active



All listing information is deemed reliable but not guaranteed and should be independently verified through personal inspection by appropriate professionals. Listings displayed on this website may be subject to prior sale or removal from sale; availability of any listing should always be independent verified. Listing information is provided for consumer personal, non-commercial use, solely to identify potential properties for potential purchase; all other use is strictly prohibited and may violate relevant federal and state law. The source of the listing data is as follows: Stellar MLS (updated 2/20/26 2:32 PM) |

Listing Search



Translate Tool

Featured Listings
Cortez Real Estate
$1,100,000
3 BED
2 BATH
Welcome to 4349 Marina View Way, a home that exudes elegance and sophistication. The heart of this home is the kitchen, ... Read More
Sanford Real Estate
$1,150,000
4 BED
3 BATH
Welcome to this stunningly renovated home on a pristine 2/3-acre waterfront lot on the St. John’s River. Complete with 1... Read More
Sarasota Real Estate
$1,195,000
3 BED
3 BATH
Why wait for a new build when the craftsmanship, upgrades, and elegance have already been completed? This gorgeous home ... Read More
Tampa Real Estate
$1,429,000
4 BED
4 BATH
Under Construction. Move-in ready February 2026! Discover the perfect blend of modern convenience and timeless design in... Read More
Winter Park Real Estate
$830,000
4 BED
3 BATH
Welcome to this beautifully maintained 4BR, 3.5BA, 3,020 sq.ft. home in the highly desirable Meadows neighborhood of Haw... Read More
St Petersburg Real Estate
$1,039,000
4 BED
3 BATH
Ideally positioned on a corner lot, this 4-bedroom, 3-bath residence offers 2,241 square feet of thoughtfully designed l... Read More
Tampa Real Estate
$1,269,000
4 BED
3 BATH
Under Construction. Move-in ready February 2026! Discover the perfect blend of modern convenience and timeless design in... Read More
Gainesville Real Estate
$1,090,000
4 BED
3 BATH
This exquisite Barry Bullard, former parade home exemplifies style and quality. From the custom made Busby cabinets to t... Read More
Indian Shores Real Estate
$825,000
2 BED
2 BATH
TOES IN THE SAND - END/CORNER UNIT OFFERING BEACHFRONT LIVING WITH PANORAMIC GULF VIEWS IN COVETED INDIAN SHORES, FL | W... Read More
Ruskin Real Estate
$1,275,000
3 BED
2 BATH
Luxurious WATERFRONT home featuring a composite boat dock with lift, additional 32’ floating aluminum dock, and one of t... Read More
Contact Sandra Pardo

407-990-2746

Wendy Morris LLC

Licensed in the State of Florida
BK 3146762
16797 Broadwater Avenue
Winter Garden, Florida 34787

Your privacy is our utmost concern. We will never sell your personal information. Privacy Policy
©2026 sandrapardohomes.com - all rights reserved. | Site Map