407-990-2746
Menu

1120 24th N Avenue, St Petersburg, FL

NEXT
PREV
$1,125,000

($451/sqft)

List Status: Active
1120 24th N Avenue
St Petersburg, FL 33704


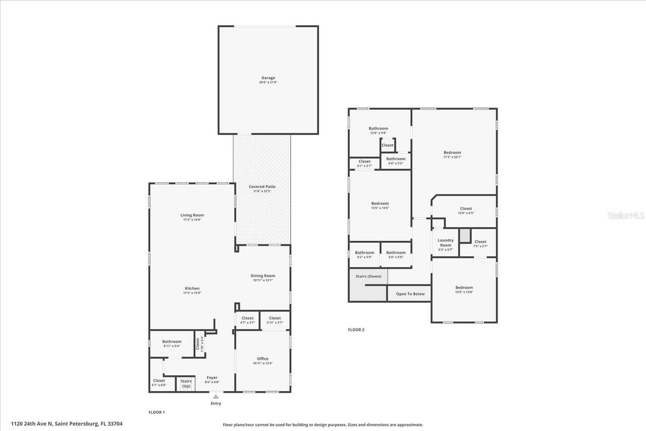
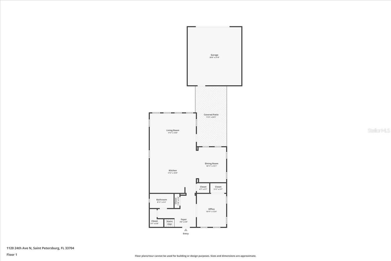
4 beds
3 baths
2496 living sqft
Top Features
  • Subdivision: Woodlawn
  • Built in  2023
  • Single Family Residence
Description
Beautiful 2023 Green Street Homes build in the sought-after Woodlawn neighborhood, just minutes from Crescent Lake Park and only 10 minutes to downtown St. Petersburg. This Energy Star–rated home features block construction on the ground level and has been barely lived in, offering the comfort and efficiency of near-new construction. The upgraded Trane variable Speed Heat Pump as added efficiency. Inside, high ceilings, hardwood floors throughout, and abundant natural light create a bright, open living space designed for both everyday living and entertaining. The kitchen is a true centerpiece, featuring granite countertops, a gas range, stainless steel appliances, under-cabinet lighting, a large center island, and a pantry—perfect for hosting or casual meals at home. The great room flows seamlessly into the dining area, making the layout feel open yet intentional. The home offers four bedrooms and three full bathrooms, including a first-floor bedroom and full bath ideal for guests, a home office, or multigenerational living. Upstairs, the primary suite is a relaxing retreat with a tray ceiling and a spacious en-suite bath featuring a double vanity, soaking tub, and separate shower. Enjoy Florida living with both front and rear porches, plus a backyard with room for a future pool. Ideally located near Trader Joe’s, Fresh Market, Mazzaro’s Italian Market, and some of St. Pete’s most beloved parks and neighborhoods, this home delivers modern design, thoughtful layout, and an exceptional location.
Property Details
Additional Information
Additional Lease Restrictions
Please check with City municipality for leasing information.
Additional Parcels YN
false
Additional Rooms
Great Room, Inside Utility
Alternate Key Folio Num
123116117540060050
Appliances
Dishwasher, Disposal, Dryer, Gas Water Heater, Microwave, Range, Refrigerator, Tankless Water Heater, Washer
Architectural Style
Contemporary
Association YN
false
Attached Garage YN
false
Available For Lease YN
1
Bathrooms Total Integer
3
Building Area Source
Public Records
Building Area Total
3477
Building Area Total Srch SqM
323.02
Building Area Units
Square Feet
Calculated List Price By Calculated SqFt
450.72
Carport YN
false
Construction Materials
Block, Stucco, Frame
Cooling
Central Air, Zoned
Country
US
Cumulative Days On Market
67
Current Price
1125000.00
Direction Faces
North
Exterior Features
Sidewalk
Fencing
Vinyl
Fireplace YN
false
Flood Zone Code
X
Flooring
Wood
Foundation Details
Slab
Furnished
Unfurnished
Garage Spaces
2
Garage YN
true
Heating
Central, Zoned
Homestead YN
1
Interior Features
Ceiling Fans(s), High Ceilings, Open Floorplan, PrimaryBedroom Upstairs, Solid Surface Counters, Stone Counters, Walk-In Closet(s)
Internet Address Display YN
true
Internet Automated Valuation Display YN
true
Internet Consumer Comment YN
false
Internet Entire Listing Display YN
true
Laundry Features
Laundry Closet, Upper Level
Levels
Two
List AOR
Suncoast Tampa
Living Area Meters
231.89
Living Area Source
Public Records
Living Area Units
Square Feet
Lot Features
Oversized Lot, Sidewalk
Lot Size Acres
0.15
Lot Size Dimensions
50x130
Lot Size Square Feet
6499
Lot Size Square Meters
604
Minimum Lease
No Minimum
Modification Timestamp
2026-04-13T21:37:09.468Z
New Construction YN
false
Occupant Type
Vacant
Ownership
Fee Simple
Parcel Number
12-31-16-11754-006-0050
Patio And Porch Features
Covered, Front Porch, Patio, Rear Porch
Pool Private YN
false
Postal Code Plus 4
3245
Previous List Price
1200000
Price Change Timestamp
2026-04-13T21:36:10.000Z
Property Condition
Completed
Public Survey Range
16
Public Survey Section
12
RATIO Current Price By Calculated SqFt
450.72
Realtor Info
As-Is
Road Surface Type
Asphalt
Roof
Shingle
Room Count
7
Senior Community YN
false
Sewer
Public Sewer
Showing Requirements
Appointment Only, Call Listing Agent, Listing Agent Must Accompany
Status Change Timestamp
2026-02-05T18:11:32.000Z
Stories Total
2
Tax Annual Amount
10810.42
Tax Block
F
Tax Book Number
1-34
Tax Legal Description
BROADWAY ADD BLK F, LOT 5
Tax Lot
5
Tax Year
2024
Total Acreage
0 to less than 1/4
Total Annual Fees
0.00
Total Monthly Fees
0.00
Township
31
Universal Property Id
US-12103-N-123116117540060050-R-N
Unparsed Address
1120 24TH AVE N
Utilities
Natural Gas Connected, Sprinkler Well
Water Source
Public
Waterfront YN
false
Neighborhood Map
Popup

Property Photos
Listing Photo
Listing Photo
Listing Photo
Listing Photo
Listing Photo
Listing Photo
Listing Photo
Listing Photo
Listing Photo
Listing Photo
Listing Photo
Listing Photo
Listing Photo
Listing Photo
Listing Photo
Listing Photo
Listing Photo
Listing Photo
Listing Photo
Listing Photo
Listing Photo
Listing Photo
Listing Photo
Listing Photo
Listing Photo
Listing Photo
Listing Photo
Listing Photo
Listing Photo
Listing Photo
Listing Photo
Listing Photo
Listing Photo
Listing Photo
Listing Photo
Listing Photo
Listing Photo
Listing Photo
Listing Photo
Listing Photo
Listing Photo
Listing Photo
Listing Photo
Listing Photo
Listing Photo
Listing Photo
Listing Photo
Listing Photo
Listing Photo
Listing Photo
Listing Photo
Listing Photo
Listing Photo
Listing Photo
Listing Photo
Listing Photo
Listing Photo
Listing Photo
Listing Photo
Listing Photo
Listing Photo
Listing Photo
Listing Photo
Listing Photo
Listing Photo
Listing Photo
Listing Photo
Listing Photo
Listing Photo
Listing Photo
Listing Photo
Listing Photo
Listing Photo
Listing Photo
Listing Photo
Listing Photo
Listing Photo
Listing Photo
Listing Photo
Listing Photo
Listing Photo
Listing Photo

MLS #MFRTB8473003 Listing courtesy of Mc Homes Realty Inc provided by Stellar MLS.

Similar Listings

$1,050,000
2715 9th N Avenue
St Petersburg
4BR/3BA
| Active
$1,074,990
750 50th N Avenue
St Petersburg
4BR/3BA
| Pending
$1,075,000
734 Weedon Ne Drive
St Petersburg
4BR/3BA
| Active
$1,077,000
4160 39th S Street
St Petersburg
4BR/3BA
| Pending



All listing information is deemed reliable but not guaranteed and should be independently verified through personal inspection by appropriate professionals. Listings displayed on this website may be subject to prior sale or removal from sale; availability of any listing should always be independent verified. Listing information is provided for consumer personal, non-commercial use, solely to identify potential properties for potential purchase; all other use is strictly prohibited and may violate relevant federal and state law. The source of the listing data is as follows: Stellar MLS (updated 4/17/26 6:12 PM) |

Listing Search



Translate Tool

Featured Listings
Davenport Real Estate
$840,000
8 BED
6 BATH
Property Highlights: -Full-time owner occupancy. Guests can stay for up to 120 days. -Turnkey: Sold fully furnished with... Read More
Tampa Real Estate
$850,000
3 BED
2 BATH
Situated in one of South Tampa’s most desirable neighborhoods, this beautifully updated 3-bedroom, 2-bath residence with... Read More
Mount Dora Real Estate
$989,000
3 BED
3 BATH
WATER FRONT LAKE HOUSE WITH BOAT HOUSE!!! Here is a Rare opportunity to own on Lake Ola. This stunning waterfront proper... Read More
New Port Richey Real Estate
$829,980
3 BED
2 BATH
Boaters Dream!!! Minutes to the Gulf!!! Private Beach!!! Experience the best of Florida coastal living at 4964 South Sho... Read More
Tampa Real Estate
$975,000
4 BED
3 BATH
Welcome to 11627 Bristol Chase Dr., a rare opportunity to own a stunning pool home on a serene water-view lot in the hig... Read More
Port Charlotte Real Estate
$998,000
3 BED
2 BATH
Under contract-accepting backup offers. Welcome to your dream waterfront retreat in the boating community of South Gulf ... Read More
Clearwater Real Estate
$810,000
4 BED
2 BATH
Rare Opportunity in Country Park: Your Private Florida Oasis Awaits Welcome home to this stunning 4-bedroom, 2-bathroom ... Read More
Tampa Real Estate
$850,000
3 BED
2 BATH
There are homes you just pass by… then ones that make you slow down. Welcome to this one-of-a-kind 1920s Craftsman bunga... Read More
Odessa Real Estate
$843,500
4 BED
3 BATH
A desirable Santa Monica floor plan with POOL is now up for grabs in popular Starkey Ranch in Odessa, FL. This one-of-a-... Read More
Parrish Real Estate
$1,000,000
4 BED
3 BATH
Under contract-accepting backup offers. One or more photo(s) has been virtually staged. Assumable VA Mortgage available ... Read More
Contact Sandra Pardo

407-990-2746

Wendy Morris LLC

Licensed in the State of Florida
BK 3146762
16797 Broadwater Avenue
Winter Garden, Florida 34787

Your privacy is our utmost concern. We will never sell your personal information. Privacy Policy
©2026 sandrapardohomes.com - all rights reserved. | Site Map