407-990-2746
Menu

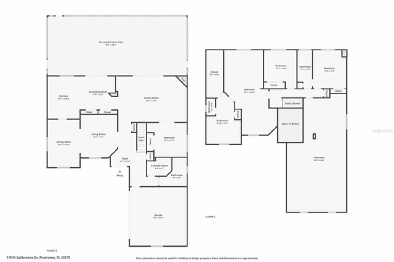
11014 Sailbrooke Drive, Riverview, FL

NEXT
PREV
$565,000

($147/sqft)

List Status: Active
11014 Sailbrooke Drive
Riverview, FL 33579


4 beds
3 baths
3855 living sqft
Top Features
  • View: Water, Garden, Golf Course, Pool
  • Subdivision: Summerfield Village 1 Tr 7
  • Built in  2001
  • Single Family Residence
Description
Updated Price is Firm!, Welcome to 11014 Sailbrooke Dr in Riverview, an impressive 3,855 sq. ft. turnkey pool home offering the perfect balance of space, function, and lifestyle. This 4-bedroom, 3-bath property features a screened lanai with a stunning resort-style pool and hot tub, all set on a paver patio with serene pond views. Inside, the chef’s kitchen is equipped with stone countertops and stainless steel appliances, ideal for both everyday living and entertaining. The home also includes a spacious 2-car garage and an enormous upstairs flex space, perfect for a hobbyist, remote professional, or small business owner seeking a dedicated workspace. Energy-conscious buyers will appreciate the solar panel system, which brings monthly electricity costs down to nearly zero. This home is being sold AS IS and sits in a quiet, well-maintained community with convenient access to shopping, dining, and an easy commute to Tampa International Airport. If you’re looking for a home that delivers both comfort and serious value, this one is ready to go. Schedule your private showing today, this opportunity won’t last.
Property Details
Additional Information
Additional Lease Restrictions
see HOA docs for more information, https://www.oursummerfield.org/association-documents/
Additional Parcels YN
false
Additional Rooms
Great Room
Alternate Key Folio Num
0776817618
Appliances
Dishwasher, Microwave, Range, Refrigerator
Association Fee
135
Association Fee Frequency
Quarterly
Association Fee Requirement
Required
Association URL
https://www.oursummerfield.org/home/
Association YN
true
Attached Garage YN
true
Available For Lease YN
1
Bathrooms Total Integer
3
Building Area Source
Public Records
Building Area Total
4728
Building Area Total Srch SqM
439.25
Building Area Units
Square Feet
Calculated List Price By Calculated SqFt
146.56
Carport YN
false
Construction Materials
Stucco
Cooling
Central Air
Country
US
Cumulative Days On Market
215
Current Price
565000.00
Direction Faces
East
Elementary School
Summerfield Crossing Elementary
Exterior Features
Garden
Fencing
Fenced
Fireplace Features
Living Room
Fireplace YN
true
Flood Zone Code
X
Flood Zone Date
2008-08-28
Flood Zone Panel
12057C0515H
Flooring
Carpet, Other, Tile
Foundation Details
Slab
Garage Spaces
2
Garage YN
true
Green Energy Generation
Solar
Heating
Central, Electric
High School
East Bay-HB
Homestead YN
1
Interior Features
Stone Counters
Internet Address Display YN
true
Internet Automated Valuation Display YN
true
Internet Consumer Comment YN
true
Internet Entire Listing Display YN
true
Laundry Features
Inside
Lease Restrictions YN
1
Levels
Two
List AOR
Sarasota - Manatee
Living Area Meters
358.14
Living Area Source
Public Records
Living Area Units
Square Feet
Lot Size Acres
0.16
Lot Size Dimensions
65.03x107
Lot Size Square Feet
6958
Lot Size Square Meters
646
Minimum Lease
1-2 Years
Modification Timestamp
2026-02-21T19:50:09.143Z
Monthly HOA Amount
45.00
New Construction YN
false
Num Of Own Years Prior To Lease
2
Number Of Pets
2
Occupant Type
Owner
Ownership
Fee Simple
Parcel Number
U-08-31-20-5JV-00000A-00039.0
Pets Allowed
Number Limit, Yes
Pool Private YN
true
Postal Code Plus 4
4036
Previous List Price
575000
Price Change Timestamp
2026-02-21T19:49:52.000Z
Property Attached YN
true
Public Survey Range
20
Public Survey Section
08
RATIO Current Price By Calculated SqFt
146.56
Realtor Info
As-Is
Road Surface Type
Asphalt
Roof
Metal
Room Count
3
Senior Community YN
false
Sewer
Public Sewer
Showing Requirements
24 Hour Notice, Appointment Only
Spa Features
Heated, In Ground
Spa YN
true
Status Change Timestamp
2025-07-21T15:22:48.000Z
Stories Total
2
Tax Annual Amount
9132.58
Tax Block
A
Tax Book Number
87-37
Tax Legal Description
SUMMERFIELD VILLAGE 1 TRACT 7 PH 3A LOT 39 BLOCK A
Tax Lot
39
Tax Year
2024
Total Acreage
0 to less than 1/4
Total Annual Fees
540.00
Total Monthly Fees
45.00
Township
31
Universal Property Id
US-12057-N-083120500000000390-R-N
Unparsed Address
11014 SAILBROOKE DR
Utilities
Electricity Connected, Propane, Public, Sewer Connected, Water Connected
Water Access
Pond
Water Access YN
1
Water Source
Public
Water View
Pond
Water View YN
1
Waterfront YN
false
Years Of Owner Prior To Leasing Req YN
1
Zoning
PD
Neighborhood Map
Popup

Property Photos
Listing Photo
Listing Photo
Listing Photo
Listing Photo
Listing Photo
Listing Photo
Listing Photo
Listing Photo
Listing Photo
Listing Photo
Listing Photo
Listing Photo
Listing Photo
Listing Photo
Listing Photo
Listing Photo
Listing Photo
Listing Photo
Listing Photo
Listing Photo
Listing Photo
Listing Photo
Listing Photo
Listing Photo
Listing Photo
Listing Photo
Listing Photo
Listing Photo
Listing Photo
Listing Photo
Listing Photo
Listing Photo
Listing Photo
Listing Photo
Listing Photo
Listing Photo
Listing Photo
Listing Photo
Listing Photo
Listing Photo
Listing Photo
Listing Photo
Listing Photo
Listing Photo
Listing Photo
Listing Photo
Listing Photo
Listing Photo
Listing Photo
Listing Photo
Listing Photo
Listing Photo
Listing Photo
Listing Photo
Listing Photo
Listing Photo
Listing Photo
Listing Photo
Listing Photo
Listing Photo
Listing Photo
Listing Photo
Listing Photo
Listing Photo
Listing Photo
Listing Photo
Listing Photo
Listing Photo
Listing Photo
Listing Photo
Listing Photo
Listing Photo
Listing Photo
Listing Photo
Listing Photo
Listing Photo
Listing Photo
Listing Photo
Listing Photo
Listing Photo
Listing Photo
Listing Photo
Listing Photo
Listing Photo
Listing Photo
Listing Photo
Listing Photo
Listing Photo
Listing Photo
Listing Photo
Listing Photo
Listing Photo
Listing Photo
Listing Photo
Listing Photo
Listing Photo
Listing Photo
Listing Photo
Listing Photo
Listing Photo
Listing Photo
Listing Photo

MLS #MFRA4658861 Listing courtesy of Nine Line Realty Llc provided by Stellar MLS.

Similar Listings

$510,000
12401 Shining Willow Street
Riverview
4BR/3BA
| Pending
$512,000
10734 Banfield Drive
Riverview
4BR/3BA
| Active
$514,900
12537 River Birch Drive
Riverview
4BR/3BA
| Active
$515,000
11510 Sand Stone Rock Drive
Riverview
4BR/3BA
| Active



All listing information is deemed reliable but not guaranteed and should be independently verified through personal inspection by appropriate professionals. Listings displayed on this website may be subject to prior sale or removal from sale; availability of any listing should always be independent verified. Listing information is provided for consumer personal, non-commercial use, solely to identify potential properties for potential purchase; all other use is strictly prohibited and may violate relevant federal and state law. The source of the listing data is as follows: Stellar MLS (updated 3/2/26 8:42 AM) |

Listing Search



Translate Tool

Featured Listings
Clearwater Beach Real Estate
$925,000
4 BED
3 BATH
Luxury Coastal Living in North Clearwater Beach – Just Steps from the Sand Experience the ultimate in luxury beachside l... Read More
Clearwater Real Estate
$889,000
3 BED
2 BATH
This luxury three-bedroom, two-bathroom condo has a breathtaking view of Clearwater Bay. The community allows SHORT-TERM... Read More
St Petersburg Real Estate
$1,495,000
2 BED
2 BATH
Rising high above the city and capturing the very essence of luxury living, this breathtaking east-facing residence at S... Read More
Lakewood Ranch Real Estate
$1,389,000
6 BED
5 BATH
Seller has reduced the price by $150,000 from the original list price and is offering $20,000 toward the buyer’s closing... Read More
Sarasota Real Estate
$1,349,000
3 BED
2 BATH
Located within the highly sought-after community of Lakehouse Cove, this impeccably upgraded residence blends elegant de... Read More
Sarasota Real Estate
$1,399,000
2 BED
2 BATH
Incredible Gulf-front first-floor residence (10’ elevation) within the amenity-rich 32-acre campus of the Gulf & Bay com... Read More
Tampa Real Estate
$995,000
2 BED
2 BATH
Welcome to a life of elevated urban luxury at SkyPoint, where the city’s most breathtaking views become your everyday ba... Read More
Lakeland Real Estate
$1,175,000
4 BED
3 BATH
685 Whisper Woods is a carefully maintained 4 bedroom, 3.5 bath home with 4208 square feet blending thoughtful design wi... Read More
Williston Real Estate
$849,900
2 BED
1 BATH
This beautifully laid-out equestrian property offers a rare combination of functionality, comfort, and an outstanding lo... Read More
Dunnellon Real Estate
$1,499,900
3 BED
2 BATH
Welcome to luxury waterfront living on the infamous Rainbow River. This stunning concrete block 2023-built residence off... Read More
Contact Sandra Pardo

407-990-2746

Wendy Morris LLC

Licensed in the State of Florida
BK 3146762
16797 Broadwater Avenue
Winter Garden, Florida 34787

Your privacy is our utmost concern. We will never sell your personal information. Privacy Policy
©2026 sandrapardohomes.com - all rights reserved. | Site Map