407-990-2746
Menu

10706 Spanish Needle Cove, Parrish, FL

NEXT
PREV
$482,288

($188/sqft)

List Status: Active
10706 Spanish Needle Cove
Parrish, FL 34219


4 beds
3 baths
2566 living sqft
Top Features
  • Subdivision: Sawgrass Lakes Ph I-iii
  • Built in  2025
  • Single Family Residence
Description
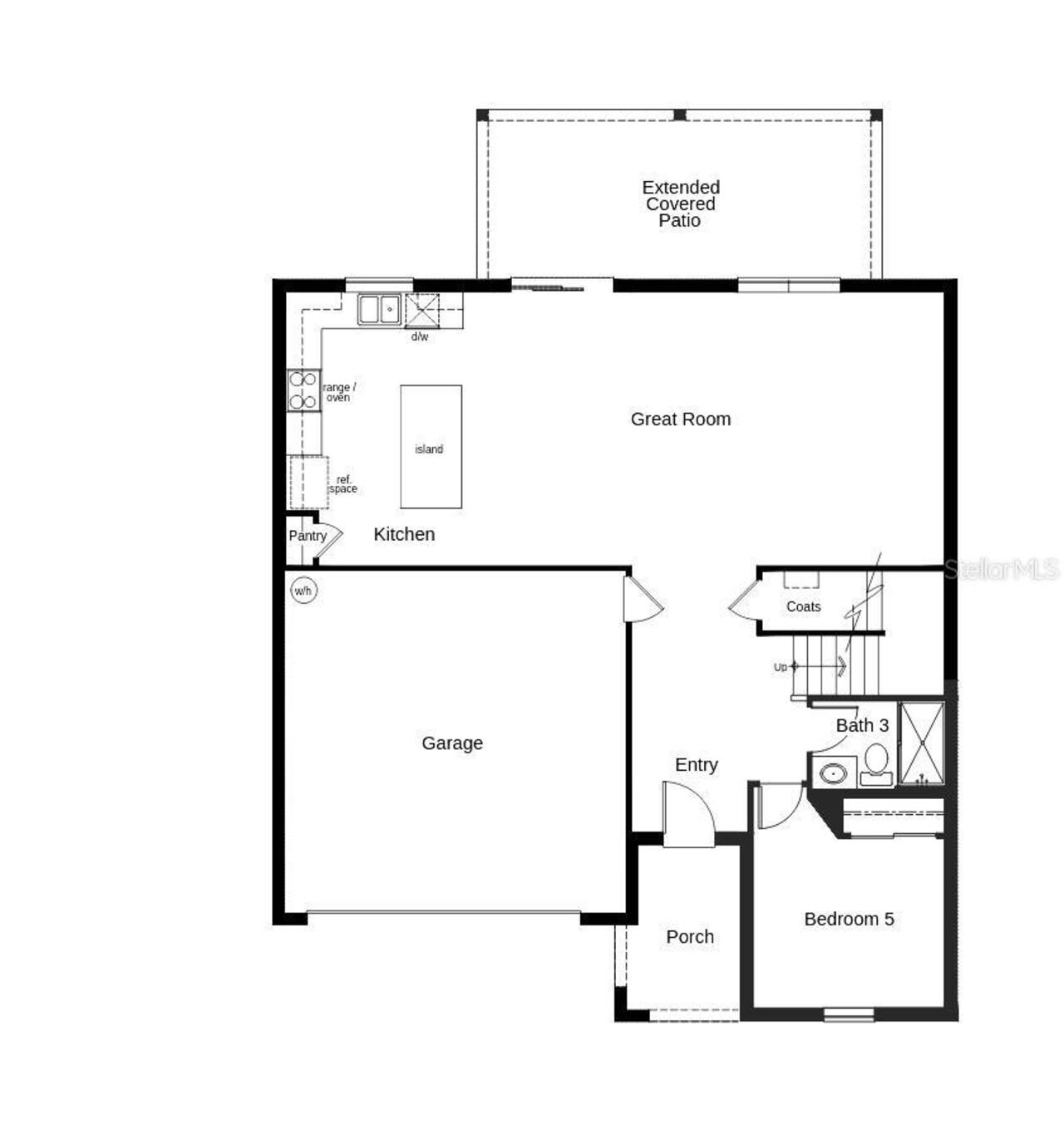
This beautiful, two-story home showcases an inviting covered front porch. Inside, discover an open floor plan with 9-ft. ceilings. The expansive great room provides access to an extended covered back patio, which is perfect for summer barbeques and family gatherings. The stunning kitchen boasts a large eat-in island, pantry, granite countertops, Whirlpool® stainless steel appliances, and 42-in. upper cabinets with crown molding. Upstairs, enjoy the convenience of a spacious loft and dedicated laundry room. The primary bedroom features a large walk-in closet and connecting bath with an extended dual-sink vanity, granite countertops, garden tub and separate shower. Community Offers no CDD.
Property Details
Additional Information
Additional Lease Restrictions
Lease restrictions to be independently verified by the HOA
Additional Parcels YN
false
Additional Rooms
Loft
Appliances
Dishwasher, Disposal, Range, Range Hood
Approval Process
Approval process to be independently verified by the HOA
Association Email
jpatterson@pcmfla.com
Association Fee
325
Association Fee Frequency
Quarterly
Association Fee Requirement
Required
Association YN
true
Attached Garage YN
true
Available For Lease YN
1
Bathrooms Total Integer
3
Builder License Number
CBC059472
Builder Model
2566/E
Builder Name
KB Home
Building Area Source
Public Records
Building Area Total
3303
Building Area Total Srch SqM
306.86
Building Area Units
Square Feet
Calculated List Price By Calculated SqFt
187.95
Carport YN
false
Community Features
Clubhouse, Playground, Pool
Construction Materials
Block, HardiPlank Type, Stucco, Frame
Cooling
Central Air
Country
US
Cumulative Days On Market
11
Current Price
482288.00
Direction Faces
East
Exterior Features
Sidewalk, Sliding Doors
Fireplace YN
false
Flood Zone Code
X
Flooring
Carpet, Luxury Vinyl
Foundation Details
Slab
Furnished
Unfurnished
Garage Dimensions
20X20
Garage Spaces
2
Garage YN
true
Heating
Central
Interior Features
Open Floorplan, Stone Counters, Thermostat, Walk-In Closet(s)
Internet Address Display YN
true
Internet Automated Valuation Display YN
true
Internet Consumer Comment YN
true
Internet Entire Listing Display YN
true
Laundry Features
Laundry Room
Lease Restrictions YN
1
Levels
Two
List AOR
Orlando Regional
Living Area Meters
238.39
Living Area Source
Builder
Living Area Units
Square Feet
Lot Size Acres
0.23
Lot Size Square Feet
10196
Lot Size Square Meters
947
Minimum Lease
8-12 Months
Modification Timestamp
2026-04-12T18:56:09.418Z
Monthly HOA Amount
108.33
New Construction YN
true
Occupant Type
Vacant
Ownership
Fee Simple
Parcel Number
651710859
Patio And Porch Features
Front Porch
Pet Restrictions
Pet restrictions to be independently verified by the HOA
Pets Allowed
Yes
Pool Private YN
false
Previous List Price
467288
Price Change Timestamp
2026-04-12T18:55:45.000Z
Property Condition
Completed
Public Survey Range
18
Public Survey Section
24
RATIO Current Price By Calculated SqFt
187.95
Road Surface Type
Asphalt
Roof
Shingle
Room Count
3
SW Subdiv Community Name
North River Ranch
Senior Community YN
false
Sewer
Public Sewer
Showing Requirements
Contact Call Center
Status Change Timestamp
2026-04-01T19:06:37.000Z
Tax Annual Amount
204.22
Tax Legal Description
LOT 212, PH III SAWGRASS LAKES PHS I-III PI# 6517.1085/9
Tax Lot
212
Tax Year
2025
Total Acreage
0 to less than 1/4
Total Annual Fees
1300.00
Total Monthly Fees
108.33
Township
33
Universal Property Id
US-12081-N-651710859-R-N
Unparsed Address
10706 SPANISH NEEDLE CV
Utilities
BB/HS Internet Available
Water Source
Public
Waterfront YN
false
Window Features
ENERGY STAR Qualified Windows
Zoning
RESI
Neighborhood Map
Popup

Property Photos
Listing Photo
Listing Photo
Listing Photo
Listing Photo
Listing Photo
Listing Photo

MLS #MFRO6395329 Listing courtesy of Keller Williams Advantage Realty provided by Stellar MLS.

Similar Listings

$434,465
Parrish
4BR/3BA
| Active
$434,477
12341 49th E Street
Parrish
4BR/3BA
| Active
$434,823
Parrish
4BR/3BA
| Active
$435,000
8985 Royal River Circle
Parrish
4BR/3BA
| Active



All listing information is deemed reliable but not guaranteed and should be independently verified through personal inspection by appropriate professionals. Listings displayed on this website may be subject to prior sale or removal from sale; availability of any listing should always be independent verified. Listing information is provided for consumer personal, non-commercial use, solely to identify potential properties for potential purchase; all other use is strictly prohibited and may violate relevant federal and state law. The source of the listing data is as follows: Stellar MLS (updated 4/17/26 1:42 PM) |

Listing Search



Translate Tool

Featured Listings
Lakewood Ranch Real Estate
$880,204
3 BED
3 BATH
Under Construction. Own a stunning slice of paradise at our premier golf and resort community, nestled in the award-winn... Read More
Lakewood Ranch Real Estate
$892,605
4 BED
3 BATH
Under Construction. Own a stunning slice of paradise at our premier golf and resort community, nestled in the award-winn... Read More
Lakewood Ranch Real Estate
$805,605
3 BED
2 BATH
Under Construction. Own a stunning slice of paradise at our premier golf and resort community, nestled in the award-winn... Read More
Lakewood Ranch Real Estate
$834,204
2 BED
3 BATH
Under Construction. Own a stunning slice of paradise at our premier golf and resort community, nestled in the award-winn... Read More
Lakewood Ranch Real Estate
$878,204
3 BED
3 BATH
Under Construction. Discover the pinnacle of golf and resort-style living. Calusa Country Club features two exceptional ... Read More
Orlando Real Estate
$1,449,900
4 BED
4 BATH
Welcome to this beautiful residence located in the highly sought-after community of Dr. Phillips. Nestled on a premium c... Read More
Lakewood Ranch Real Estate
$1,135,920
3 BED
3 BATH
Under Construction. Own a stunning slice of paradise at our premier golf and resort community, nestled in the award-winn... Read More
Tampa Real Estate
$1,095,000
4 BED
2 BATH
.....Professional pictures coming within 24 hrs..... Fall in love with this gorgeous move in ready home nestled in one o... Read More
Lakewood Ranch Real Estate
$1,157,920
3 BED
3 BATH
Under Construction. Own a stunning slice of paradise at our premier golf and resort community, nestled in the award-winn... Read More
Bradenton Real Estate
$1,450,000
4 BED
3 BATH
This MOVE-IN READY, beautifully upgraded estate home is positioned on a premier golf course street within the guard-gate... Read More
Contact Sandra Pardo

407-990-2746

Wendy Morris LLC

Licensed in the State of Florida
BK 3146762
16797 Broadwater Avenue
Winter Garden, Florida 34787

Your privacy is our utmost concern. We will never sell your personal information. Privacy Policy
©2026 sandrapardohomes.com - all rights reserved. | Site Map