407-990-2746
Menu

1067 Berkeley Drive, Kissimmee, FL

NEXT
PREV
$475,000

($181/sqft)

List Status: Active
1067 Berkeley Drive
Kissimmee, FL 34744


4 beds
3 baths
2620 living sqft
Top Features
  • View: Water
  • Subdivision: Somerset
  • Built in  2006
  • Single Family Residence
Description
Property Details
Additional Information
Additional Lease Restrictions
Buyer to verify any and all lease restrictions directly with the HOA
Additional Parcels YN
false
Alternate Key Folio Num
25-30-29-5041-0001-031.0
Appliances
Dryer, Range, Refrigerator, Washer
Association Amenities
Basketball Court, Golf Course, Tennis Court(s)
Association Email
info@remingtonmasterhoa.com
Association Fee
160
Association Fee Frequency
Annually
Association Fee Requirement
Required
Association YN
true
Attached Garage YN
true
Bathrooms Total Integer
4
Building Area Source
Public Records
Building Area Total
3101
Building Area Total Srch SqM
288.09
Building Area Units
Square Feet
Calculated List Price By Calculated SqFt
181.30
Carport YN
false
Construction Materials
Stucco
Cooling
Central Air
Country
US
Cumulative Days On Market
54
Current Price
475000.00
Direction Faces
East
Elementary School
Partin Settlement Elem
Exterior Features
Sidewalk, Sliding Doors
Fireplace YN
false
Flood Zone Code
X
Flood Zone Date
2013-06-18
Flood Zone Panel
12097C0090G
Flooring
Carpet, Luxury Vinyl, Tile
Foundation Details
Slab
Garage Spaces
2
Garage YN
true
Heating
Central
High School
Gateway High School (9 12)
Interior Features
Ceiling Fans(s), Kitchen/Family Room Combo, Open Floorplan, PrimaryBedroom Upstairs
Internet Address Display YN
true
Internet Automated Valuation Display YN
false
Internet Consumer Comment YN
true
Internet Entire Listing Display YN
true
Laundry Features
Laundry Room
Levels
Two
List AOR
Orlando Regional
Living Area Meters
243.41
Living Area Source
Public Records
Living Area Units
Square Feet
Lot Size Acres
0.13
Lot Size Square Feet
5489
Lot Size Square Meters
510
Middle Or Junior School
Neptune Middle (6-8)
Modification Timestamp
2025-12-11T01:38:08.992Z
Monthly HOA Amount
13.33
New Construction YN
false
Occupant Type
Vacant
Ownership
Fee Simple
Parcel Number
29-25-30-5041-0001-0310
Pet Restrictions
Buyer to verify any and all pet restrictions directly with the HOA.
Pets Allowed
Cats OK, Dogs OK
Pool Private YN
true
Postal Code Plus 4
8557
Previous List Price
499000
Price Change Timestamp
2025-12-11T01:37:46.000Z
Public Remarks
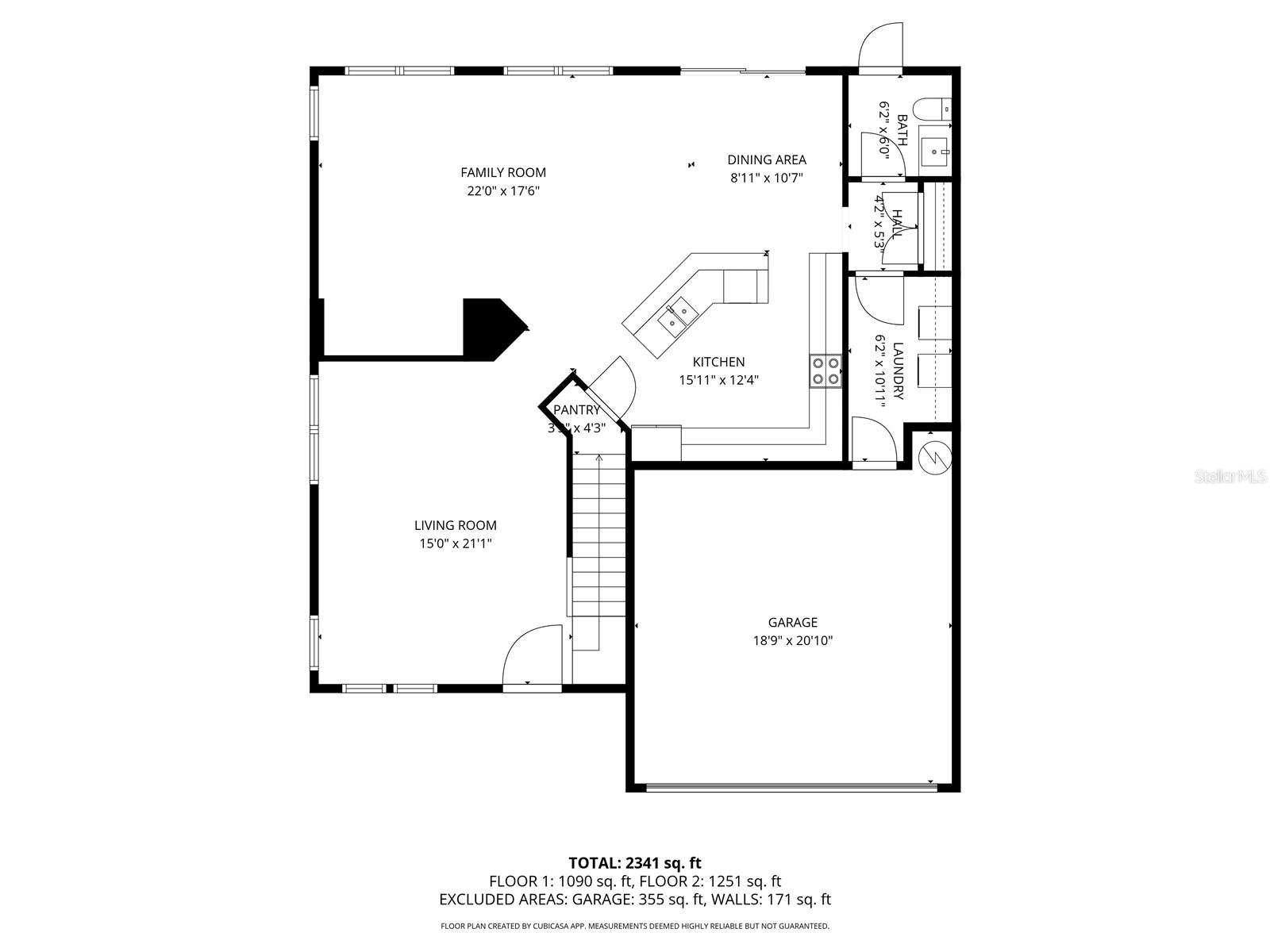
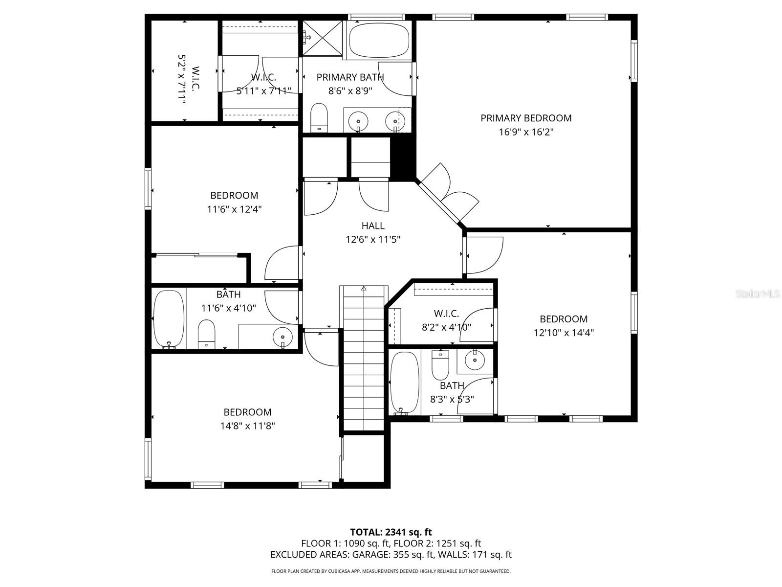
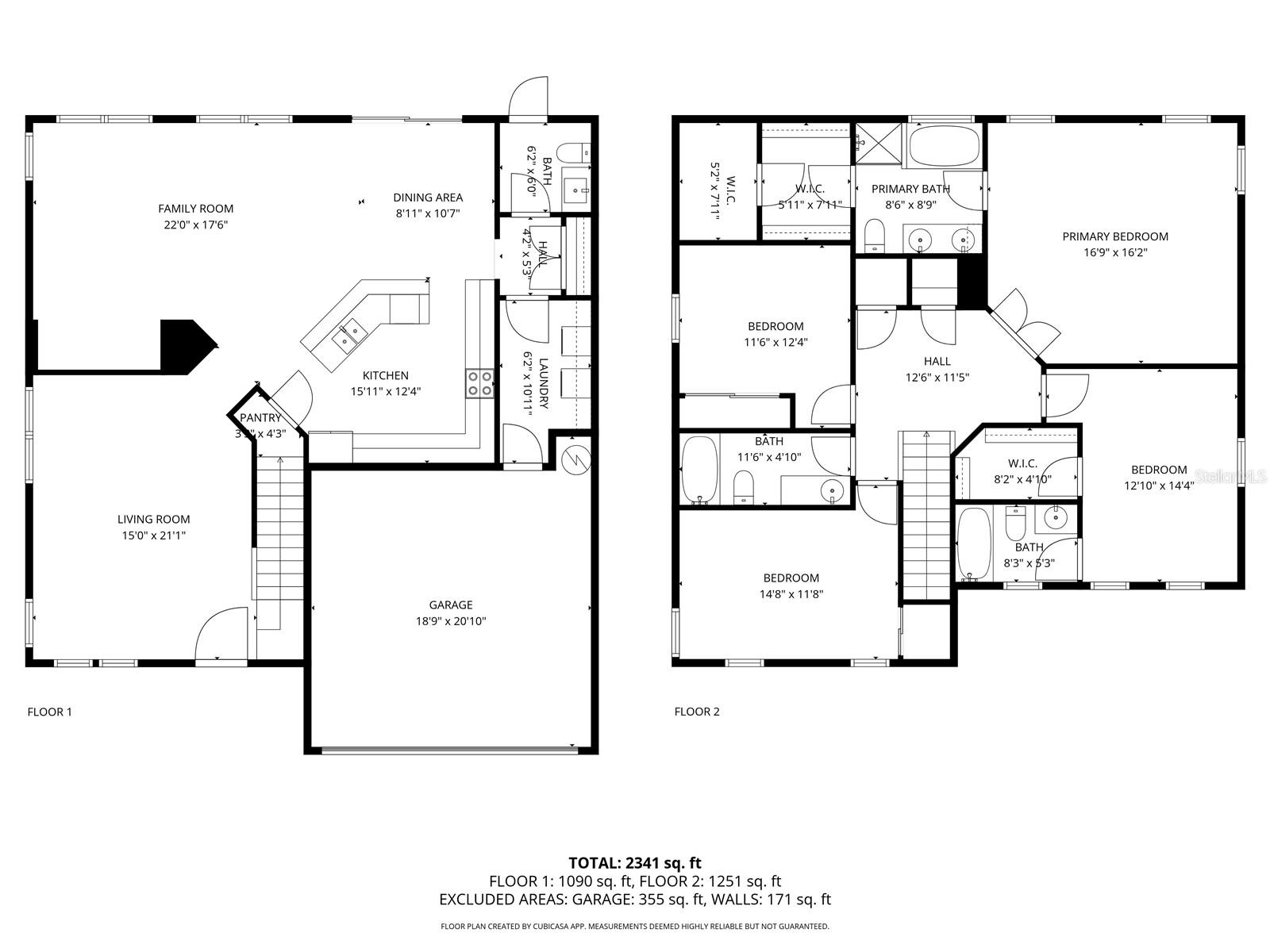
Welcome to 1067 Berkeley Drive, a beautifully maintained 4-bedroom, 3.5-bath pool home offering over 2, 600 square feet of living space in the sought-after community of Remington in Kissimmee. Step inside to discover a bright and open floor plan with large windows that fill the home with natural light. The spacious formal living area flows seamlessly into the family room, dining area, and kitchen, creating an ideal space for entertaining and everyday living. The kitchen features ample cabinetry, a breakfast bar, and full appliance package ready for home-cooked meals or casual gatherings. The primary suite offers a peaceful retreat with his and her walk-in closets and a private en-suite bath. The second bedroom includes its own private bathroom and walk-in closet, perfect for guests or multi-generational living. Two additional bedrooms provide comfort and flexibility for family members, guests, or a home office. Step outside to your private screened-in pool overlooking a tranquil pond view the perfect backdrop for relaxing evenings or weekend get-togethers. With a new roof, air conditioning, and water heater (all replaced in 2021), this home is truly move-in ready and worry-free. Located within the Remington Golf Community, residents enjoy access to an impressive list of amenities including an 18-hole golf course, tennis and basketball courts, baseball field, community pool, shaded jogging paths, and even a convenience store right within the neighborhood. Conveniently situated near major highways, shopping, dining, and Central Florida attractions, this home blends comfort, convenience, and resort-style living.
Public Survey Range
30
Public Survey Section
29
RATIO Current Price By Calculated SqFt
181.30
Realtor Info
As-Is
Road Surface Type
Paved
Roof
Shingle
Room Count
3
Senior Community YN
false
Sewer
Public Sewer
Showing Requirements
ShowingTime
Status Change Timestamp
2025-10-17T19:05:31.000Z
Tax Annual Amount
7386
Tax Block
1
Tax Book Number
16-178-179
Tax Legal Description
SOMERSET PB 16 PGS 178-179 LOT 31
Tax Lot
31
Tax Year
2024
Total Acreage
0 to less than 1/4
Total Annual Fees
160.00
Total Monthly Fees
13.33
Township
25
Universal Property Id
US-12097-N-292530504100010310-R-N
Unparsed Address
1067 BERKELEY DR
Utilities
Cable Available, Electricity Available
Water View
Pond
Water View YN
1
Waterfront YN
false
Zoning
OPUD
Neighborhood Map
Popup

Property Photos
Listing Photo
Listing Photo
Listing Photo
Listing Photo
Listing Photo
Listing Photo
Listing Photo
Listing Photo
Listing Photo
Listing Photo
Listing Photo
Listing Photo
Listing Photo
Listing Photo
Listing Photo
Listing Photo
Listing Photo
Listing Photo
Listing Photo
Listing Photo
Listing Photo
Listing Photo
Listing Photo
Listing Photo
Listing Photo
Listing Photo
Listing Photo
Listing Photo
Listing Photo
Listing Photo
Listing Photo
Listing Photo
Listing Photo
Listing Photo
Listing Photo
Listing Photo
Listing Photo
Listing Photo
Listing Photo
Listing Photo
Listing Photo
Listing Photo
Listing Photo
Listing Photo
Listing Photo
Listing Photo
Listing Photo
Listing Photo
Listing Photo
Listing Photo
Listing Photo
Listing Photo
Listing Photo
Listing Photo
Listing Photo
Listing Photo
Listing Photo
Listing Photo
Listing Photo
Listing Photo
Listing Photo
Listing Photo
Listing Photo
Listing Photo
Listing Photo
Listing Photo
Listing Photo
Listing Photo
Listing Photo
Listing Photo
Listing Photo
Listing Photo
Listing Photo
Listing Photo
Listing Photo
Listing Photo
Listing Photo
Listing Photo
Listing Photo
Listing Photo
Listing Photo
Listing Photo
Listing Photo
Listing Photo
Listing Photo
Listing Photo
Listing Photo
Listing Photo
Listing Photo
Listing Photo
Listing Photo
Listing Photo
Listing Photo
Listing Photo
Listing Photo
Listing Photo
Listing Photo
Listing Photo
Listing Photo
Listing Photo
Listing Photo
Listing Photo
Listing Photo
Listing Photo

MLS #MFRO6352726 Listing courtesy of Real Broker, Llc provided by Stellar MLS.

Similar Listings

$429,000
2717 Scarborough Court
Kissimmee
4BR/3BA
| Active
$429,900
1741 Goblet Cove Street
Kissimmee
4BR/3BA
| Pending
$429,900
2533 Oneida Loop
Kissimmee
4BR/3BA
| Active
$429,950
3049 Caribbean Soul Drive
Kissimmee
4BR/3BA
| Active



All listing information is deemed reliable but not guaranteed and should be independently verified through personal inspection by appropriate professionals. Listings displayed on this website may be subject to prior sale or removal from sale; availability of any listing should always be independent verified. Listing information is provided for consumer personal, non-commercial use, solely to identify potential properties for potential purchase; all other use is strictly prohibited and may violate relevant federal and state law. The source of the listing data is as follows: Stellar MLS (updated 1/30/26 7:09 AM) |

Listing Search



Translate Tool

Featured Listings
Sarasota Real Estate
$1,050,000
5 BED
5 BATH
Bradenton Real Estate
$1,195,000
3 BED
2 BATH
Orlando Real Estate
$975,000
3 BED
3 BATH
St Petersburg Real Estate
$980,000
4 BED
2 BATH
Tampa Real Estate
$1,078,900
4 BED
2 BATH
Winter Garden Real Estate
$1,420,000
5 BED
4 BATH
Gainesville Real Estate
$959,900
4 BED
3 BATH
Ellenton Real Estate
$1,200,000
3 BED
4 BATH
Port Charlotte Real Estate
$950,000
3 BED
2 BATH
Bradenton Real Estate
$875,000
3 BED
3 BATH
Contact Sandra Pardo

407-990-2746

Wendy Morris LLC

Licensed in the State of Florida
BK 3146762
16797 Broadwater Avenue
Winter Garden, Florida 34787

Your privacy is our utmost concern. We will never sell your personal information. Privacy Policy
©2026 sandrapardohomes.com - all rights reserved. | Site Map