407-990-2746
Menu

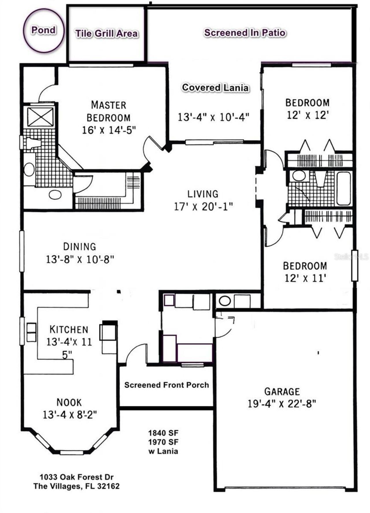
1033 Oak Forest Drive, The Villages, FL

NEXT
PREV
$369,000

($201/sqft)

List Status: Active
1033 Oak Forest Drive
The Villages, FL 32162


3 beds
2 baths
1840 living sqft
Top Features
  • View: Park/Greenbelt
  • Subdivision: Sumtert Vlgs
  • Built in  1999
  • Single Family Residence
Description
Beautiful 3/2 with vaulted ceilings. Covered Lania and screened in back patio. Many upgrades. New roof 2 years ago. Updated AC and natural gas water heater. Two car garage and 4 parking spaces. Large bedrooms and lots of closet space. Great location.. centrally located in the expansive Villages. Close to lots of retail and restaurants on Hwy 466 which is all accessible by golf cart. The screened in patio is great for entertaining with a BBQ area next to it. There is also a pond.. closed but everything is still there if you would like to revive it! Great neighborhood with driveway and holiday parties. New roof, updated AC, water heater, stove, dishwasher, nice French door refrigerator with a drawer and ice/water on the outside and a new microwave. Here is a list of add-ons and updates: Purchased the House 3/7/2007 - 19 years ago.. Built in 1999 NEW Roof - 7/23 Gutter Leaf Guards - 6/23
Property Details
Additional Information
Accessibility Features
Accessible Approach with Ramp
Additional Lease Restrictions
Please contact HOA to verify all information & Restrictions Buyer to verify all information.
Additional Parcels YN
false
Additional Rooms
Formal Dining Room Separate, Great Room
Alternate Key Folio Num
10-18-23-D10C037
Appliances
Dishwasher, Dryer, Exhaust Fan, Gas Water Heater, Microwave, Range, Range Hood, Refrigerator, Touchless Faucet, Washer
Approval Process
Please contact HOA to verify all information & Restrictions Buyer to verify all information.
Architectural Style
Ranch
Association Amenities
Basketball Court, Cable TV, Clubhouse, Fitness Center, Gated, Golf Course, Park, Pickleball Court(s), Playground, Racquetball, Shuffleboard Court, Tennis Court(s), Trail(s), Wheelchair Access
Association Approval Required YN
1
Association Fee
194.57
Association Fee Frequency
Monthly
Association Fee Includes
Guard - 24 Hour, Common Area Taxes, Pool, Maintenance Grounds, Recreational Facilities, Sewer, Trash, Water
Association Fee Requirement
Required
Association YN
true
Attached Garage YN
true
Available For Lease YN
1
Bathrooms Total Integer
2
Building Area Source
Owner
Building Area Total
2520
Building Area Total Srch SqM
234.12
Building Area Units
Square Feet
Calculated List Price By Calculated SqFt
200.54
Carport YN
false
Community Features
Clubhouse, Community Mailbox, Deed Restrictions, Dog Park, Fitness Center, Gated Community - No Guard, Golf Carts OK, Golf, Park, Pool, Racquetball, Restaurant, Tennis Court(s), Street Lights
Construction Materials
Vinyl Siding, Frame
Cooling
Central Air
Country
US
Cumulative Days On Market
34
Current Price
369000.00
Direction Faces
West
Disaster Mitigation
Fire/Smoke Detection Integration
Exterior Features
Lighting, Rain Gutters, Sliding Doors
Fencing
Board
Fireplace YN
false
Flood Zone Code
X
Flood Zone Date
2013-09-27
Flood Zone Panel
12119C0059D
Flooring
Concrete, Tile
Foundation Details
Slab
Furnished
Unfurnished
Garage Dimensions
20x23
Garage Spaces
2
Garage YN
true
Green Energy Efficient
HVAC, Insulation, Thermostat, Water Heater
Green Indoor Air Quality
HVAC Filter MERV 8+, No Smoking-Interior Buildg
Heating
Natural Gas
Homestead YN
1
Interior Features
Accessibility Features, Ceiling Fans(s), Eat-in Kitchen, High Ceilings, L Dining, Living Room/Dining Room Combo, Open Floorplan, Primary Bedroom Main Floor, Solid Wood Cabinets, Split Bedroom, Thermostat, Walk-In Closet(s)
Internet Address Display YN
true
Internet Automated Valuation Display YN
false
Internet Consumer Comment YN
false
Internet Entire Listing Display YN
true
Laundry Features
Electric Dryer Hookup, Inside, Laundry Room, Washer Hookup
Lease Restrictions YN
1
Levels
One
List AOR
West Pasco
Living Area Meters
170.94
Living Area Source
Owner
Living Area Units
Square Feet
Lot Features
City Limits, Landscaped, Level, Near Golf Course, Paved
Lot Size Acres
0.15
Lot Size Square Feet
6500
Lot Size Square Meters
604
Minimum Lease
No Minimum
Modification Timestamp
2026-02-24T17:47:11.270Z
Monthly HOA Amount
194.57
New Construction YN
false
Occupant Type
Vacant
Other Equipment
Irrigation Equipment
Ownership
Fee Simple
Parcel Number
D10C037
Patio And Porch Features
Covered, Enclosed, Front Porch, Patio, Rear Porch, Screened
Pets Allowed
Yes
Pool Private YN
false
Postal Code Plus 4
7457
Previous List Price
379000
Price Change Timestamp
2026-02-24T17:46:27.000Z
Public Survey Range
23
Public Survey Section
10
RATIO Current Price By Calculated SqFt
200.54
Road Surface Type
Asphalt
Roof
Shingle
Room Count
9
Security Features
Fire Alarm, Gated Community, Smoke Detector(s)
Senior Community YN
true
Sewer
Public Sewer
Showing Requirements
24 Hour Notice, Appointment Only, Call Owner, Call Seller Direct
Status Change Timestamp
2026-01-21T19:05:32.000Z
Tax Annual Amount
2156
Tax Block
1
Tax Book Number
5-26-26C
Tax Legal Description
LOT 37 THE VILLAGES OF SUMTER UNIT NO.34PLAT BOOK 5 PAGES 26-26C
Tax Lot
37
Tax Year
2025
Total Acreage
0 to less than 1/4
Total Annual Fees
2334.84
Total Monthly Fees
194.57
Township
18
Universal Property Id
US-12119-N-10037-R-N
Unparsed Address
1033 OAK FOREST DR
Utilities
BB/HS Internet Available, Cable Available, Cable Connected, Electricity Available, Electricity Connected, Fire Hydrant, Natural Gas Available, Natural Gas Connected, Phone Available, Sewer Available, Sewer Connected, Sprinkler Meter, Underground Utilities, Water Available, Water Connected
Water Source
Public
Waterfront YN
false
Window Features
Skylight(s), Aluminum Frames, Blinds, Double Pane Windows, Insulated Windows
Zoning
X
Neighborhood Map
Popup

Property Photos
Listing Photo
Listing Photo
Listing Photo
Listing Photo
Listing Photo
Listing Photo
Listing Photo
Listing Photo
Listing Photo
Listing Photo
Listing Photo
Listing Photo
Listing Photo
Listing Photo
Listing Photo
Listing Photo
Listing Photo
Listing Photo
Listing Photo
Listing Photo
Listing Photo
Listing Photo
Listing Photo
Listing Photo
Listing Photo
Listing Photo
Listing Photo
Listing Photo
Listing Photo
Listing Photo
Listing Photo
Listing Photo
Listing Photo
Listing Photo
Listing Photo
Listing Photo
Listing Photo
Listing Photo
Listing Photo
Listing Photo
Listing Photo
Listing Photo
Listing Photo
Listing Photo
Listing Photo
Listing Photo
Listing Photo
Listing Photo
Listing Photo
Listing Photo
Listing Photo
Listing Photo
Listing Photo
Listing Photo
Listing Photo
Listing Photo
Listing Photo
Listing Photo
Listing Photo
Listing Photo
Listing Photo
Listing Photo
Listing Photo
Listing Photo
Listing Photo
Listing Photo
Listing Photo
Listing Photo
Listing Photo
Listing Photo
Listing Photo
Listing Photo
Listing Photo
Listing Photo
Listing Photo
Listing Photo
Listing Photo
Listing Photo
Listing Photo
Listing Photo
Listing Photo
Listing Photo
Listing Photo
Listing Photo
Listing Photo
Listing Photo
Listing Photo
Listing Photo
Listing Photo
Listing Photo
Listing Photo
Listing Photo
Listing Photo
Listing Photo
Listing Photo
Listing Photo
Listing Photo
Listing Photo
Listing Photo
Listing Photo
Listing Photo
Listing Photo
Listing Photo
Listing Photo
Listing Photo
Listing Photo
Listing Photo
Listing Photo
Listing Photo
Listing Photo
Listing Photo
Listing Photo
Listing Photo
Listing Photo
Listing Photo
Listing Photo
Listing Photo
Listing Photo
Listing Photo
Listing Photo
Listing Photo
Listing Photo
Listing Photo
Listing Photo
Listing Photo
Listing Photo
Listing Photo
Listing Photo
Listing Photo
Listing Photo
Listing Photo
Listing Photo
Listing Photo
Listing Photo
Listing Photo
Listing Photo
Listing Photo
Listing Photo
Listing Photo
Listing Photo
Listing Photo
Listing Photo
Listing Photo
Listing Photo
Listing Photo
Listing Photo
Listing Photo
Listing Photo
Listing Photo
Listing Photo
Listing Photo
Listing Photo
Listing Photo
Listing Photo

MLS #MFRW7882275 Listing courtesy of Simple Fee Listings Llc provided by Stellar MLS.

Similar Listings

$332,500
16975 Se 91st Shubrick Court
The Villages
3BR/2BA
| Active
$334,900
2572 Berrington Loop
The Villages
3BR/2BA
| Active
$334,900
3017 Hillside Lane
The Villages
3BR/2BA
| Active
$334,900
7608 Daniel Hearns Way
The Villages
3BR/2BA
| Active



All listing information is deemed reliable but not guaranteed and should be independently verified through personal inspection by appropriate professionals. Listings displayed on this website may be subject to prior sale or removal from sale; availability of any listing should always be independent verified. Listing information is provided for consumer personal, non-commercial use, solely to identify potential properties for potential purchase; all other use is strictly prohibited and may violate relevant federal and state law. The source of the listing data is as follows: Stellar MLS (updated 3/20/26 4:31 PM) |

Listing Search



Translate Tool

Featured Listings
Windermere Real Estate
$1,369,999
6 BED
4 BATH
Gorgeous East facing custom estate on a .63-acre lot in the highly sought-after 24-hour guard-gated community of Tildens... Read More
Tierra Verde Real Estate
$892,000
3 BED
3 BATH
Experience true Florida living in this coastal, move-in ready, high & dry, two-story home located in Tierra Verde’s high... Read More
Winter Garden Real Estate
$850,000
6 BED
4 BATH
One or more photo(s) has been virtually staged. Buyers Financing Failed... Now available, this Premium 6-bedroom, 4-bath... Read More
Beverly Hills Real Estate
$843,000
4 BED
3 BATH
Luxury Pool Estate with Private In-Law Suite on 4+ Acres | Now Offered at $849,900 Welcome to your own private retreat i... Read More
Thonotosassa Real Estate
$850,000
3 BED
2 BATH
COUNTRY ESTATE!  Exquisite Custom Built Pool Home on 1.5 acres.  This home has upgrades throughout.  The split plan feat... Read More
Bradenton Real Estate
$1,390,000
3 BED
3 BATH
Rarely available and completely reimagined, this original-owner home has been renovated to a level rarely seen at any pr... Read More
Venice Real Estate
$1,121,676
3 BED
3 BATH
Under Construction. This Longboat I is currently under construction and will be ready March or April of 2026! Discover a... Read More
Bradenton Real Estate
$950,000
4 BED
3 BATH
In Waterlefe Golf & River Club, life is meant to be lived outdoors. Boat on the Manatee River in the morning, tee it up ... Read More
New Port Richey Real Estate
$850,000
4 BED
3 BATH
Waterfront luxury with peace of mind, new roof January 2025! Perched 14 feet above sea level, this elevated waterfront r... Read More
Winter Park Real Estate
$1,495,000
3 BED
3 BATH
Pre-Construction. To be built. The Enclave is a premier, boutique community in the heart of Winter Park, featuring just ... Read More
Contact Sandra Pardo

407-990-2746

Wendy Morris LLC

Licensed in the State of Florida
BK 3146762
16797 Broadwater Avenue
Winter Garden, Florida 34787

Your privacy is our utmost concern. We will never sell your personal information. Privacy Policy
©2026 sandrapardohomes.com - all rights reserved. | Site Map