407-990-2746
Menu

1028 Karen Ridge Court, Kissimmee, FL

NEXT
PREV
$332,000

($207/sqft)

List Status: Pending
1028 Karen Ridge Court
Kissimmee, FL 34747


3 beds
2 baths
1604 living sqft
Top Features
  • View: Park/Greenbelt
  • Subdivision: Indian Ridge Unit 04
  • Built in  1991
  • Single Family Residence
Description
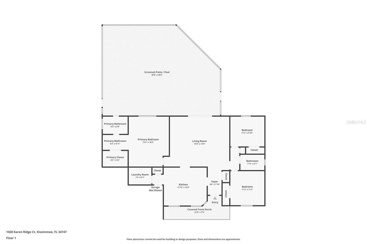
Under contract-accepting backup offers. Welcome to 1028 Karen Ridge Ct, a 3-bedroom, 2-bathroom single-story pool home situated on a quiet cul-de-sac in the Indian Ridge community of west Kissimmee. Set on approximately 0.26 acres with open green space behind, this concrete block and stucco home offers 1,604 heated square feet of thoughtfully laid-out living space with a screened in-ground pool, in-ground spa, and pool deck — all built in 1991 and updated with a NEW ROOF (2023) and NEW WATER HEATER (2024). As you arrive at the covered front porch and step through the front door, you are greeted by a clean, light-filled foyer with decorative wall accents that set a welcoming tone for the rest of the home. A few steps in, vaulted ceilings open up above the main living room, where wood-look flooring, a modern ceiling fan, and a wall-mounted television setup create an immediately comfortable gathering space. Natural light pours in from the rear, drawing your eye directly to the sliding glass doors and the screen-enclosed pool visible beyond. The dining area sits adjacent to the living room in an open arrangement, and from here a decorative arched pass-through leads into the eat-in kitchen. The kitchen features white cabinetry, generous counter space, a stainless steel refrigerator, tile backsplash, and a pendant chandelier above the casual dining area — a space that functions equally well for everyday meals or entertaining. A door off the kitchen leads to the dedicated interior laundry room, keeping that function neatly separated from the main living areas. The split-bedroom floor plan places the primary suite privately on one side of the home. The primary bedroom offers wood-look flooring, a window with a direct view of the screened pool area, and access to the ensuite bathroom, which includes a dual-sink vanity with cabinetry, a walk-in glass-enclosed shower with tile surround, and a separate water closet door for added privacy. A walk-in closet is also accessible fro
Property Details
Additional Information
Additional Lease Restrictions
Buyer to contact HOA to verify lease restrictions
Additional Parcels YN
false
Appliances
Dishwasher, Disposal, Dryer, Electric Water Heater, Range, Refrigerator, Washer
Approval Process
Buyer to contact HOA to verify any approval process
Association Fee
70
Association Fee Frequency
Annually
Association Fee Requirement
Required
Association YN
true
Attached Garage YN
true
Available For Lease YN
1
Bathrooms Total Integer
2
Building Area Source
Public Records
Building Area Total
2188
Building Area Total Srch SqM
203.27
Building Area Units
Square Feet
Calculated List Price By Calculated SqFt
206.98
Carport YN
false
Construction Materials
Block
Contract Status
Inspections
Cooling
Central Air
Country
US
Cumulative Days On Market
9
Current Price
332000.00
Direction Faces
Southwest
Expected Closing Date
2026-04-16T00:00:00.000
Exterior Features
Lighting, Sliding Doors
Fireplace YN
false
Flood Zone Code
X
Flood Zone Date
2013-06-18
Flood Zone Panel
12097C0040G
Flooring
Luxury Vinyl
Foundation Details
Slab
Furnished
Unfurnished
Garage Dimensions
20x24
Garage Spaces
2
Garage YN
true
High School
Poinciana High School
Homestead YN
1
Interior Features
Ceiling Fans(s), High Ceilings, Split Bedroom, Vaulted Ceiling(s), Walk-In Closet(s)
Internet Address Display YN
true
Internet Automated Valuation Display YN
true
Internet Consumer Comment YN
true
Internet Entire Listing Display YN
true
Laundry Features
Inside
Levels
One
List AOR
Orlando Regional
Living Area Meters
149.02
Living Area Source
Public Records
Living Area Units
Square Feet
Lot Features
Cul-De-Sac
Lot Size Acres
0.26
Lot Size Square Feet
11413
Lot Size Square Meters
1060
Middle Or Junior School
Celebration K-8
Minimum Lease
1 Week
Modification Timestamp
2026-04-03T16:11:09.648Z
Monthly HOA Amount
5.83
New Construction YN
false
Occupant Type
Owner
Ownership
Fee Simple
Parcel Number
22-25-27-3546-0001-4480
Patio And Porch Features
Covered, Front Porch, Screened
Pet Restrictions
Buyer to contact HOA to verify all pet restrictions
Pets Allowed
Yes
Pool Private YN
true
Postal Code Plus 4
1254
Public Survey Range
27
Public Survey Section
22
Purchase Contract Date
2026-03-17
RATIO Current Price By Calculated SqFt
206.98
Realtor Info
As-Is, Septic/Sewer Addendum Required
Road Surface Type
Paved
Roof
Shingle
Room Count
5
Senior Community YN
false
Sewer
Septic Tank
Showing Requirements
ShowingTime
Spa Features
In Ground
Spa YN
true
Status Change Timestamp
2026-03-20T17:14:59.000Z
Tax Annual Amount
4617.52
Tax Block
1
Tax Book Number
6-70
Tax Legal Description
INDIAN RIDGE UNIT 4 PB 6 PG 70-71 LOT 448
Tax Lot
448
Tax Year
2025
Total Acreage
1/4 to less than 1/2
Total Annual Fees
70.00
Total Monthly Fees
5.83
Township
25
Universal Property Id
US-12097-N-222527354600014480-R-N
Unparsed Address
1028 KAREN RIDGE CT
Utilities
Cable Available, Electricity Connected, Natural Gas Connected
Water Source
Public
Waterfront YN
false
Zoning
OPUD
Neighborhood Map
Popup

Property Photos
Listing Photo
Listing Photo
Listing Photo
Listing Photo
Listing Photo
Listing Photo
Listing Photo
Listing Photo
Listing Photo
Listing Photo
Listing Photo
Listing Photo
Listing Photo
Listing Photo
Listing Photo
Listing Photo
Listing Photo
Listing Photo
Listing Photo
Listing Photo
Listing Photo
Listing Photo
Listing Photo
Listing Photo
Listing Photo
Listing Photo
Listing Photo
Listing Photo
Listing Photo
Listing Photo
Listing Photo
Listing Photo
Listing Photo
Listing Photo
Listing Photo
Listing Photo
Listing Photo
Listing Photo
Listing Photo
Listing Photo
Listing Photo
Listing Photo
Listing Photo
Listing Photo
Listing Photo
Listing Photo
Listing Photo
Listing Photo
Listing Photo
Listing Photo
Listing Photo
Listing Photo
Listing Photo
Listing Photo
Listing Photo
Listing Photo
Listing Photo
Listing Photo
Listing Photo
Listing Photo
Listing Photo
Listing Photo
Listing Photo
Listing Photo
Listing Photo
Listing Photo
Listing Photo
Listing Photo
Listing Photo
Listing Photo
Listing Photo
Listing Photo
Listing Photo
Listing Photo
Listing Photo
Listing Photo
Listing Photo
Listing Photo
Listing Photo
Listing Photo
Listing Photo
Listing Photo
Listing Photo
Listing Photo
Listing Photo
Listing Photo
Listing Photo
Listing Photo
Listing Photo
Listing Photo
Listing Photo
Listing Photo
Listing Photo
Listing Photo
Listing Photo
Listing Photo
Listing Photo
Listing Photo

MLS #MFRO6388689 Listing courtesy of Keller Williams Classic provided by Stellar MLS.

Similar Listings

$298,900
2406 Kam Court
Kissimmee
3BR/2BA
| Active
$298,999
2024 Cypress Bay Boulevard
Kissimmee
3BR/2BA
| Active
$299,000
3384 Wilderness Trail
Kissimmee
3BR/2BA
| Pending
$299,000
1024 Chalcedony Street
Kissimmee
3BR/2BA
| Active



All listing information is deemed reliable but not guaranteed and should be independently verified through personal inspection by appropriate professionals. Listings displayed on this website may be subject to prior sale or removal from sale; availability of any listing should always be independent verified. Listing information is provided for consumer personal, non-commercial use, solely to identify potential properties for potential purchase; all other use is strictly prohibited and may violate relevant federal and state law. The source of the listing data is as follows: Stellar MLS (updated 4/13/26 3:58 AM) |

Listing Search



Translate Tool

Featured Listings
Flagler Beach Real Estate
$874,000
5 BED
2 BATH
Coastal living at its finest! This custom-built, three-story retreat offers an unbeatable blend of quality craftsmanship... Read More
Winter Garden Real Estate
$867,000
4 BED
3 BATH
Beautifully updated single-story home featuring 4 bedrooms and 3 bathrooms, situated on an expansive lot of over half an... Read More
Sarasota Real Estate
$1,030,000
5 BED
4 BATH
Welcome to this exceptional, nearly new home in the highly desirable Palmer Ranch community of Sarasota. Built in 2022, ... Read More
Lutz Real Estate
$1,199,950
5 BED
3 BATH
In a market where truly special opportunities are becoming harder to find, this over half acre estate property in Cheval... Read More
Sorrento Real Estate
$1,499,000
3 BED
3 BATH
Private gated 7+ acre equestrian estate in the heart of Central Florida horse country. This beautifully maintained prope... Read More
Clermont Real Estate
$997,000
4 BED
3 BATH
Experience the charm of scenic country living in Clermont on this expansive 4.86-acre property, where majestic oak trees... Read More
Orlando Real Estate
$810,000
3 BED
2 BATH
Exquisite Fully Renovated Golf-Front Residence in the Heart of Dr. Phillips Presenting a rare opportunity to own a compl... Read More
Odessa Real Estate
$990,000
4 BED
3 BATH
Experience elevated living in one of Odessa’s most desirable communities. Priced at $990,000, this beautifully maintaine... Read More
Orlando Real Estate
$1,390,000
4 BED
3 BATH
This is a great but rare opportunity to own an elegant and beautiful 4-bedroom, 3.5-bath house locates in the southeast ... Read More
Dunedin Real Estate
$1,249,000
4 BED
3 BATH
Welcome to your private retreat in the heart of Dunedin Cove. Built in 2020! Tucked behind the gates of this intimate en... Read More
Contact Sandra Pardo

407-990-2746

Wendy Morris LLC

Licensed in the State of Florida
BK 3146762
16797 Broadwater Avenue
Winter Garden, Florida 34787

Your privacy is our utmost concern. We will never sell your personal information. Privacy Policy
©2026 sandrapardohomes.com - all rights reserved. | Site Map