407-990-2746
Menu

10063 Gazebo Alley, Orlando, FL

NEXT
PREV
$414,990

($281/sqft)

List Status: Active
10063 Gazebo Alley
Orlando, FL 32832


3 beds
2 baths
1476 living sqft
Top Features
  • Subdivision: Meridian Parks Phase 6
  • Built in  2026
  • Townhouse
Description
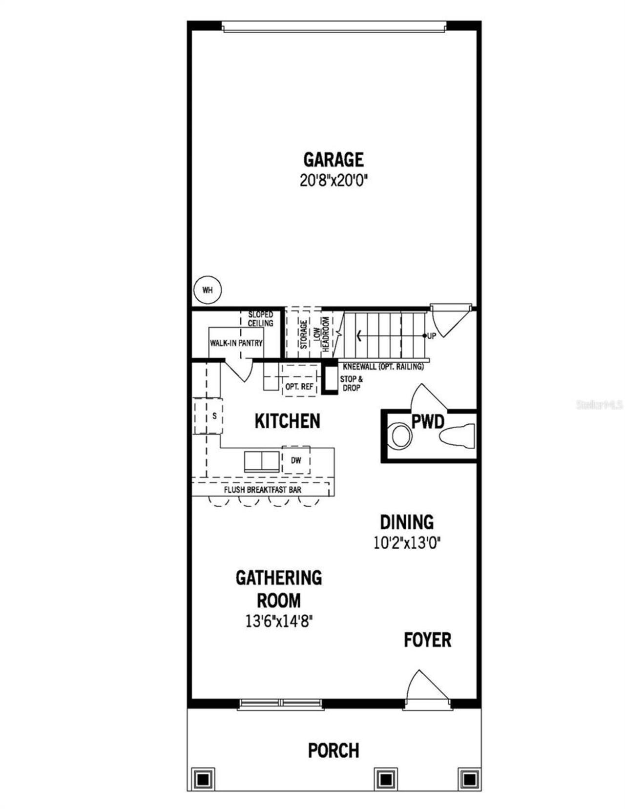
Discover the Aurora, a beautifully designed new construction townhome near Lake Nona offering the perfect blend of style, comfort, and convenience. Step inside to an inviting open-concept floor plan where the spacious gathering room flows seamlessly into the dining area and modern kitchen, creating a bright and airy living space ideal for entertaining or everyday living. The private owner’s suite serves as a relaxing retreat, featuring a spacious bedroom and a large walk-in closet with ample storage. Two additional bedrooms provide versatility for a growing family, home office, fitness room, or guest accommodations. Located near Lake Nona, this thoughtfully designed townhome offers easy access to top-rated schools, Medical City, Orlando International Airport, premier shopping, dining, and major highways. Enjoy low-maintenance living in one of Central Florida’s most desirable areas.
Property Details
Additional Information
Additional Parcels YN
false
Appliances
Dishwasher, Disposal, Dryer, Electric Water Heater, Microwave, Range, Refrigerator, Washer
Architectural Style
Other
Association Amenities
Clubhouse, Fitness Center, Park, Playground, Pool
Association Email
jaguilo@lelandmanagement.com
Association Fee
275
Association Fee Frequency
Monthly
Association Fee Includes
Pool, Internet, Maintenance Structure, Maintenance Grounds, Recreational Facilities
Association Fee Requirement
Required
Association URL
www.lelandmanagement.com
Association YN
true
Attached Garage YN
true
Bathrooms Total Integer
3
Builder Model
Aurora
Builder Name
Mattamy Homes
Building Area Source
Builder
Building Area Total
1988
Building Area Total Srch SqM
184.69
Building Area Units
Square Feet
CDDYN
1
Calculated List Price By Calculated SqFt
281.16
Carport YN
false
Community Features
Clubhouse, Community Mailbox, Dog Park, Fitness Center, Park, Playground, Pool, Sidewalks
Construction Materials
Block, Stucco, Frame
Cooling
Central Air
Country
US
Current Price
414990.00
Direction Faces
Northwest
Elementary School
Sun Blaze Elementary
Exterior Features
Lighting, Rain Gutters, Sidewalk
Fireplace YN
false
Flood Zone Code
X
Flooring
Carpet, Tile
Foundation Details
Slab
Furnished
Unfurnished
Garage Spaces
2
Garage YN
true
Heating
Central, Electric
High School
Innovation High
Home Warranty YN
true
Interior Features
Eat-in Kitchen, High Ceilings, Kitchen/Family Room Combo, Living Room/Dining Room Combo, Open Floorplan, PrimaryBedroom Upstairs, Stone Counters, Thermostat, Walk-In Closet(s)
Internet Address Display YN
true
Internet Automated Valuation Display YN
true
Internet Consumer Comment YN
true
Internet Entire Listing Display YN
true
Laundry Features
Inside, Laundry Closet, Upper Level
Levels
Two
List AOR
Orlando Regional
Living Area Meters
137.12
Living Area Source
Builder
Living Area Units
Square Feet
Lot Size Acres
0.04
Lot Size Square Feet
1920
Lot Size Square Meters
178
Middle Or Junior School
Innovation Middle School
Modification Timestamp
2026-04-24T21:06:19.545Z
Monthly HOA Amount
275.00
New Construction YN
true
Occupant Type
Vacant
Other Equipment
Irrigation Equipment
Ownership
Fee Simple
Parcel Number
03-24-31-8960-01-025
Patio And Porch Features
Covered, Front Porch
Pets Allowed
Yes
Pool Private YN
false
Property Condition
Completed
Public Survey Range
31
Public Survey Section
03
RATIO Current Price By Calculated SqFt
281.16
Road Surface Type
Paved
Roof
Shingle
Room Count
6
Senior Community YN
false
Sewer
Public Sewer
Showing Requirements
Call Listing Office, Go Direct, See Remarks
Status Change Timestamp
2026-04-24T15:50:03.000Z
Tax Annual Amount
1589.75
Tax Block
71
Tax Book Number
116/110
Tax Legal Description
STARWOOD PH N - 5 PB 116 PG 110 LOT 1025
Tax Lot
1025
Tax Other Annual Assessment Amount
1212
Tax Year
2025
Total Acreage
0 to less than 1/4
Total Annual Fees
3300.00
Total Monthly Fees
275.00
Township
24
Universal Property Id
US-12095-N-032431896001025-R-N
Unparsed Address
10063 GAZEBO ALY
Utilities
Cable Available, Electricity Connected, Phone Available, Sewer Connected, Underground Utilities, Water Connected
Vegetation
Trees/Landscaped
Water Source
Public
Waterfront YN
false
Window Features
Blinds
Zoning
RES
Neighborhood Map
Popup

Property Photos
Listing Photo
Listing Photo
Listing Photo
Listing Photo
Listing Photo
Listing Photo
Listing Photo
Listing Photo
Listing Photo
Listing Photo
Listing Photo
Listing Photo
Listing Photo
Listing Photo
Listing Photo
Listing Photo
Listing Photo
Listing Photo
Listing Photo
Listing Photo
Listing Photo
Listing Photo
Listing Photo
Listing Photo
Listing Photo
Listing Photo
Listing Photo
Listing Photo
Listing Photo
Listing Photo
Listing Photo
Listing Photo
Listing Photo
Listing Photo
Listing Photo
Listing Photo
Listing Photo
Listing Photo
Listing Photo
Listing Photo
Listing Photo
Listing Photo
Listing Photo
Listing Photo
Listing Photo
Listing Photo
Listing Photo
Listing Photo
Listing Photo
Listing Photo
Listing Photo
Listing Photo
Listing Photo
Listing Photo
Listing Photo
Listing Photo
Listing Photo
Listing Photo
Listing Photo
Listing Photo
Listing Photo
Listing Photo
Listing Photo
Listing Photo
Listing Photo
Listing Photo
Listing Photo
Listing Photo

MLS #MFRO6401733 Listing courtesy of Mattamy Real Estate Services provided by Stellar MLS.

Similar Listings

$374,000
11701 Fiction Avenue
Orlando
3BR/2BA
| Pending
$374,500
5177 Chesapeake Avenue
Orlando
3BR/2BA
| Active
$374,900
8619 Veridian Drive
Orlando
3BR/2BA
| Active
$374,900
1618 Coletta Drive
Orlando
3BR/2BA
| Active



All listing information is deemed reliable but not guaranteed and should be independently verified through personal inspection by appropriate professionals. Listings displayed on this website may be subject to prior sale or removal from sale; availability of any listing should always be independent verified. Listing information is provided for consumer personal, non-commercial use, solely to identify potential properties for potential purchase; all other use is strictly prohibited and may violate relevant federal and state law. The source of the listing data is as follows: Stellar MLS (updated 4/25/26 6:44 AM) |

Listing Search



Translate Tool

Featured Listings
Titusville Real Estate
$825,000
4 BED
3 BATH
Welcome to this stunning enclosed in-ground pool home, perfectly situated on a beautifully manicured 1.03-acre cul-de-sa... Read More
Tarpon Springs Real Estate
$830,000
5 BED
3 BATH
Stunning 2019-built "Royal" model where coastal luxury meets modern efficiency — and every major system has already been... Read More
Orlando Real Estate
$888,962
3 BED
2 BATH
One or more photo(s) has been virtually staged. Under Construction. Welcome to this beautifully designed BELLWOOD 3 bedr... Read More
Orlando Real Estate
$935,742
5 BED
4 BATH
Under Construction. The CARDINAL model offers 5 bedrooms, 4 Bathrooms, a Loft, and a 3-car garage. This stunning single-... Read More
Indian Rocks Beach Real Estate
$995,000
2 BED
2 BATH
Completely Renovated Direct Beachfront Corner Unit — Reflections on the Gulf, Indian Rocks Beach. Experience turnkey bea... Read More
Orlando Real Estate
$831,911
4 BED
3 BATH
One or more photo(s) has been virtually staged. Under Construction. Welcome to this beautifully designed 4-bedroom, 3-ba... Read More
Tampa Real Estate
$850,000
4 BED
2 BATH
Absolute TURNKEY POOL home that has recently been RENOVATED! The RESERVE AT CARROLLWOOD is a quaint GATED neighborhood o... Read More
Madeira Beach Real Estate
$839,900
3 BED
2 BATH
Live where every day feels like a vacation—just three blocks from the sugar-white sands of Madeira Beach and a breezy 5-... Read More
Kissimmee Real Estate
$925,000
9 BED
6 BATH
THIS IS NOT ANOTHER FURNISHED HOME, LISTEN!! LOCATED IN A PRIVATE CUL DE SAC, BEAUTIFUL POND VIEW, HEATED POOL AND SPA..... Read More
Pinellas Park Real Estate
$1,190,000
4 BED
3 BATH
One or more photo(s) was virtually staged. You will immediately notice this home stands out with a powerful presence and... Read More
Contact Sandra Pardo

407-990-2746

Wendy Morris LLC

Licensed in the State of Florida
BK 3146762
16797 Broadwater Avenue
Winter Garden, Florida 34787

Your privacy is our utmost concern. We will never sell your personal information. Privacy Policy
©2026 sandrapardohomes.com - all rights reserved. | Site Map